Descrição
Este projeto de sobrado com 190,07m² é uma solução arquitetônica moderna e funcional, ideal para quem busca conforto, estética contemporânea e aproveitamento inteligente dos espaços. Com três pavimentos bem distribuídos, o projeto oferece ambientes integrados, áreas de convivência acolhedoras e espaços privativos que valorizam o dia a dia da família.
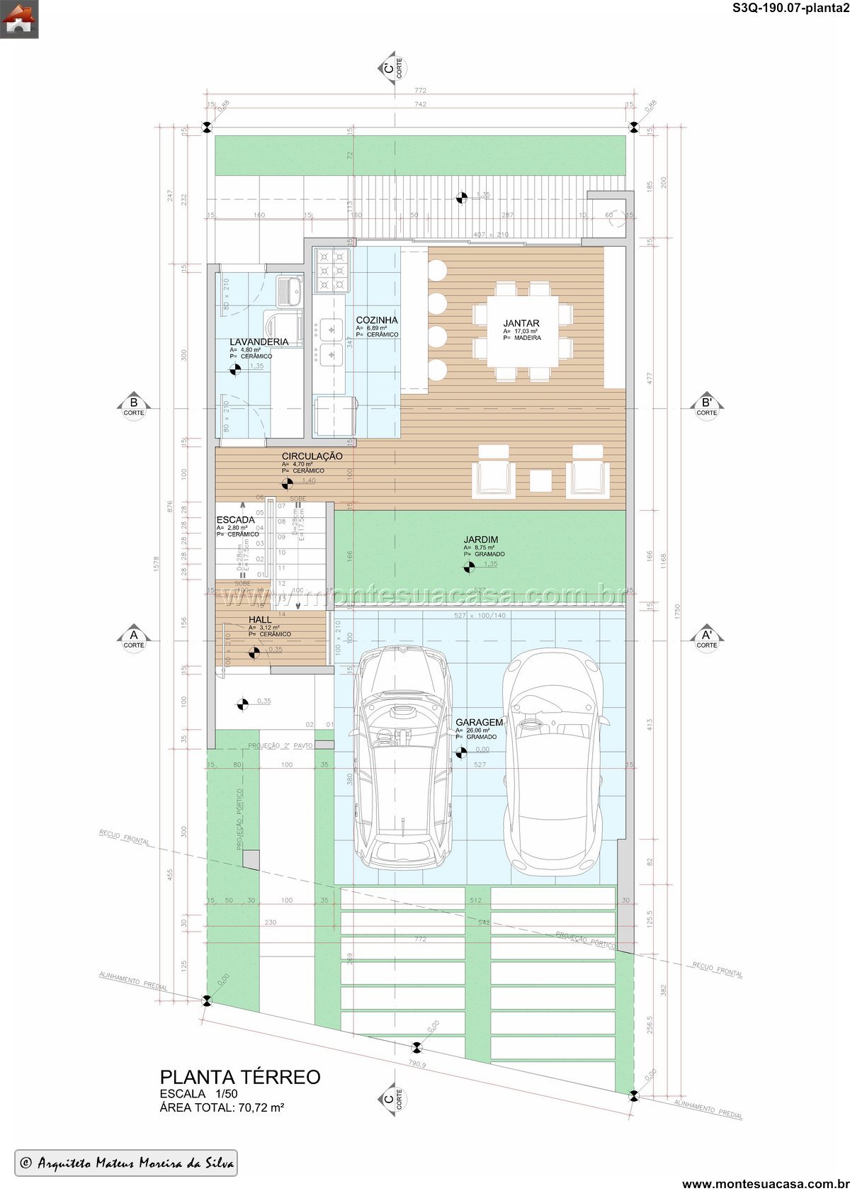
Térreo com garagem e jardim integrado O pavimento térreo conta com garagem para dois carros, hall de entrada, escada, circulação, lavanderia, cozinha e sala de jantar. O destaque fica por conta do jardim integrado à área social, criando uma conexão direta com a natureza e proporcionando ventilação cruzada e iluminação natural. Os revestimentos cerâmicos garantem durabilidade nas áreas técnicas, enquanto o piso de madeira na sala de jantar adiciona sofisticação.
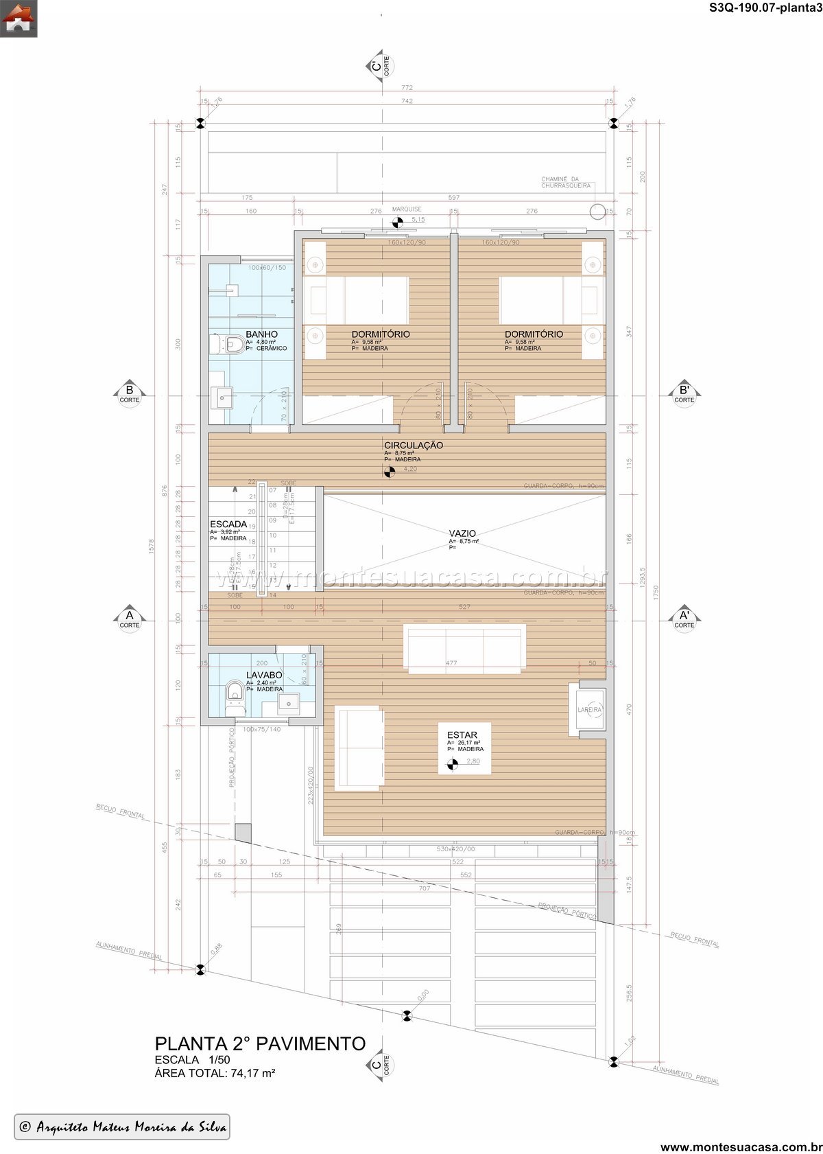
Segundo pavimento com área íntima completa No segundo andar, o projeto apresenta dois dormitórios, um banheiro social, lavabo, sala de estar ampla e circulação. A escada em madeira conecta os pavimentos com leveza e elegância. A sala de estar é generosa em metragem e ideal para momentos de descanso ou recepção de visitas. O vazio arquitetônico entre os pavimentos contribui para a sensação de amplitude e integração visual.
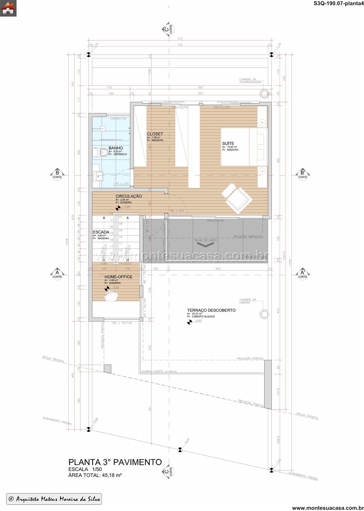
Terceiro pavimento com suíte e home-office O último andar abriga uma suíte com closet, banheiro privativo, home-office e terraço descoberto. Este pavimento é perfeito para quem deseja um espaço mais reservado, com vista para o entorno e possibilidade de personalização do terraço. O home-office é funcional e silencioso, ideal para trabalho remoto ou estudos. O terraço, com piso de cimento alisado, oferece potencial para área gourmet ou espaço zen.
Design contemporâneo e soluções inteligentes Com fachada marcada por linhas retas, grandes esquadrias e elementos geométricos, o sobrado se destaca pelo visual moderno e pela funcionalidade. A circulação vertical é fluida e os ambientes foram pensados para atender às necessidades de uma família contemporânea, sem abrir mão da estética e do conforto.















Avaliações
Não há avaliações ainda.