Descrição
Este sobrado moderno de 182.52m2 foi meticulosamente projetado para famílias que buscam conforto, praticidade e um estilo de vida contemporâneo. Com três quartos, sendo uma suíte, a residência harmoniza perfeitamente os ambientes sociais e privativos, criando um fluxo suave e acolhedor. A fachada e os volumes arquitetônicos transmitem uma identidade clean e atual, enquanto os espaços internos são inundados por uma iluminação natural abundante, promovendo uma atmosfera alegre e aconchegante. A integração entre os cômodos é uma característica marcante, facilitando o dia a dia e a interação entre os moradores. A casa oferece uma experiência completa de moradia, unindo lazer, descanso e entretenimento em um único lugar.
Ambientes de Convívio e Lazer
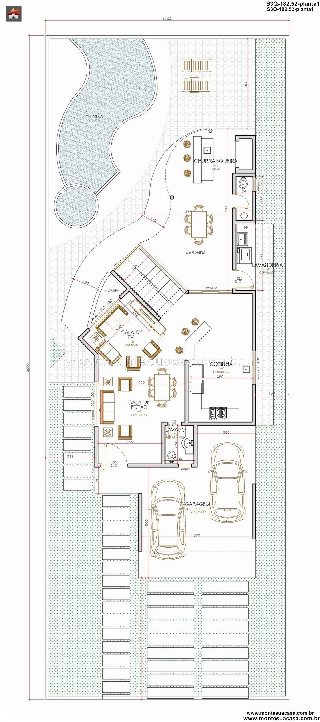
A área social deste sobrado é verdadeiramente impressionante e foi pensada para receber amigos e familiares com grande conforto. Você é recebido por uma generosa sala de estar e TV, integrada a um ambiente gourmet espaçoso, perfeito para refeições descontraídas. Essa área flui diretamente para a varanda, que se conecta com a churrasqueira e a piscina, formando o epicentro do entretenimento. A piscina proporciona um refúgio perfeito para os dias quentes, enquanto a churrasqueira convida a momentos memoráveis de confraternização. O terraço cerâmico e a sacada complementam os espaços externos, oferecendo opções variadas de relaxamento e contemplação.
Comodidade e Privacidade nos Quartos
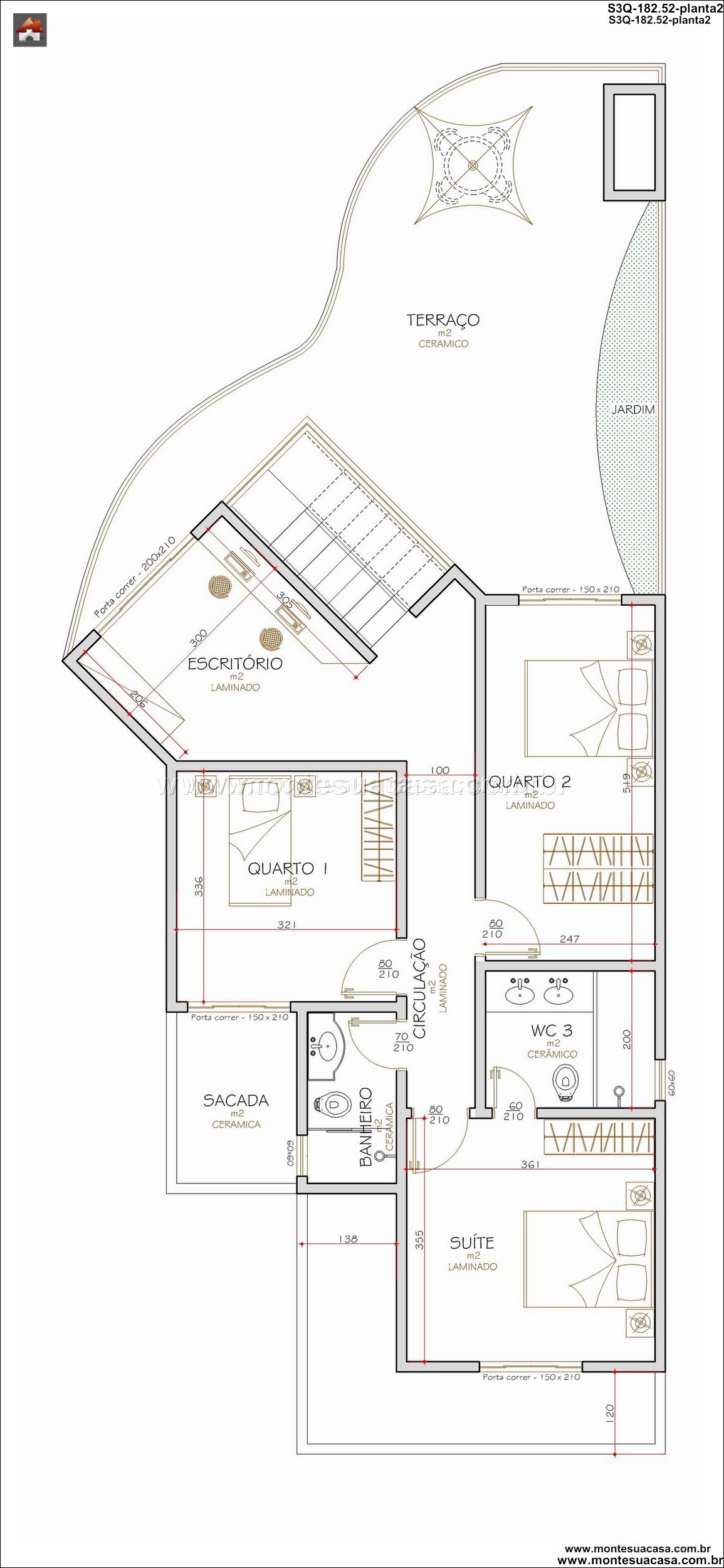
A privacidade e o descanso encontram seu lugar nos dormitórios localizados no pavimento superior. A suíte master é um santuário particular, oferecendo um espaço amplo e aconchegante com um closet integrado. Os outros dois quartos, Quarto 1 e Quarto 2, são igualmente confortáveis e compartilham um banheiro bem distribuído, atendendo perfeitamente às necessidades de filhos ou hóspedes. Todos os dormitórios contam com piso laminado, conferindo um toque de calor e elegância. A sacada privativa anexa a um dos quartos adiciona um charme extra, permitindo um momento de tranquilidade ao ar livre.
Funcionalidade e Organização
Além dos ambientes principais, o projeto não negligencia a praticidade do dia a dia. A garagem coberta para duas vagas garante segurança e comodidade para os veículos da família. Um escritório dedicado oferece um ambiente silencioso para o trabalho home office ou estudos. A cozinha, planejada e com pé-direito de 2.80m, é um espaço funcional e alegre para a preparação das refeições. A circulação inteligente entre os cômodos, a clarabria que potencializa a iluminação natural e a escolha criteriosa de materiais, como cerâmica e laminado, reforçam o caráter moderno e durável desta residência que valoriza cada detalhe.
















Avaliações
Não há avaliações ainda.