Descrição
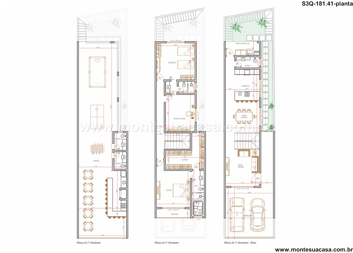
Este projeto de sobrado moderno com 181,41m² é ideal para quem busca funcionalidade, conforto e estilo em um terreno urbano compacto. Com três pavimentos bem distribuídos, a proposta valoriza a integração dos ambientes e o aproveitamento vertical do espaço, sem abrir mão da estética contemporânea.
Distribuição inteligente dos ambientes No térreo, o destaque vai para a garagem coberta com capacidade para dois veículos, além de uma sala de estar acolhedora, sala de jantar integrada à cozinha funcional e uma lavanderia discreta. A área de serviço é estrategicamente posicionada para facilitar o dia a dia sem interferir na circulação principal.
Conforto e privacidade no segundo pavimento A área íntima conta com três quartos bem distribuídos: uma suíte espaçosa com closet, um quarto adicional e um home office que pode ser adaptado como terceiro dormitório. A circulação é fluida e bem iluminada, com janelas amplas que favorecem a ventilação natural.
Lazer e convivência no terceiro pavimento O terceiro andar é dedicado ao lazer. Uma varanda gourmet com bar e lounge se conecta a uma área de jogos com mesa de sinuca e tênis de mesa. O ambiente é perfeito para receber amigos e familiares, com banheiros de apoio e acesso direto pela escada externa, que também valoriza a fachada com linhas modernas e marcantes.
Design contemporâneo e fachada marcante A fachada em tons de amarelo e branco, combinada com elementos em vidro e concreto, transmite leveza e sofisticação. Os detalhes paisagísticos e os guarda-corpos em vidro reforçam o estilo urbano e elegante da proposta.
Projeto ideal para famílias modernas Este sobrado de 3 quartos é perfeito para famílias que valorizam momentos de lazer, funcionalidade e um design diferenciado. A planta otimizada garante conforto em todos os ambientes, com destaque para a área de convivência no último pavimento.











Avaliações
Não há avaliações ainda.