Descrição
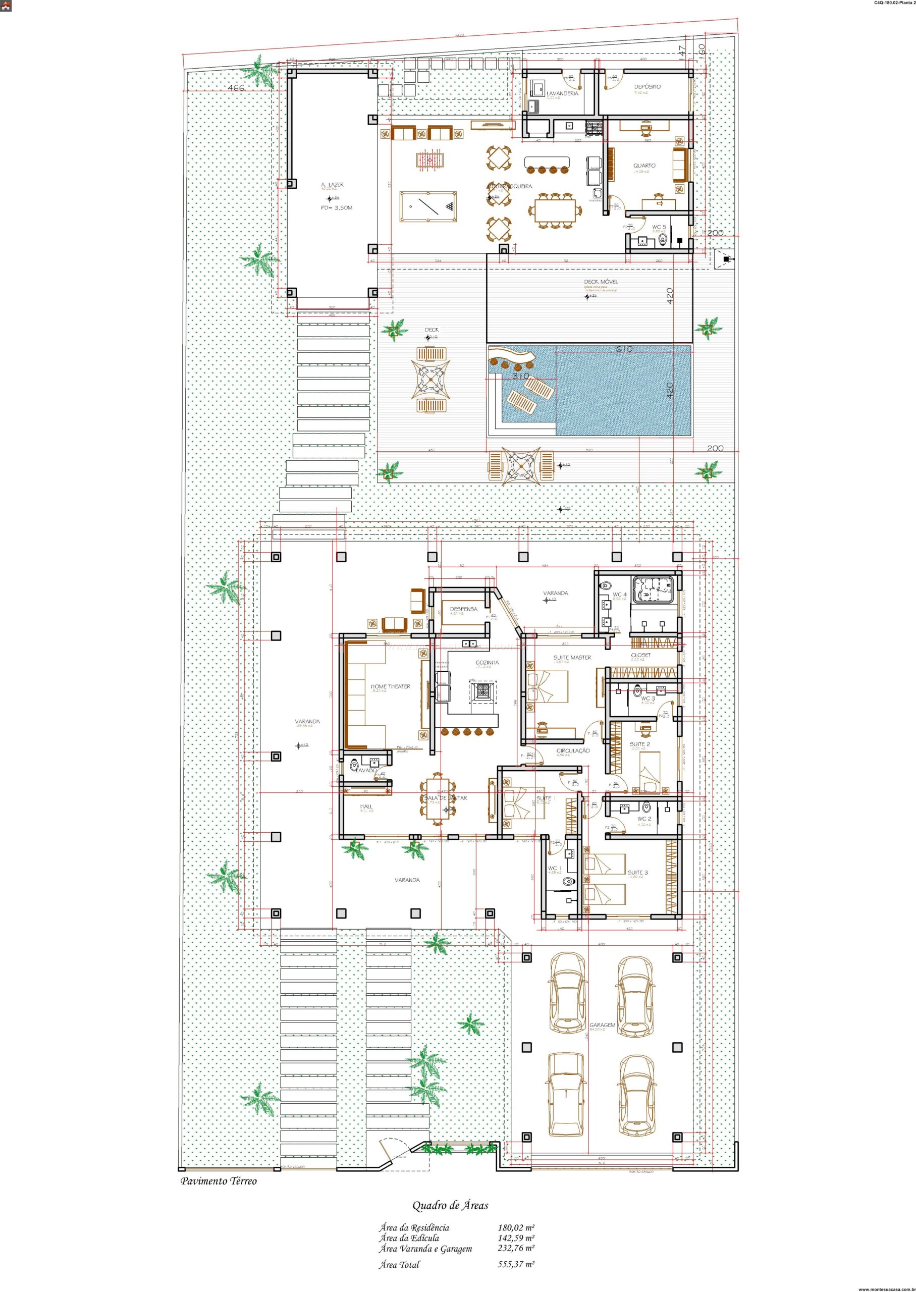
Este projeto de casa térrea com 180,02m² foi desenvolvido para oferecer conforto, funcionalidade e estilo contemporâneo em um único pavimento. Com quatro quartos bem distribuídos e ambientes integrados, é ideal para famílias que valorizam praticidade sem abrir mão do lazer.
Ambientes sociais integrados e acolhedores A planta contempla uma ampla sala de jantar conectada à cozinha e ao hall de entrada, criando uma atmosfera fluida e convidativa. A varanda frontal proporciona charme e sombra natural, enquanto o home theater garante momentos de entretenimento com privacidade.
Quatro suítes para máximo conforto A residência conta com uma suíte master espaçosa, equipada com closet e banheiro privativo. As outras três suítes também possuem banheiros individuais, oferecendo conforto e autonomia para todos os moradores. A circulação interna foi planejada para facilitar o acesso entre os ambientes, mantendo a privacidade das áreas íntimas.
Área externa com piscina e espaço gourmet A área de lazer é um dos destaques do projeto. A piscina é cercada por um deck de madeira com espreguiçadeiras e guarda-sóis, ideal para relaxar em dias ensolarados. A varanda gourmet, equipada com mesa de jantar e decoração tropical, é perfeita para encontros sociais e refeições ao ar livre.
Design moderno e paisagismo tropical A fachada apresenta linhas retas, acabamento em tons terrosos e pilares de pedra que reforçam a estética contemporânea. O paisagismo inclui palmeiras, gramado bem cuidado e árvores com folhagem vibrante, criando um ambiente acolhedor e sofisticado.
Projeto ideal para quem busca qualidade de vida Este projeto é perfeito para quem deseja morar com estilo, conforto e integração com a natureza. A combinação entre arquitetura moderna e funcionalidade torna esta casa uma excelente escolha para famílias exigentes.


















Avaliações
Não há avaliações ainda.