Descrição
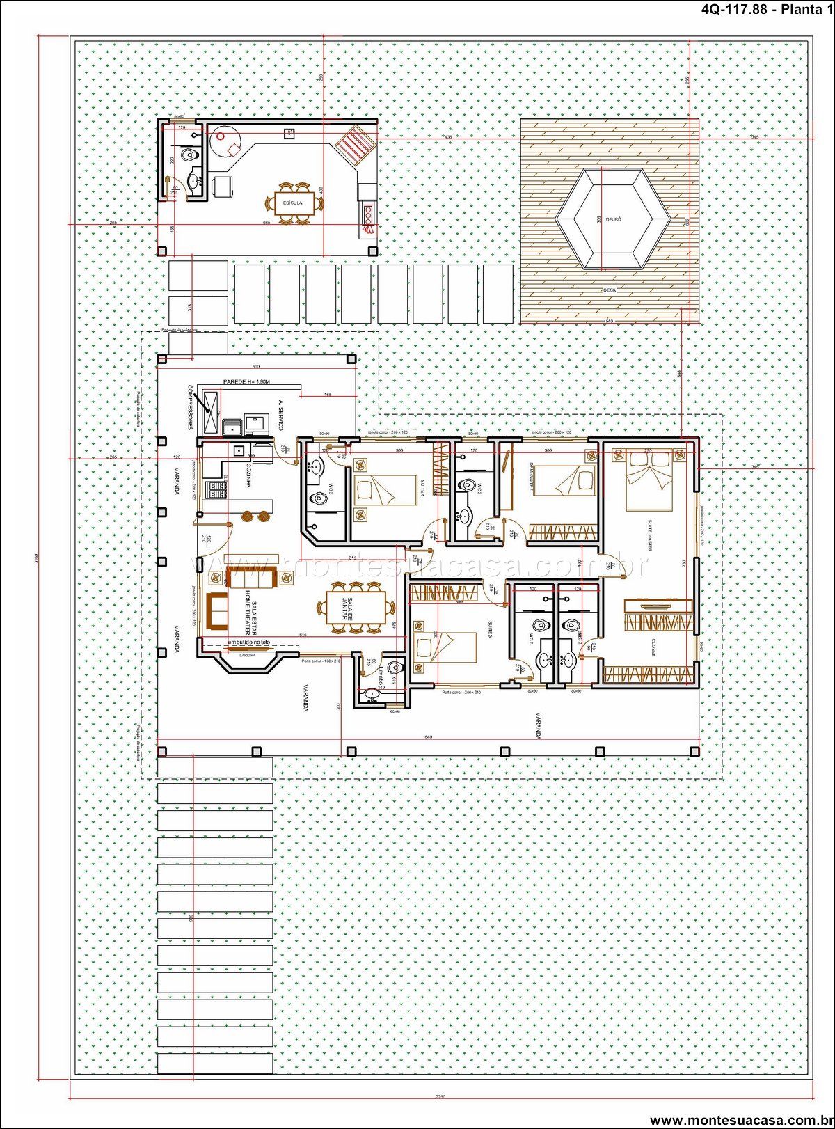
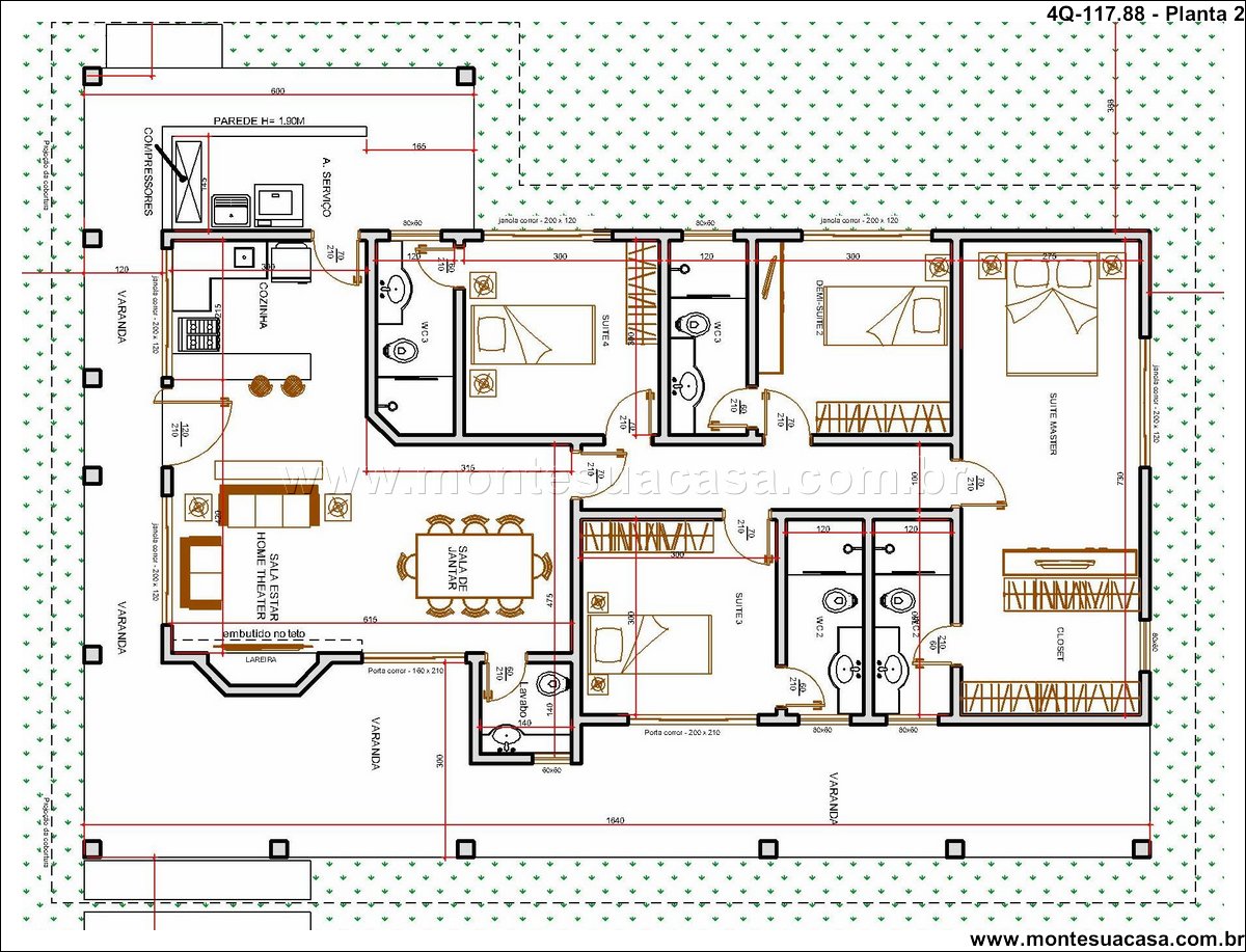
Projeto térreo com estilo moderno e funcionalidade completa Este projeto de 117,88m² apresenta uma casa térrea com quatro dormitórios, ideal para famílias que valorizam conforto, privacidade e integração com a natureza. A fachada combina elementos rústicos e modernos, com telhado cerâmico em múltiplas águas, colunas de madeira expostas e amplas aberturas envidraçadas que favorecem a iluminação natural. O paisagismo ao redor reforça a sensação de tranquilidade, com árvores, palmeiras e jardins bem distribuídos.
Distribuição inteligente dos ambientes internos A planta contempla uma suíte master com closet, duas suítes adicionais e um dormitório convencional, todos com acesso facilitado às áreas comuns. A sala de estar com lareira se conecta à sala de jantar e à cozinha, formando um ambiente social fluido e acolhedor. A cozinha possui acesso direto à área de serviço, garantindo praticidade no dia a dia. Varandas envolventes ampliam a área útil e oferecem espaços para descanso ao ar livre.
Área externa com spa e espaço gourmet O destaque do projeto é a área de lazer nos fundos, composta por um deck com spa hexagonal, espreguiçadeiras e um espaço gourmet coberto com churrasqueira e forno. Este ambiente é ideal para confraternizações e momentos de relaxamento. O acesso é feito por caminhos de pedra que conectam a casa principal ao anexo externo, que inclui banheiro e área de refeições.
Conforto e estética em harmonia com o entorno A casa foi projetada para se integrar ao ambiente natural, com muros baixos que preservam a privacidade sem comprometer a vista. O uso de materiais como madeira, pedra e vidro reforça a proposta estética e funcional. Este projeto é perfeito para terrenos em áreas suburbanas ou rurais, oferecendo qualidade de vida e estilo arquitetônico diferenciado.






















Avaliações
Não há avaliações ainda.