Descrição
Casa térrea espaçosa com design moderno e funcional
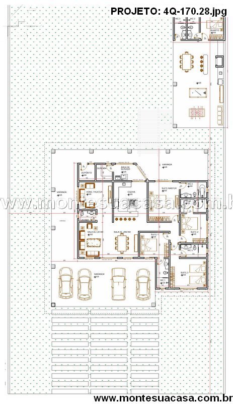
Este projeto de 170,28m² foi cuidadosamente elaborado para famílias que valorizam conforto, integração e praticidade. A casa térrea apresenta um visual elegante, com telhado em múltiplas águas e amplas aberturas que favorecem a ventilação cruzada e a iluminação natural. O destaque está na amplitude da área social e na integração harmoniosa entre os ambientes internos e externos.
Ambientes bem distribuídos para maior conforto
O projeto conta com quatro dormitórios, sendo uma suíte master ampla e três quartos confortáveis, ideais para hóspedes ou filhos. A sala de estar e jantar se conectam diretamente à cozinha e à varanda, proporcionando uma área de convivência perfeita para momentos em família. Cada ambiente foi planejado para garantir fluidez de circulação e conforto térmico, atendendo perfeitamente às necessidades de quem busca praticidade sem abrir mão de elegância.
Espaço gourmet integrado à área externa
Nos fundos do terreno, o projeto apresenta uma charmosa área gourmet, completa com churrasqueira, bancada e espaço para refeições. Essa área é ideal para confraternizações e oferece conexão direta com o jardim, promovendo a integração entre o interior e o exterior da casa. O pergolado e o acabamento natural contribuem para um visual moderno e acolhedor.
Garagem ampla e fachada imponente
A fachada combina elementos tradicionais com toques contemporâneos, marcada pelo telhado imponente e pelas colunas em madeira que sustentam o alpendre. A garagem coberta comporta até quatro veículos, protegendo-os das intempéries e valorizando a fachada da residência. O paisagismo frontal complementa o visual, adicionando charme e equilíbrio à composição.
Conforto, estética e praticidade em um só projeto
Com uma planta inteligente, ambientes integrados e acabamentos bem pensados, esta casa térrea é uma excelente opção para quem deseja morar com conforto e estilo. O projeto é ideal para terrenos médios e pode ser adaptado para diferentes tipos de lotes, mantendo sempre sua estética moderna e funcionalidade exemplar.





















Avaliações
Não há avaliações ainda.