Descrição
Este sobrado moderno de 160,21 m² apresenta uma arquitetura de alto padrão que combina linhas retas, grandes panos de vidro e integração total entre os ambientes sociais. O projeto foi desenvolvido para famílias que priorizam conforto, lazer completo e uma área social ampla e fluida, tornando a experiência de viver na casa muito mais intensa e funcional. A planta destaca soluções inteligentes que ampliam a sensação de espaço e aproveitam bem a luz natural, reforçando o caráter contemporâneo da proposta.
Integração entre sala, cozinha e área gourmet
A área social do pavimento térreo foi planejada para permitir convivência intensa. Sala de estar, sala de jantar, cozinha e espaço gourmet se conectam de forma natural, criando um ambiente único que favorece encontros familiares e recepções. O espaço gourmet possui bancada generosa, área de refeições e ambiente de estar ao ar livre, funcionando como extensão direta da casa.
Área de lazer com piscina e varandas amplas
A piscina posicionada estrategicamente valoriza o visual da casa e cria um eixo de integração entre varanda, deck e área gourmet. As varandas amplas oferecem espaços confortáveis para descanso e aproveitamento da área externa em diferentes momentos do dia. A disposição dos ambientes cria uma dinâmica sofisticada que reforça o caráter de casa para lazer e convivência.
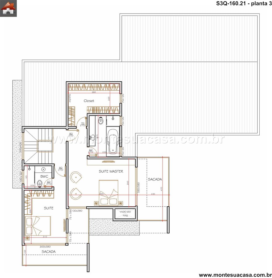
Distribuição funcional dos ambientes internos
No térreo, além da área social integrada, o projeto oferece um quarto versátil que pode funcionar como suíte de hóspedes, escritório ou dormitório de apoio. O pavimento superior concentra duas suítes, incluindo a suíte master com closet amplo, banheiro espaçoso e sacada privativa. O hall superior com pé-direito duplo adiciona imponência ao projeto e traz mais iluminação ao interior.
Estética contemporânea e volumetria marcante
A fachada combina revestimentos em madeira, pedra e brises, reforçando a proposta de sobrado moderno. Os elementos verticais destacam a volumetria e criam profundidade visual, enquanto o uso de esquadrias grandes garante leveza e transparência. O resultado é uma casa imponente, atual e alinhada ao estilo arquitetônico californiano que inspira muitos dos seus projetos.
Projeto ideal para terrenos amplos
Com varandas generosas e área gourmet integrada, este projeto se destaca especialmente em terrenos espaçosos, nos quais a composição entre paisagismo, piscina e fachada pode ser valorizada. O conjunto final reforça a proposta de uma residência moderna, confortável e pensada para quem busca qualidade de vida.















Avaliações
Não há avaliações ainda.