Descrição
Projeto de Sobrado Moderno com 3 Quartos, Escritório e Fachada Imponente
Este projeto de sobrado moderno de 154,11m² apresenta uma combinação harmoniosa de elegância, funcionalidade e conforto. Com fachada imponente e linhas retas marcantes, o design aposta em volumes geométricos e revestimentos contemporâneos em tons neutros, destacando-se pela parede com revestimento em pedra natural e amplas janelas que favorecem a iluminação natural.
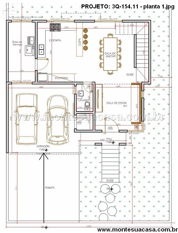
Conforto e integração no térreo
O pavimento térreo foi planejado para valorizar a convivência em família. A sala de estar, integrada à sala de jantar e à copa, cria um ambiente amplo e acolhedor, perfeito para reuniões e momentos de lazer. A cozinha é prática e conta com despensa e área de serviço anexa, garantindo organização e eficiência no dia a dia. Há também um lavabo estrategicamente posicionado próximo à escada. A garagem coberta para dois veículos é de fácil acesso, conectada diretamente ao interior da residência.
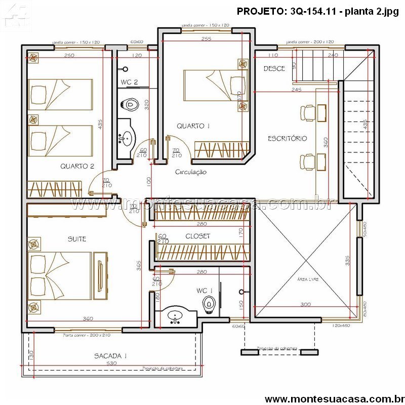
Privacidade e praticidade no pavimento superior
No pavimento superior, o destaque fica para a suíte principal com closet e sacada, oferecendo privacidade e conforto ao casal. Além dela, há dois dormitórios bem distribuídos e um banheiro social. Um espaço extra foi reservado para um escritório funcional, ideal para quem trabalha em casa ou precisa de um ambiente tranquilo para estudos.
Estilo contemporâneo e funcionalidade
A fachada combina elementos de design moderno com materiais naturais, criando um visual elegante e atemporal. A escada frontal com jardim lateral valoriza a entrada principal e confere imponência à casa. O uso de vidro nas janelas verticais e na sacada reforça a sensação de amplitude e integração com o exterior.
Ideal para terrenos em declive
Este sobrado é ideal para terrenos em declive, aproveitando o desnível para posicionar a garagem abaixo do nível principal, otimizando o espaço e conferindo um diferencial arquitetônico marcante.














Avaliações
Não há avaliações ainda.