Descrição
Este projeto de sobrado de 3 quartos oferece uma combinação ideal entre conforto, estética moderna e espaços de lazer bem distribuídos. Com 148,38m² de área construída, a residência foi pensada para famílias que valorizam ambientes integrados e soluções arquitetônicas inteligentes.
Fachada contemporânea e presença marcante A fachada se destaca pelo telhado cerâmico vermelho, varandas com guarda-corpo metálico e amplas portas de vidro que promovem iluminação natural. O paisagismo frontal inclui pedras decorativas, vegetação ornamental e um caminho de acesso que valoriza a entrada principal.
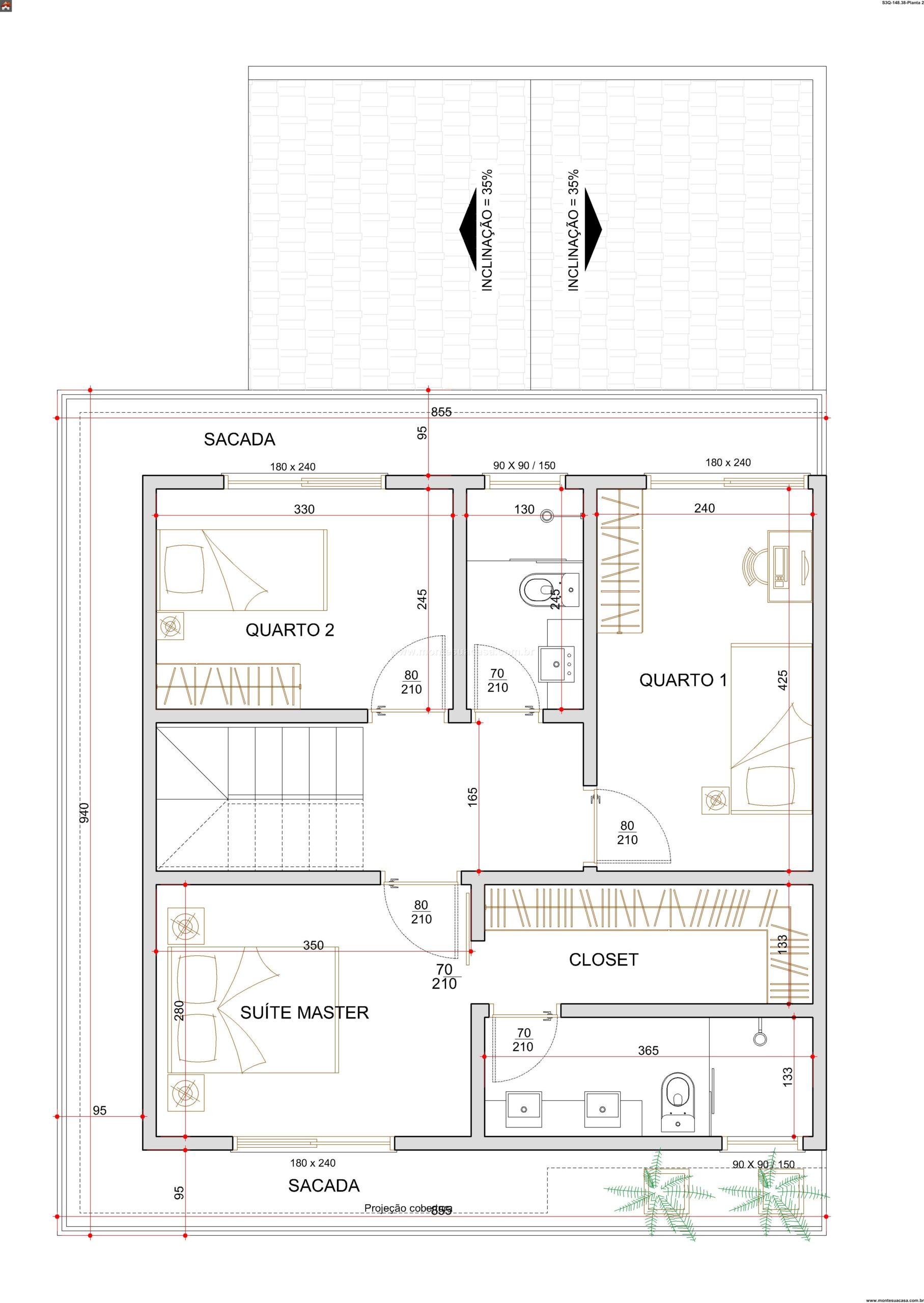
Distribuição funcional dos ambientes No pavimento térreo, o projeto contempla sala de estar, sala de jantar, cozinha planejada, hall de circulação, garagem coberta para dois veículos, área de serviço e dois depósitos. A varanda gourmet com churrasqueira se conecta à piscina, criando um espaço perfeito para confraternizações e momentos de relaxamento. No pavimento superior, há três dormitórios, sendo um deles uma suíte master com closet e sacada privativa. Os outros dois quartos são atendidos por um banheiro social estrategicamente posicionado.
Lazer e integração com a natureza A área externa inclui uma piscina retangular, pátio com móveis de jardim e guarda-sol, além de um mini campo com gol e bolas de futebol. Esses elementos tornam o projeto ideal para famílias com crianças e para quem busca momentos de diversão ao ar livre. A segunda sacada, voltada para a frente da casa, amplia a ventilação e proporciona uma vista agradável.
Projeto ideal para quem busca conforto e estilo Este sobrado de 3 quartos é perfeito para quem deseja viver com qualidade, aproveitando cada metro quadrado com inteligência e sofisticação. A presença de áreas verdes ao redor reforça a sensação de tranquilidade e bem-estar.














Avaliações
Não há avaliações ainda.