Descrição
Sobrado moderno com conforto e integração total
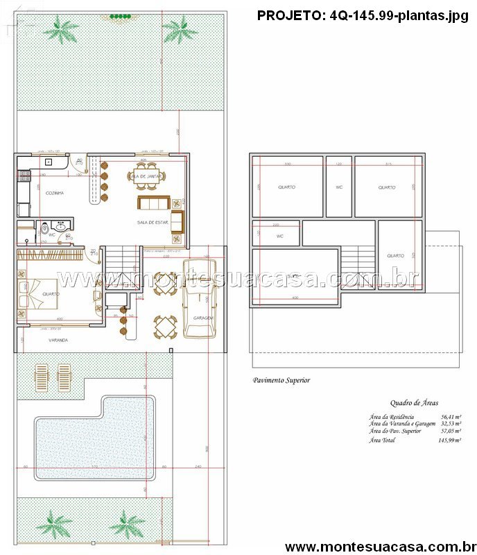
Este projeto de sobrado de 145,99 m² combina modernidade e funcionalidade em um design perfeito para famílias que buscam conforto, lazer e elegância. A fachada imponente, com linhas retas e tons neutros, destaca-se pelo equilíbrio entre volumetria e leveza, transmitindo sofisticação sem abrir mão da praticidade.
Ambientes amplos e integração no térreo
No pavimento térreo, a área social é totalmente integrada. A sala de estar, sala de jantar e cozinha formam um ambiente único, ideal para momentos de convivência. A cozinha conta com bancada funcional que se conecta à mesa de jantar, otimizando o espaço e facilitando o dia a dia. Um dos quatro dormitórios localiza-se neste pavimento, oferecendo acessibilidade para pessoas que preferem evitar escadas ou para uso como quarto de hóspedes.
A varanda posterior é o grande destaque, abrigando uma charmosa área gourmet junto à piscina. O espaço é perfeito para reunir amigos e familiares em dias ensolarados, proporcionando lazer e bem-estar em total harmonia com o jardim e a área verde dos fundos.
Área íntima privativa no pavimento superior
O pavimento superior concentra a área íntima da residência, com três quartos bem distribuídos, incluindo uma suíte espaçosa com closet. Os dormitórios adicionais são confortáveis e ventilados, ideais para filhos ou para um home office. Os banheiros seguem um padrão funcional, bem iluminados e de fácil manutenção, garantindo conforto a todos os moradores.
Design equilibrado e aproveitamento de terreno
O projeto foi pensado para lotes a partir de 10 metros de largura. A garagem coberta integra-se à fachada sem comprometer a estética, e o recuo frontal favorece o paisagismo. O conjunto cria uma atmosfera acolhedora e moderna, perfeita para quem deseja unir lazer, conforto e valorização do imóvel.
Conclusão
O sobrado 4Q-145.99 oferece o equilíbrio ideal entre elegância, praticidade e lazer. Sua piscina com deck, a varanda coberta e os ambientes amplos o tornam um projeto completo para famílias que desejam viver com estilo e qualidade de vida.











Avaliações
Não há avaliações ainda.