Descrição
Este projeto de sobrado de 3 quartos com 131,70m² apresenta uma proposta arquitetônica contemporânea, ideal para famílias que valorizam conforto, estética e funcionalidade. Com dois pavimentos bem distribuídos, o imóvel oferece ambientes integrados e soluções inteligentes para o dia a dia.
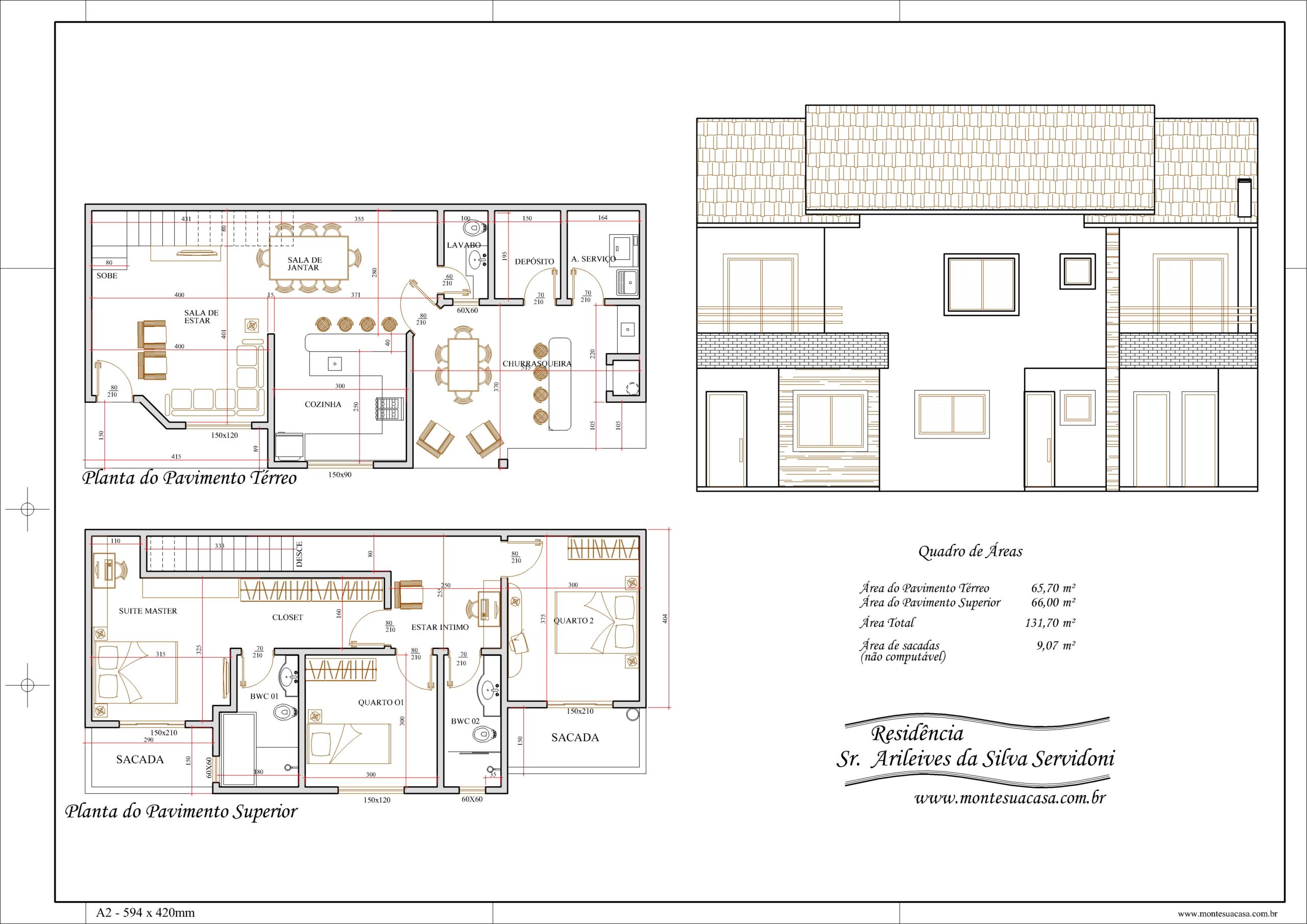
Design moderno com sacadas e integração visual
A fachada se destaca pelo telhado de duas águas com telhas cerâmicas vermelhas, que contrastam com as paredes brancas e os detalhes em pedra natural. Cada unidade possui sacadas com guarda-corpo em vidro, proporcionando leveza e amplitude visual. O paisagismo frontal inclui arbustos, pedras decorativas e caminhos em pedra, criando uma recepção acolhedora e sofisticada.
Ambientes internos bem distribuídos
No pavimento térreo, os moradores contam com sala de estar, sala de jantar, cozinha funcional, lavabo, depósito e área de serviço. A churrasqueira externa, integrada ao espaço gourmet, é perfeita para momentos de lazer. Já no pavimento superior, há uma suíte master com closet, dois quartos adicionais, dois banheiros sociais e uma sala íntima, ideal para relaxar ou trabalhar em home office.
Conforto e funcionalidade para o cotidiano
A planta foi pensada para otimizar o uso do espaço, garantindo circulação fluida e iluminação natural abundante. As grandes janelas com persianas verticais favorecem a ventilação cruzada, enquanto os acabamentos modernos elevam o padrão de qualidade. O projeto também contempla garagem para carro compacto e áreas externas cobertas para convivência.
Ideal para terrenos urbanos e clima tropical
Com elementos tropicais como palmeiras e árvores de folhas coloridas, o projeto se adapta perfeitamente a regiões de clima quente. A combinação entre arquitetura limpa e natureza cria um ambiente harmonioso e convidativo.












Avaliações
Não há avaliações ainda.