Descrição
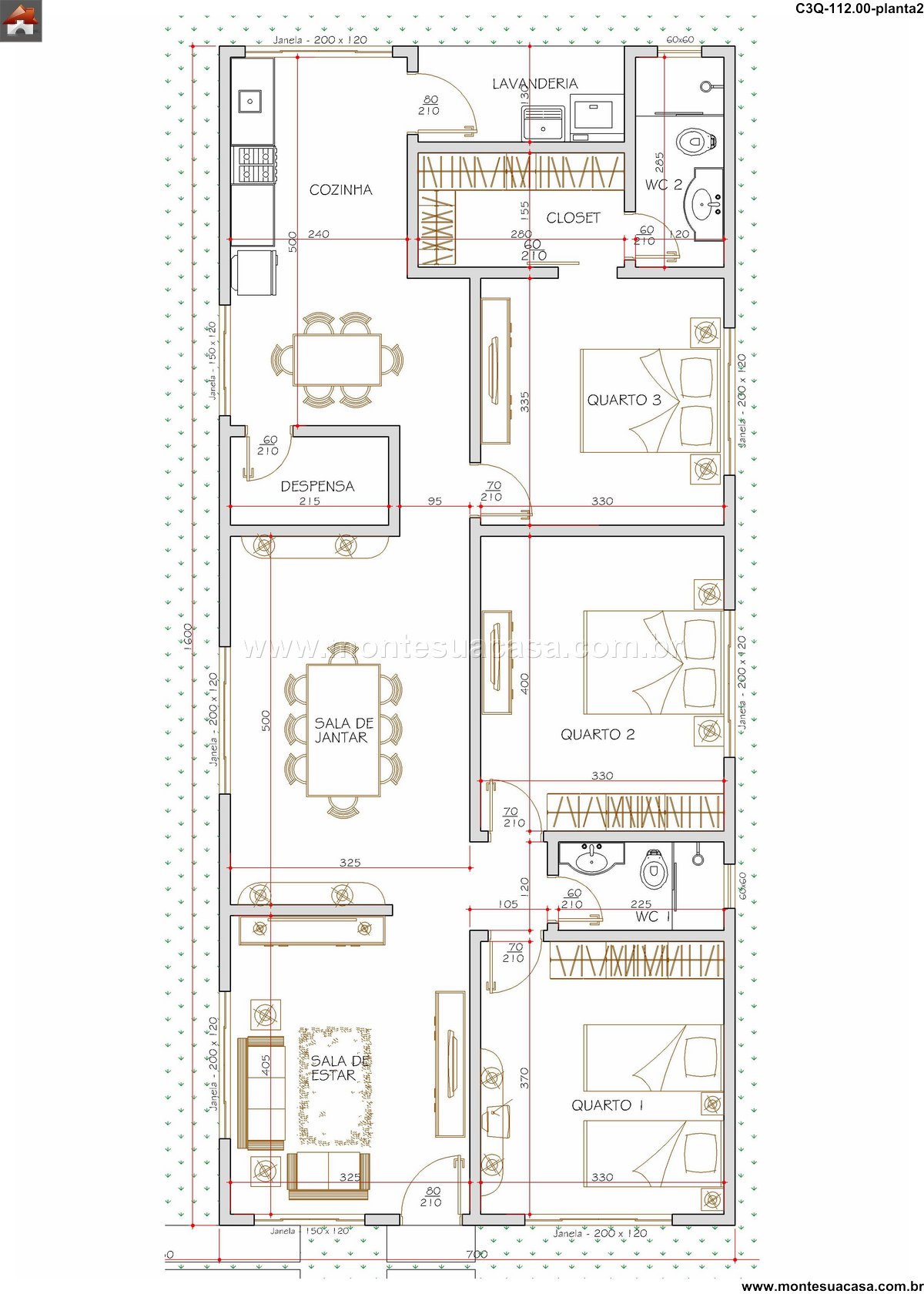
Este projeto residencial de 112m² apresenta uma distribuição inteligente de ambientes, criando um lar funcional e aconchegante para famílias. A planta demonstra um cuidado notável com o fluxo entre os cômodos, priorizando a praticidade no dia a dia. A fachada de 20 metros de comprimento por 12 metros de profundidade estabelece uma presença sólida e harmoniosa no terreno. Cada ambiente foi meticulosamente planejado para oferecer conforto e eficiência, resultando em uma casa que combina estilo e funcionalidade de forma excepcional.
Integração Social e Convívio
A área social é o coração da residência, promovendo uma integração fluida entre a cozinha, a sala de jantar e a sala de estar. Este layout aberto é perfeito para receber amigos e desfrutar de momentos em família, criando um ambiente amplo e arejado. A cozinha, com seus 240m², está estrategicamente posicionada e conta com uma despensa de 215m², garantindo amplo armazenamento e organização. A sala de jantar (325m²) e a sala de estar (320m²) formam um contínuo aconchegante, ideal para entretenimento e relaxamento. Este design garante uma atmosfera acolhedora e convidativa.
Conforto e Privacidade nos Quartos
A ala íntima da casa abriga três quartos espaçosos, cada um com 330m², oferecendo conforto e privacidade para todos os moradores. Os ambientes são versáteis e podem ser facilmente adaptados como suítes ou dormitórios padrão, conforme a necessidade da família. A localização dos quartos afastada da área social assegura um ambiente tranquilo e sereno para o descanso. Esse zoneamento inteligente separa claramente as áreas de atividade e repouso, maximizando o conforto e a qualidade de vida no lar. A planta oferece uma solução residencial completa e bem equilibrada.








Avaliações
Não há avaliações ainda.