Descrição
Projeto de Sobrado Moderno com 3 Quartos, Escritório e Piscina
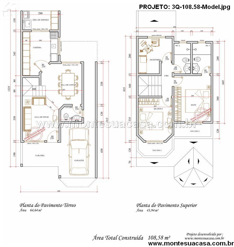
Este projeto de sobrado de 108,58 m² combina conforto, elegância e praticidade em cada detalhe. Desenvolvido para famílias que valorizam integração entre os ambientes e um design moderno, ele se destaca pelo equilíbrio entre estética e funcionalidade. A fachada apresenta linhas contemporâneas, janelas amplas com esquadrias brancas e telhado em tons neutros, criando uma composição harmônica e acolhedora.
Pavimento Térreo – Conforto e Integração
No pavimento térreo, o destaque vai para a sala de estar ampla e iluminada, com visão direta para a piscina, proporcionando momentos de lazer e descontração. A sala de jantar conecta-se à cozinha, criando um espaço fluido que favorece a convivência familiar. A cozinha funcional conta com acesso direto à área de serviço, garantindo praticidade no dia a dia. O lavabo próximo à escada oferece conforto aos visitantes, enquanto a garagem frontal abriga um veículo com acesso coberto.
Pavimento Superior – Privacidade e Tranquilidade
No piso superior, a área íntima da casa oferece dois quartos e uma suíte espaçosa com closet e sacada privativa, ideal para quem busca conforto e privacidade. O escritório complementa o andar, sendo perfeito para quem trabalha em casa ou precisa de um ambiente silencioso para estudos. O projeto ainda conta com duas sacadas, permitindo ventilação cruzada e uma excelente iluminação natural.
Design e Funcionalidade
Com áreas bem distribuídas, este sobrado é ideal para terrenos estreitos e proporciona excelente aproveitamento do espaço. As aberturas amplas garantem conforto térmico e visual, enquanto a área externa com piscina oferece um convite irresistível para o lazer em família.
Este projeto valoriza a convivência e o bem-estar, sendo uma opção perfeita para quem deseja unir beleza, conforto e praticidade em um único lar.










Avaliações
Não há avaliações ainda.