Descrição
Casa térrea moderna e funcional
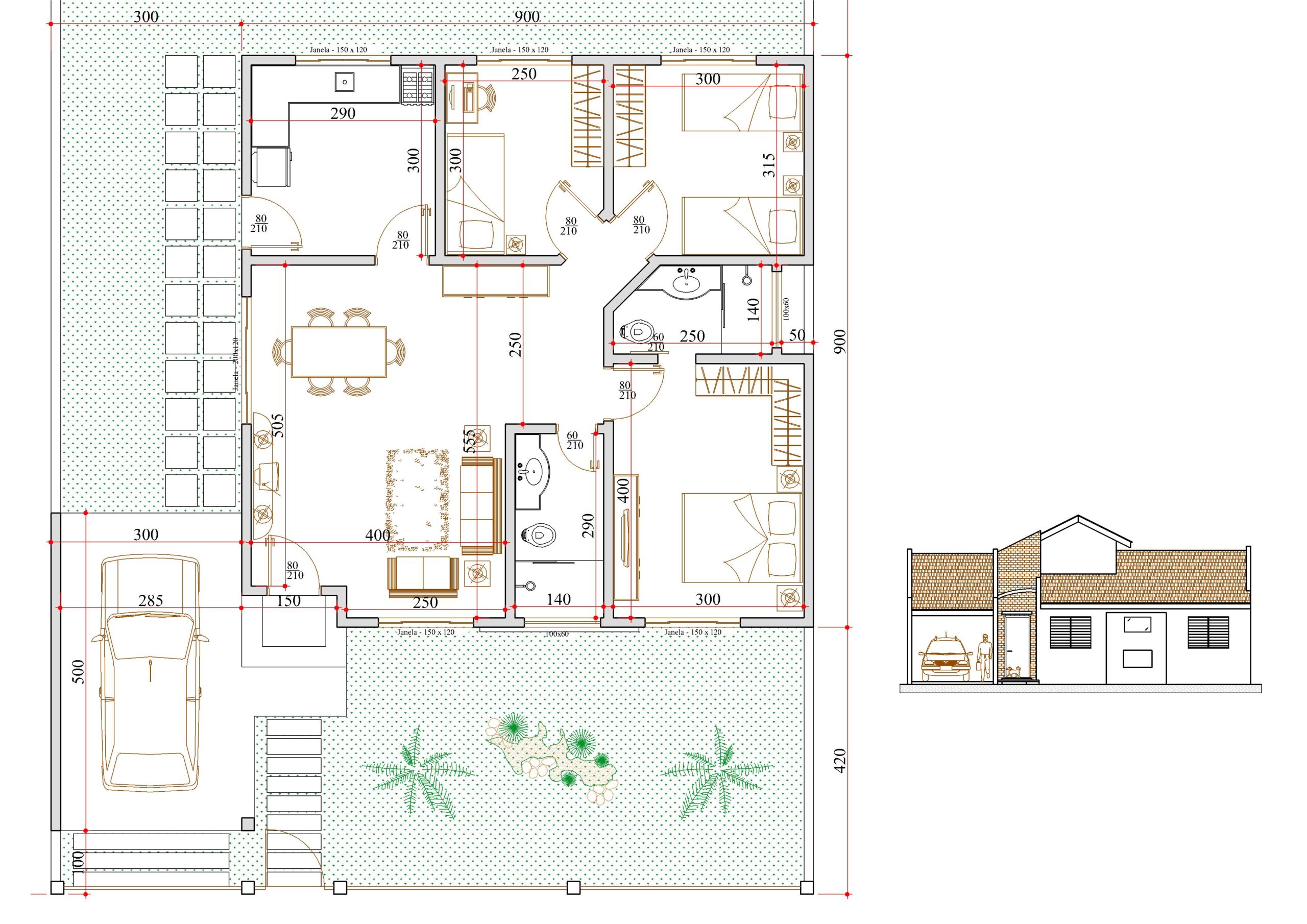
Este projeto de casa térrea com 95,29m² foi cuidadosamente desenvolvido para oferecer conforto, praticidade e excelente aproveitamento de espaço. A fachada apresenta linhas retas, telhado em duas águas e uma charmosa combinação de texturas e volumes, criando um visual moderno e acolhedor. O destaque fica por conta do avanço do telhado sobre a garagem, que garante proteção ao veículo e reforça o equilíbrio estético da fachada.
Integração dos ambientes sociais
Ao entrar na residência, o morador é recebido por uma sala de estar espaçosa e integrada à sala de jantar, criando um ambiente fluido e agradável para o convívio familiar. Essa integração visual amplia a sensação de espaço e favorece a iluminação natural, tornando os cômodos mais arejados e convidativos.
A cozinha, posicionada estrategicamente ao lado da sala de jantar, oferece praticidade no dia a dia e fácil acesso à área externa, ideal para quem gosta de preparar refeições em família ou receber amigos.
Área íntima bem distribuída
A área privativa conta com três quartos confortáveis, sendo um deles suíte, garantindo privacidade ao casal. Os outros dois dormitórios compartilham um banheiro social bem posicionado, com ventilação natural. A disposição dos ambientes garante otimização do espaço e circulação fluida, sem desperdício de área construída.
Garagem e área externa
Na parte frontal, o projeto conta com uma garagem coberta para um carro, integrada ao jardim de entrada. A área externa posterior possui espaço livre que pode ser aproveitado para jardim, área gourmet ou lazer, conforme a necessidade da família.
Conforto e custo-benefício
Com excelente custo de construção e manutenção, esta casa é perfeita para quem busca um lar funcional e aconchegante em um terreno de 9×20 metros. Seu design contemporâneo alia beleza, economia e praticidade, sendo ideal tanto para famílias pequenas quanto médias.









Avaliações
Não há avaliações ainda.