Descrição
Projeto de Casa Térrea com 3 Quartos, Piscina e Espaço Gourmet
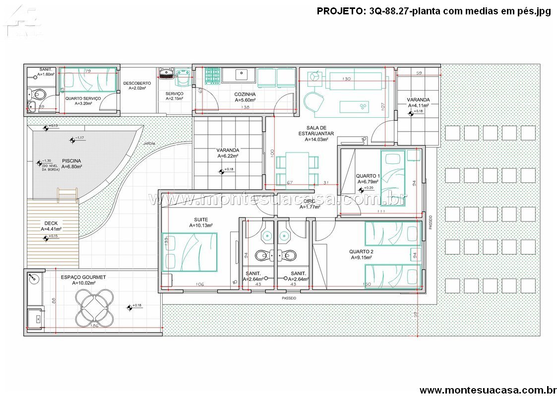
O projeto 3Q-88.27 é uma excelente opção para quem busca uma casa térrea moderna, confortável e funcional. Com 88,27 m² de área construída, esta residência foi cuidadosamente planejada para oferecer praticidade no dia a dia e momentos de lazer inesquecíveis.
Distribuição Inteligente dos Ambientes
A planta apresenta uma sala de estar e jantar integradas, proporcionando amplitude e ventilação cruzada. A cozinha funcional conecta-se à área de serviço e a uma varanda coberta, que garante praticidade e comunicação direta com os espaços externos.
A suíte principal garante conforto e privacidade ao casal, enquanto os dois quartos adicionais atendem perfeitamente às necessidades da família, podendo ser utilizados também como escritório ou quarto de hóspedes.
Área de Lazer Completa
Na parte externa, a casa conta com um deck de madeira, piscina e um espaço gourmet com churrasqueira, perfeito para confraternizações entre amigos e familiares. Esse conjunto transforma a residência em um verdadeiro refúgio para momentos de descanso e diversão.
Design Moderno e Fachada Elegante
A fachada destaca-se pelas linhas retas e volumes bem definidos, valorizados pelo telhado aparente e pela combinação harmônica de cores neutras. O resultado é uma aparência moderna e acolhedora, que se integra facilmente a diferentes estilos de terrenos urbanos ou de campo.
Eficiência e Bem-Estar
O projeto foi pensado para otimizar o aproveitamento do terreno, garantindo iluminação natural e ventilação em todos os cômodos. A circulação interna é fluida e favorece o uso funcional de cada ambiente.
Com excelente custo-benefício, o modelo 3Q-88.27 é ideal para quem deseja construir uma casa aconchegante, de fácil manutenção e com áreas de lazer valorizadas.










Avaliações
Não há avaliações ainda.