Descrição
Projeto de Sobrado Moderno com 2 Quartos e 75,77m²
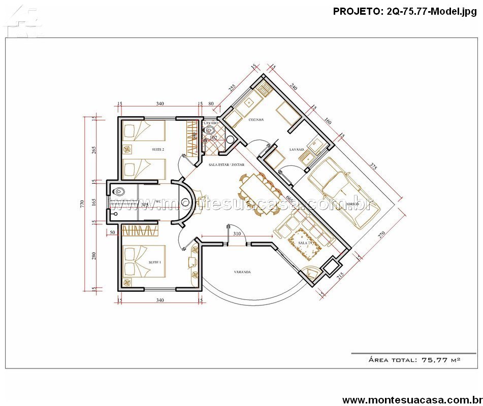
Este projeto de sobrado de 75,77m² combina elegância, funcionalidade e conforto em um layout inteligente, ideal para famílias que buscam um lar moderno e bem aproveitado. O design prioriza a integração dos ambientes e a valorização da área social, criando um espaço acolhedor para o convívio familiar e momentos de lazer.
Distribuição Inteligente dos Ambientes
No pavimento térreo, o destaque é a ampla sala de estar e jantar integradas, que proporciona conforto visual e praticidade no dia a dia. A cozinha está estrategicamente posicionada próxima à área social, facilitando o acesso e a circulação. O lavabo garante comodidade aos visitantes sem interferir na privacidade dos quartos.
A varanda com formato semicircular é um dos grandes diferenciais deste projeto. Ela amplia a sensação de espaço e é perfeita para relaxar ou receber amigos em um ambiente arejado e agradável.
Área Íntima com Conforto e Privacidade
Na área íntima, o sobrado conta com duas suítes espaçosas, garantindo conforto e privacidade para os moradores. A Suíte Principal possui excelente iluminação natural e espaço para armários amplos. A Suíte 2 é ideal para filhos, hóspedes ou até mesmo um escritório, dependendo das necessidades da família.
Arquitetura Moderna e Sofisticada
O projeto apresenta linhas contemporâneas e fachada imponente, valorizando o uso de vidros e recortes geométricos que conferem um toque sofisticado e elegante. O formato do terreno é aproveitado de forma eficiente, tornando este sobrado uma excelente opção para lotes urbanos de dimensões reduzidas.
Funcionalidade e Estilo em um Só Projeto
Cada metro quadrado foi cuidadosamente planejado para unir praticidade e conforto. O resultado é um sobrado versátil, ideal para quem busca um imóvel moderno, funcional e com ótimo custo-benefício.







Avaliações
Não há avaliações ainda.