Descrição
Conceito e Layout
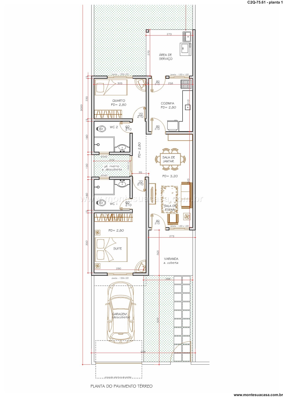
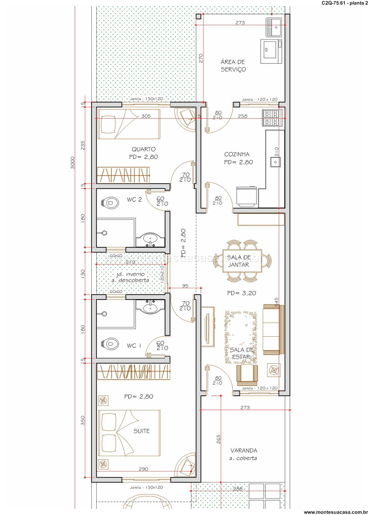
Este projeto residencial de 75.61m2 materializa um conceito arquitetônico moderno, priorizando a funcionalidade e o conforto em um layout inteligente. A planta integra harmonicamente os ambientes sociais, criando uma sensação de amplitude e fluidez. A circulação foi cuidadosamente planejada para conectar os espaços de forma prática e aconchegante, atendendo perfeitamente às necessidades de uma família contemporânea. Cada metro quadrado foi otimizado para oferecer bem-estar e praticidade no dia a dia.
Área Social Integrada
O coração da residência é a área social, que une a sala de estar, a sala de jantar e a cozinha em um ambiente contínuo e acolhedor. Este espaço foi concebido para promover a convivência entre familiares e amigos, sendo ideal para receber visitas e para momentos de descontração. A integração entre os ambientes garante versatilidade e permite uma ventilação e iluminação natural abundantes. Dessa forma, a área torna-se um refúgio diário, cheio de conforto e leveza.
Ambientes Privativos
A zona privativa oferece dois quartos bem dimensionados, incluindo um suíte para maior comodidade e privacidade. Os dois banheiros do projeto seguem um padrão de acabamento de qualidade, combinando praticidade com um design clean. Os dormitórios foram posicionados para assegurar tranquilidade, criando um retiro perfeito para o descanso. Este setor da casa garante o equilíbrio perfeito entre a vida social e a individual.
Funcionalidade e Acabamentos
Completando o projeto, uma área de serviço dedicada assegura a organização das tarefas domésticas, mantendo a funcionalidade da residência. A arquitetura emprega materiais e acabamentos de primeira linha, que reforçam a identidade moderna e sofisticada da construção. A escolha de cada elemento estético e funcional segue um critério de durabilidade e bom gosto. Consequentemente, o resultado final é uma casa que une beleza, personalidade e extrema praticidade.
























Avaliações
Não há avaliações ainda.