Descrição
Casa Térrea com 2 Quartos e Varanda Integrada – Conforto e Funcionalidade em 61,97m²
Design Moderno e Acolhedor
O projeto Casa Térrea 2 Quartos 61,97m² foi desenvolvido para quem busca praticidade e charme em um espaço compacto. Sua fachada moderna combina linhas retas, revestimento em pedra natural e telhado cerâmico, transmitindo elegância e aconchego. O destaque fica por conta da varanda coberta em formato curvo, ideal para momentos de lazer e integração com a área externa.
Ambientes Integrados e Bem Distribuídos
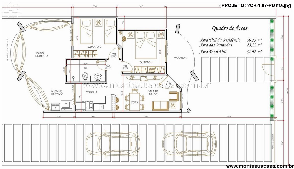
Com 61,97m² de área total, a residência possui 36,75m² de área útil interna e 25,22m² de varandas, aproveitando cada metro de forma inteligente. A planta apresenta dois dormitórios confortáveis, banheiro social, sala de estar e copa integradas, além de uma cozinha funcional com acesso direto à área de serviço.
Essa disposição garante fluidez entre os ambientes e amplia a sensação de espaço, mesmo em um terreno compacto.
Área Externa para Convívio e Relaxamento
A charmosa varanda frontal é o coração social da casa. Perfeita para receber amigos, abrigar um conjunto de mesa e cadeiras ou até mesmo servir como extensão da sala de estar. Nos fundos, o pátio coberto oferece praticidade para atividades domésticas e pode ser adaptado como espaço gourmet ou lavanderia ampliada.
Estilo e Eficiência
A fachada harmoniza tons neutros e elementos naturais, valorizando o estilo contemporâneo. O projeto também prioriza iluminação e ventilação cruzada, garantindo conforto térmico durante todo o ano.
Por ser uma casa térrea, oferece acessibilidade e segurança, tornando-se ideal para famílias com crianças, idosos ou pessoas com mobilidade reduzida.
Ideal para Terrenos Pequenos
Este modelo se adapta perfeitamente a terrenos a partir de 10 metros de frente por 20 metros de fundo, sendo uma excelente opção tanto para moradia principal quanto para casa de veraneio. Seu custo de construção é acessível, mantendo o equilíbrio entre estética, conforto e funcionalidade.











Avaliações
Não há avaliações ainda.