Descrição
Projeto de Casa Térrea com 2 Quartos e 73,04m² — Conforto e Integração em um Layout Moderno
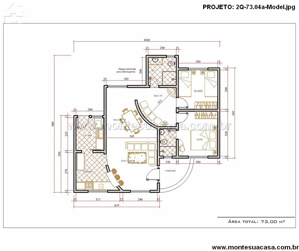
O projeto de casa térrea com 2 quartos e 73,04m² foi elaborado para famílias que buscam praticidade, conforto e um ambiente acolhedor. O design inteligente valoriza cada metro quadrado, integrando espaços de convivência amplos e bem iluminados, sem abrir mão da privacidade dos dormitórios.
A fachada moderna, marcada por linhas retas e varandas suaves, transmite elegância e leveza. Logo na entrada, a sala de estar convida à convivência, sendo perfeita para relaxar ou receber amigos. A integração com a sala de jantar cria um ambiente fluido, ideal para momentos em família. O formato curvo do espaço de circulação central confere um toque de sofisticação e dinamismo à planta, proporcionando um charme arquitetônico diferenciado.
Ambientes Integrados e Funcionais
A cozinha está estrategicamente posicionada próxima à sala de jantar, facilitando o dia a dia e otimizando o preparo das refeições. Ao lado, a área de lavanderia oferece praticidade sem interferir na estética do lar.
Conforto e Privacidade
A área íntima conta com dois dormitórios, sendo uma suíte confortável, com espaço para armário e excelente iluminação natural. O segundo quarto, também espaçoso, atende perfeitamente a crianças, hóspedes ou uso como escritório. Os banheiros foram projetados de forma funcional, com circulação eficiente e aproveitamento ideal do espaço.
Lazer e Convivência
Nos fundos, há um espaço reservado para churrasqueira, que amplia o uso social da casa e cria um ambiente ideal para confraternizações. A varanda frontal complementa o charme do projeto, oferecendo uma área coberta para descanso e contemplação.
Eficiência e Estilo
Com um layout pensado para terrenos a partir de 10 metros de largura, o projeto aproveita ao máximo a área construída. As proporções equilibradas e o design moderno tornam esta casa uma excelente opção para quem deseja um lar bonito, funcional e econômico.








Avaliações
Não há avaliações ainda.