Descrição
Casa Térrea com 2 Quartos e 60,80m² – Projeto Compacto e Funcional
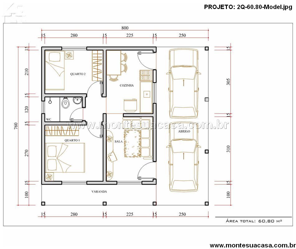
Este projeto de casa térrea de 60,80m² foi cuidadosamente planejado para oferecer conforto, praticidade e excelente aproveitamento do espaço em um terreno compacto. Com dois dormitórios, sala integrada à cozinha e abrigo para dois carros, é uma opção ideal para famílias pequenas ou casais que valorizam um lar bem distribuído, funcional e de fácil manutenção.
Ambientes bem distribuídos
A planta apresenta uma organização simples e eficiente. Logo na entrada, uma varanda charmosa dá boas-vindas e conduz à sala de estar, que se integra à cozinha, formando um ambiente agradável para o convívio diário. Essa integração proporciona amplitude visual e facilita a circulação.
Os dois quartos estão localizados na parte posterior, garantindo privacidade aos moradores. O banheiro social é estrategicamente posicionado entre eles, otimizando o uso e facilitando o acesso.
Praticidade e conforto no dia a dia
O projeto prioriza a funcionalidade. A cozinha compacta foi pensada para acomodar armários e eletrodomésticos sem comprometer o espaço de circulação. O abrigo coberto para dois carros, localizado ao lado da casa, é ideal para quem busca segurança e praticidade.
Além disso, o layout retangular facilita a adaptação do projeto a diferentes tipos de terrenos, sejam eles estreitos ou largos.
Design moderno e custo acessível
A simplicidade da fachada, aliada a linhas retas e proporções equilibradas, confere à residência um estilo moderno e elegante. Trata-se de uma casa com excelente relação custo-benefício, indicada para quem deseja construir com orçamento controlado, sem abrir mão do conforto e da estética.
Versatilidade de uso
Este projeto se adapta facilmente tanto para moradia principal quanto para casa de veraneio. Sua metragem enxuta facilita a manutenção e permite ampliar o espaço no futuro, caso o terreno permita novas construções.







Avaliações
Não há avaliações ainda.