Descrição
Este projeto residencial de alto padrão apresenta um design exclusivo e funcional. Com uma área total construída de 563.76m² em um terreno de 1000 m², o projeto maximiza o conforto e o luxo em cada detalhe. A propriedade se desenvolve em três pavimentos claramente definidos, oferecendo privacidade e uma distribuição inteligente dos ambientes.
Espaços Generosos e Conforto Familiar
O pavimento térreo, com 347,29 m², abriga a social da casa. A área gourmet integrada é perfeita para receber amigos e familiares, enquanto a ampla sala de estar proporciona um ambiente aconchegante. O projeto prioriza a fluidez entre os cômodos, criando um espaço ideal para o dia a dia e para entretenimento. A área livre de 652,71 m² permite a integração com o exterior, oferecendo potencial para um jardim ou piscina.
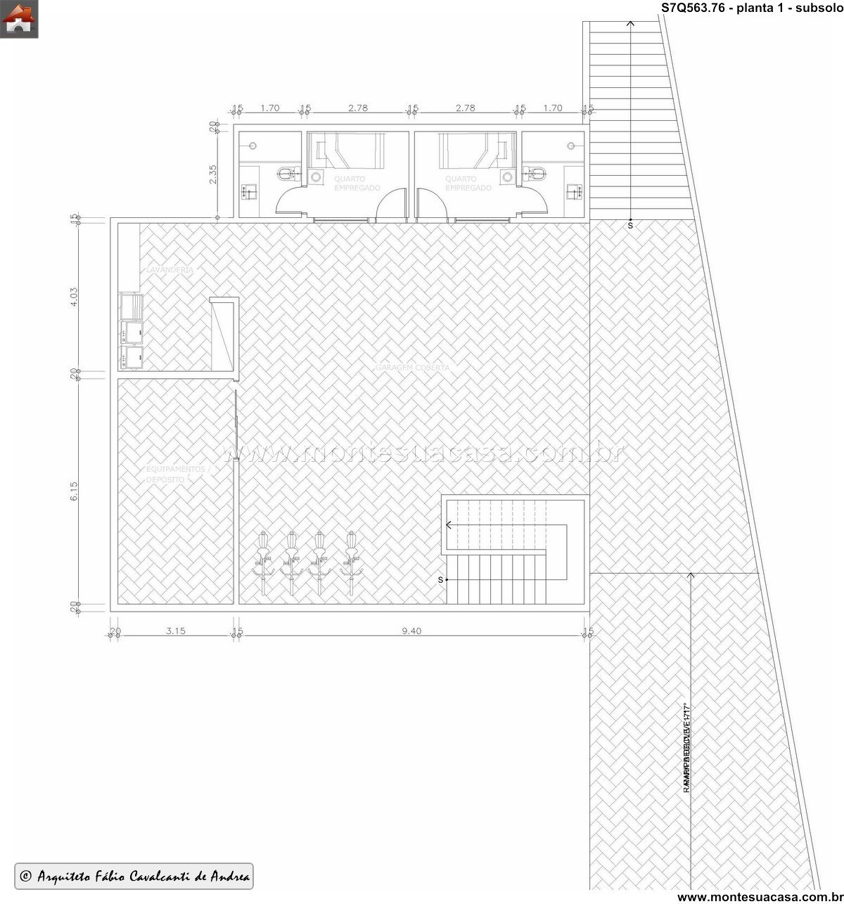
Privacidade e Lazer no Subsolo
O subsolo, com 164,79 m², apresenta-se como um refúgio para o lazer e o entretenimento. Este pavimento é ideal para um cinema, adega ou sala de jogos, proporcionando um ambiente isolado para momentos de descontração. Sua localização garante conforto acústico e térmico, tornando-o um espaço versátil para todos os gostos.
Suítes e Intimidade no Pavimento Superior
O pavimento superior, com 216,47 m², é dedicado ao descanso e à privacidade. Abrigando os sete quartos, incluindo suítes master, este andar oferece um retiro tranquilo para a família. Os ambientes são planejados para garantir conforto e praticidade, com circulação otimizada e iluminação natural. Os dormitórios proporcionam um ambiente sereno, longe da agitação dos espaços sociais.
Acabamentos e Personalização
O projeto permite total personalização nos acabamentos, escolhidos a dedo para refletir o estilo dos moradores. A arquitetura prioriza materiais de alta qualidade e durabilidade, assegurando um resultado final sofisticado e atemporal. Cada detalhe é pensado para combinar estética e funcionalidade, criando um lar único. A planta é um convite para criar memórias em um ambiente que é verdadeiramente sua casa.














Avaliações
Não há avaliações ainda.