Descrição
Casa Moderna 63.66m²: Conforto Familiar e Design Integrado
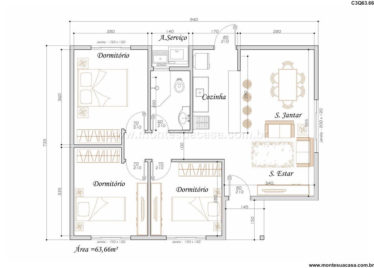
Esta casa contemporânea de 63.66m² foi concebida para famílias que valorizam espaços funcionais e aconchegantes. O projeto distribui harmonicamente três dormitórios em uma planta bem resolvida, onde a privacidade dos ambientes noturnos dialoga perfeitamente com a integração das áreas sociais. Cada metro quadrado foi otimizado para garantir conforto e praticidade no dia a dia, resultando em um lar que combina modernidade e funcionalidade de forma equilibrada. A circulação fluida entre os cômodos cria uma sensação de amplitude, reforçada pela iluminação natural estrategicamente planejada.
Distribuição Inteligente dos Ambientes
A área social se destaca pela integração entre a sala de estar e a sala de jantar, formando um ambiente espaçoso ideal para convívio familiar e entretenimento. A cozinha, conectada à área de serviço, oferece praticidade para as refeições e atividades domésticas diárias. Os três dormitórios garantem privacidade e conforto para todos os moradores, com armários embutidos proporcionando organização. Os banheiros atendem perfeitamente às necessidades da família, complementando esta casa que valoriza o bem-estar e a qualidade de vida.
Características Arquitetônicas e Conforto
Os materiais e acabamentos selecionados conferem durabilidade e um visual contemporâneo a todos os ambientes. As aberturas estrategicamente posicionadas maximizam a ventilação cruzada e a iluminação natural, reduzindo o consumo energético. Os pisos cerâmicos de alta qualidade oferecem fácil manutenção, enquanto as esquadrias em alumínio complementam o conjunto com modernidade. Este projeto representa a definição de um lar familiar que une bom gosto, conforto e otimização espacial exemplar.











Avaliações
Não há avaliações ainda.