Descrição
Casa térrea compacta com 2 quartos e excelente aproveitamento de espaço
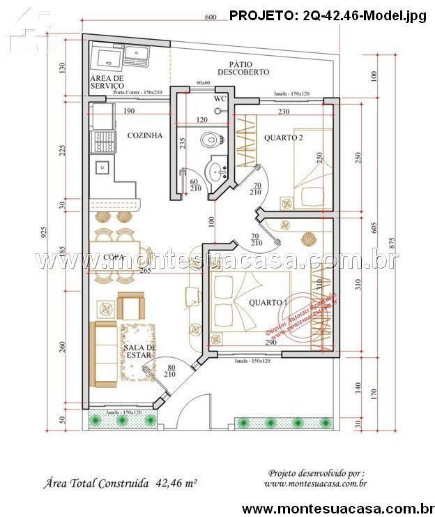
Este projeto de casa térrea com 42,46 m² foi desenvolvido para quem busca funcionalidade, conforto e economia em um espaço bem planejado. O layout inteligente proporciona fluidez entre os ambientes, valorizando cada metro quadrado e tornando esta uma excelente opção para famílias pequenas, casas de veraneio ou investimento em loteamentos.
A fachada apresenta um design simples e moderno, com linhas retas e telhado aparente, transmitindo leveza e harmonia. As aberturas amplas permitem boa iluminação natural e ventilação cruzada, contribuindo para um ambiente interno mais agradável e sustentável.
Ambientes integrados e bem distribuídos
Ao entrar na residência, o morador é recebido pela sala de estar integrada à cozinha e copa, um espaço perfeito para convivência familiar. Essa integração amplia a sensação de espaço e facilita o dia a dia, tornando o ambiente mais funcional.
A área íntima da casa conta com dois dormitórios bem dimensionados: um quarto principal confortável e um segundo quarto ideal para crianças, hóspedes ou até mesmo para ser usado como home office. O banheiro social é estrategicamente localizado entre os quartos, garantindo praticidade e fácil acesso.
Área de serviço e pátio funcional
Nos fundos, o projeto inclui uma área de serviço coberta e um pátio descoberto, proporcionando praticidade para o uso diário e a possibilidade de criar um espaço de lazer com plantas, varal ou até mesmo uma pequena churrasqueira.
O projeto otimiza a circulação e oferece um excelente custo-benefício para quem deseja construir uma casa compacta sem abrir mão de conforto e beleza. Seu formato retangular facilita a adaptação em terrenos pequenos ou estreitos, permitindo construções geminadas ou em série.
Sustentabilidade e eficiência
Além de compacto, o projeto favorece o uso racional de materiais e energia. As aberturas bem posicionadas aproveitam a luz natural, reduzindo o consumo de eletricidade e proporcionando ventilação eficiente durante todo o dia.








Avaliações
Não há avaliações ainda.