Descrição
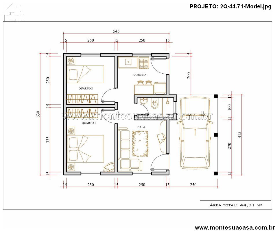
Projeto de Casa Térrea com 2 Quartos e Garagem – 44,71 m²
Este projeto de casa térrea com 2 quartos e garagem apresenta uma solução inteligente e funcional para quem busca conforto, praticidade e ótimo aproveitamento de espaço em um terreno compacto. Com área total de 44,71 m², o layout foi cuidadosamente desenvolvido para oferecer ambientes integrados e bem ventilados, ideais para famílias pequenas, casais ou pessoas que desejam investir em um imóvel econômico e aconchegante.
Planta funcional e bem distribuída
O projeto conta com uma sala de estar confortável, posicionada estrategicamente na entrada principal, proporcionando uma recepção agradável aos visitantes. Em sequência, encontra-se a cozinha, com espaço suficiente para bancada, pia e armários, permitindo uma rotina doméstica organizada e prática. A integração entre sala e cozinha torna o ambiente mais amplo e favorece a convivência diária.
Quartos confortáveis e privacidade
A área íntima da casa possui dois dormitórios, bem dimensionados, ideais para acomodar uma família com até quatro pessoas. O quarto principal recebe boa iluminação natural, enquanto o segundo quarto pode ser utilizado como dormitório infantil, escritório ou quarto de hóspedes, conforme a necessidade dos moradores.
Banheiro e área de serviço funcional
O banheiro social está localizado de forma estratégica, próximo aos quartos e à área social, garantindo fácil acesso e privacidade. A disposição favorece a ventilação cruzada, evitando acúmulo de umidade e mantendo o ambiente sempre fresco.
Garagem e fachada compacta
A garagem coberta para um carro é um dos diferenciais deste modelo. Ela complementa o projeto com praticidade, além de valorizar a fachada moderna e harmoniosa da residência. O desenho da planta também permite futuras ampliações, como varanda, área gourmet ou lavanderia coberta, conforme o terreno disponível.
Um projeto perfeito para terrenos pequenos
Com dimensões otimizadas e estilo contemporâneo, este projeto é ideal para terrenos a partir de 7 metros de frente. Sua estrutura simples reduz custos de construção e garante excelente relação custo-benefício, sem abrir mão do conforto e da estética.







Avaliações
Não há avaliações ainda.