Descrição
Uma Obra de Arquitetura que Transforma Espaços em Experiências
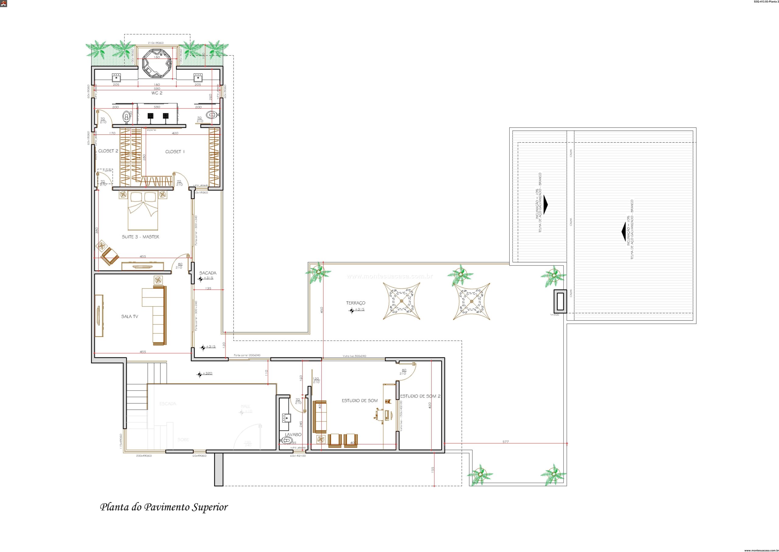
Este projeto de sobrado moderno com 413.93 metros quadrados redefine o conceito de lar contemporâneo. A residência apresenta três quartos bem distribuídos, integrando áreas privativas e de lazer com maestria. Cada ambiente foi meticulosamente planeado para oferecer conforto e funcionalidade. A arquitectura privilegia a fluidez entre os espaços, criando uma sensação de amplitude e liberdade.
Distribuição Inteligente de Espaços
A planta organiza-se em sectores distintos que se complementam perfeitamente. A área residencial principal ocupa 413.93m², enquanto os espaços especializados somam 293.81m² para as áreas privativas e 122.10m² para os ambientes de lazer. Esta divisão estratégica garante privacidade quando necessário e integração quando desejada. O projeto inclui ainda 58.00m² dedicados a actividades específicas e 102.13m² para espaços de convívio e entretenimento.
Conceito Arquitetónico Inovador
A linguagem arquitectónica contemporânea manifesta-se através de linhas puras e volumes bem definidos. Os materiais foram selecionados para garantir durabilidade e estética, criando uma harmonia visual que encanta à primeira vista. A iluminação natural foi maximizada em todos os ambientes, proporcionando bem-estar e reduzindo o consumo energético. Os espaços exteriores dialogam perfeitamente com os interiores, ampliando visualmente os ambientes.
Excelência em Design e Funcionalidade
Cada detalhe foi pensado para melhorar a experiência diária dos moradores. A circulação fluida entre os ambientes facilita o dia a dia enquanto mantém a privacidade dos sectores íntimos. Os materiais de acabamento combinam sofisticação e praticidade, resultando num espaço tão belo quanto funcional. Este projeto representa o equilíbrio perfeito entre forma e função, criando um lar que é simultaneamente refúgio e espaço de convívio.















Avaliações
Não há avaliações ainda.