Descrição
Conceito e Integração Arquitetônica
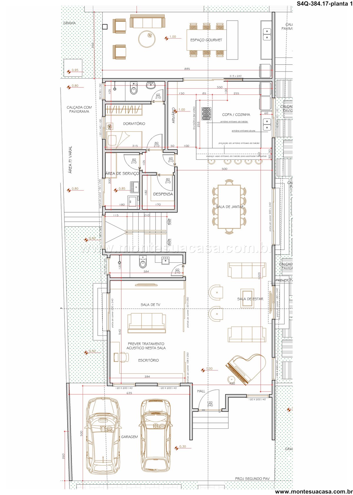
Este projeto de sobrado contemporâneo, com 384.17 metros quadrados, foi meticulosamente planejado para uma família moderna que valoriza o convívio e o conforto. A arquitetura privilegia a integração entre os ambientes internos e a área externa, criando uma sensação de amplitude e continuidade. Linhas retas e volumes bem definidos compõem a fachada, conferindo um caráter urbano e sofisticado à residência. A luz natural invade os espaços generosos, destacando a paleta de cores neutras e os acabamentos de alta qualidade selecionados para cada ambiente. O projeto transcende a simples construção, oferecendo uma experiência de vida completa e integrada.
Ambientes Social e Lazer Integrados
A área social foi concebida como um grande espaço fluido, perfeito para receber amigos e desfrutar em família. A sala de estar integra-se perfeitamente à sala de jantar e à cozinha gourmet, formando o coração da casa. Este ambiente é amplo e arejado, com grandes esquadrias que garantem iluminação e ventilação naturais. A cozinha gourmet, aberta e totalmente equipada, possui uma ilha central que se torna um ponto de convívio. A área gourmet se estende para o exterior, conectando-se diretamente com a varanda e a piscina, criando o cenário ideal para momentos de descontração e entretenimento.
Conforto e Privacidade nos Quartos
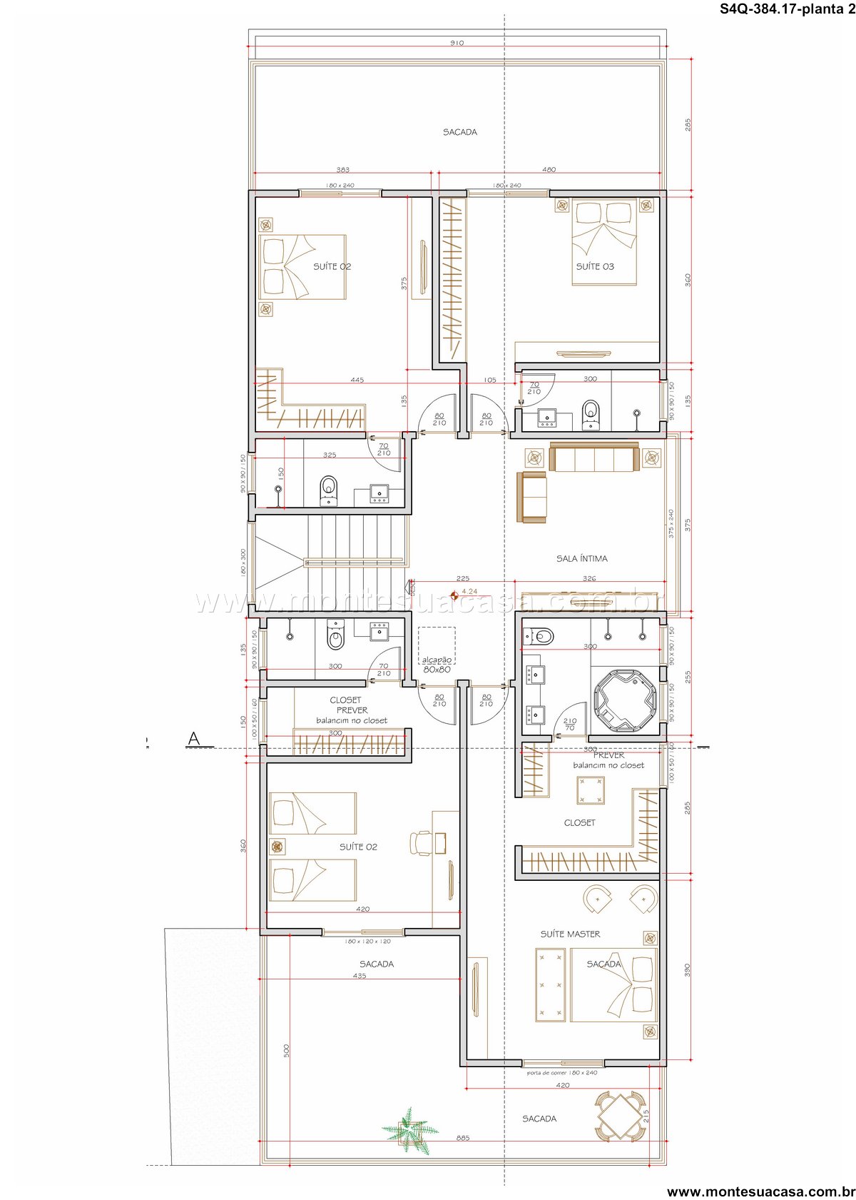
No pavimento superior, o projeto assegura absoluta privacidade e tranquilidade nos quatro quartos. A suíte master é um refúgio de luxo, com amplo espaço, closet planejado e banheiro privativo com acabamentos premium. As outras três suítes são igualmente confortáveis e bem distribuídas, atendendo perfeitamente às necessidades da família ou de hóspedes. Todos os quartos foram posicionados para aproveitar a orientação solar favorável, garantindo conforto térmico ao longo do dia. Os corredores são amplos e bem iluminados, reforçando a sensação de aconchego e bem-estar que permeia todo o andar.
Área Externa e Paisagismo
O projeto valoriza intensamente o contato com a natureza através de sua área externa funcional e belamente paisagista. A piscina se torna o ponto focal de lazer, rodeada por um deck de madeira que convida ao relaxamento. O jardim foi cuidadosamente planejado com espécies nativas e de baixa manutenção, criando um ambiente sereno e verde. A varanda gourmet, com churrasqueira e área de festas, é uma extensão natural da sala, perfeita para jantares ao ar livre e fins de semana inesquecíveis. Este espaço promove uma verdadeira integração entre o interior sofisticado e o exterior revitalizante.












Avaliações
Não há avaliações ainda.