Descrição
Projeto Arquitetônico Completo para uma Casa Moderna
Este projeto de 129.67 m² foi meticulosamente elaborado para proporcionar o máximo em conforto e praticidade para você e sua família. A distribuição inteligente dos ambientes em dois pavimentos garante uma rotina fluida e aconchegante. No pavimento térreo, a área social se destaca pela integração entre a sala de estar, a sala de jantar e a varanda. Esse layout amplo e conectado é ideal para receber visitas e para momentos de descontração em família. A varanda se torna uma extensão natural da sala, perfeita para um café da manhã ou para contemplar o final do dia.
A cozinha, integrada à área de lavanderia, forma um núcleo prático e eficiente para as atividades do dia a dia. A presença de um lavabo social no térreo adiciona uma grande comodidade para os residentes e visitantes. O desenho dos ambientes prioriza a circulação desimpedida e a entrada de luz natural, criando um ambiente sempre agradável e acolhedor. Cada metro quadrado foi pensado para oferecer bem-estar, com um design que combina estética moderna e funcionalidade absoluta.
Ambientes Privativos e Conforto no Pavimento Superior
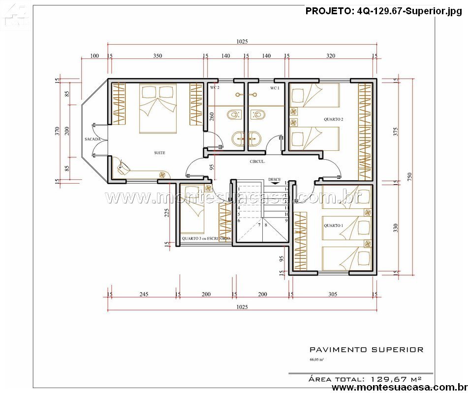
O pavimento superior é dedicado aos ambientes privativos, abrigando os quatro quartos. A suíte master oferece um refúgio pessoal com seu espaço generoso e uma sacada privativa. Os demais quartos são bem dimensionados, proporcionando conforto para todos os membros da família. Um dos cômodos pode ser facilmente adaptado como escritório ou quarto de recreação, conforme a necessidade. Dois banheiros completos atendem a este pavimento, assegurando praticidade durante a rotina.
A circulação no superior foi planejada para garantir privacidade aos dormitórios enquanto mantém uma conexão fácil com o piso inferior. A área total do projeto é perfeitamente distribuída, resultando em uma casa que parece ainda mais espaçosa do que seus números indicam. Este projeto é a solução ideal para quem busca uma residência com identidade própria, moderna e preparada para todos os momentos da vida familiar.










Avaliações
Não há avaliações ainda.