Descrição
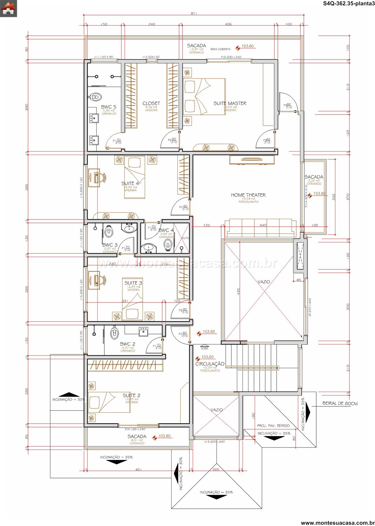
Este sobrado contemporâneo de 362.35 metros quadrados foi meticulosamente projetado para oferecer uma experiência de vida fluida e integrada à natureza. A distribuição inteligente dos ambientes em dois pavimentos garante privacidade e funcionalidade para a família. A arquitetura valoriza os espaços amplos e a iluminação natural, criando um refúgio que combina sofisticação e conforto.
A fachada deste sobrado impressiona com suas linhas clean e elementos que sugerem a integração entre interior e exterior. O projeto demonstra um cuidado especial com a ventilação e a entrada de luz, principles fundamentais para um lar aconchegante e energeticamente eficiente. A presença de um jardim valoriza a paisagem e promove um ambiente sereno.
Ambientes Internos e Conforto
Os quatro quartos proporcionam amplo espaço para a família, sendo a suíte master um verdadeiro refúgio de privacidade. Os ambientes sociais foram estrategicamente posicionados para facilitar o fluxo do dia a dia e incentivar a convivência. A planta interna revela um layout prático que atende perfeitamente às necessidades de uma vida moderna.
Área Externa e Lazer
A área externa é um grande destaque, apresentando um espaçoso deck de madeira com 25.64 m², perfeito para momentos de descontração e entretenimento. A área de jardim oferece um contato direto com a natureza, enquanto a calçada de 35.73 m² em São Tomé garante acessibilidade e durabilidade. O projeto de paisagismo complementa o conjunto, criando um oasis particular.
Este projeto arquitetônico é a definição de um lar moderno, onde cada metro quadrado foi otimizado para oferecer bem-estar e praticidade. A combinação de materiais de qualidade e um design pensado nos mínimos detalhes resulta em uma residência única, preparada para criar memórias inesquecíveis.

















Avaliações
Não há avaliações ainda.