Descrição
Conceito e Distribuição Espacial
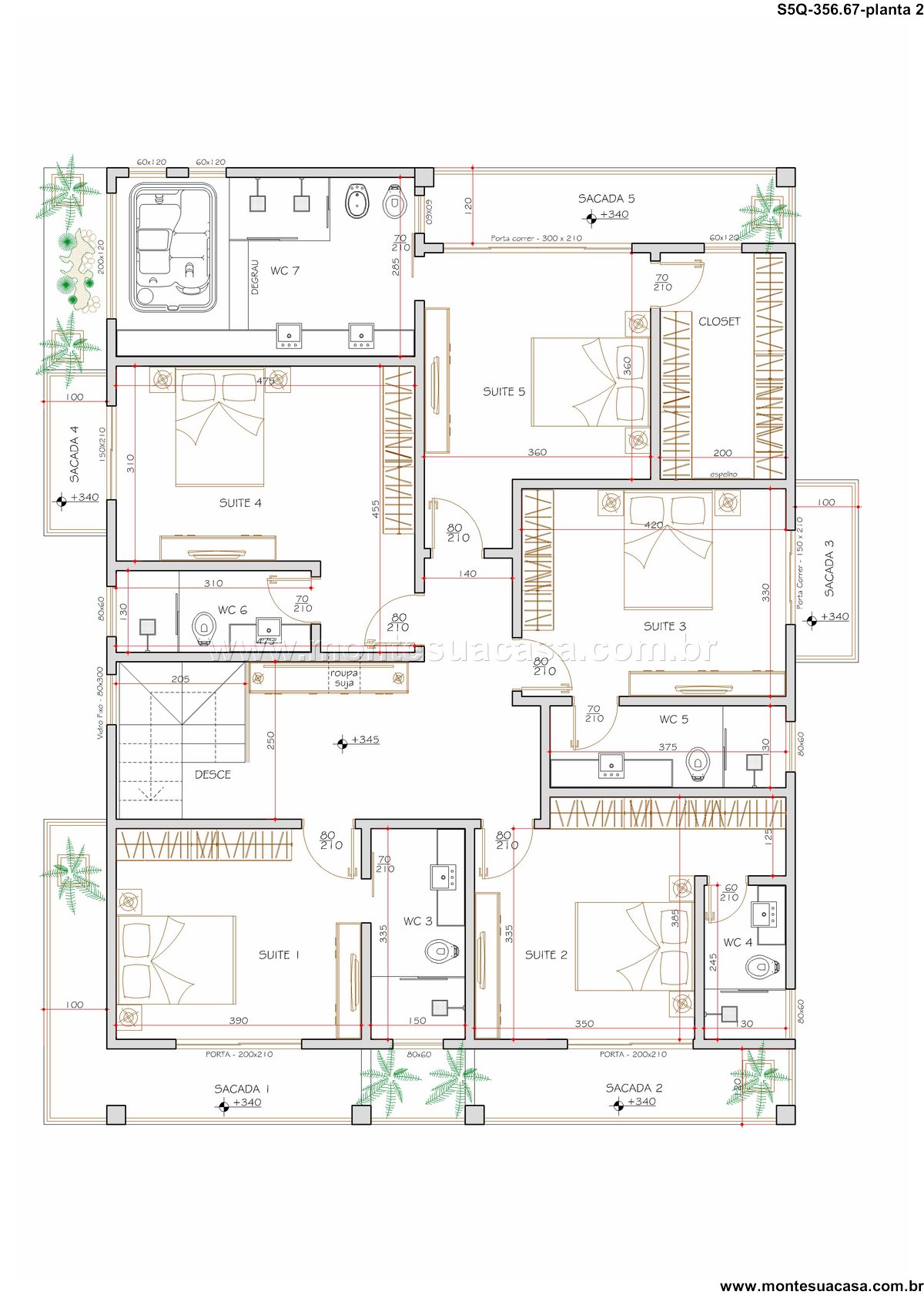
Este imponente sobrado de 356.67 metros quadrados redefine o conceito de moradia familiar contemporânea. O projeto arquitetônico inteligente distribui harmonicamente os cinco quartos, sendo três suítes, garantindo privacidade e conforto para todos os residentes. A circulação fluida entre os ambientes cria uma sensação de amplitude e conectividade. A planta baixa meticulosamente planejada assegura que cada metro quadrado seja aproveitado com máxima eficiência e propósito. Além disso, a integração entre os espaços internos e externos potencializa a experiência de morar.
Ambientes Internos e Privacidade
As suítes oferecem refúgios privativos de luxo, com dimensões generosas que acomodam facilmente áreas de dormir e descanso. Os closets planejados proporcionam organização e praticidade no dia a dia. Os banheiros sociais e privativos seguem um padrão elevado de acabamentos. A área social se expande de forma coesa, ideal para receber amigos e familiares com grande sofisticação. Os sacadas estratégicas ampliam a área útil e conectam os cômodos com o exterior, trazendo abundância de luz natural e ventilação.
Acabamentos e Integração com a Natureza
O projeto seleciona materiais de alta qualidade para compor uma estética moderna e atemporal. Os revestimentos, pisos e metais foram escolhidos para oferecer durabilidade e um visual elegante. A conexão com a natureza é um pilar do design, promovendo bem-estar e tranquilidade. Cada detalhe, das esquadrias ao sistema de iluminação, foi pensado para enriquecer a vivência no imóvel. O resultado final é uma residência que combina requinte arquitetônico com a calorosa funcionalidade de um lar.

























Avaliações
Não há avaliações ainda.