Descrição
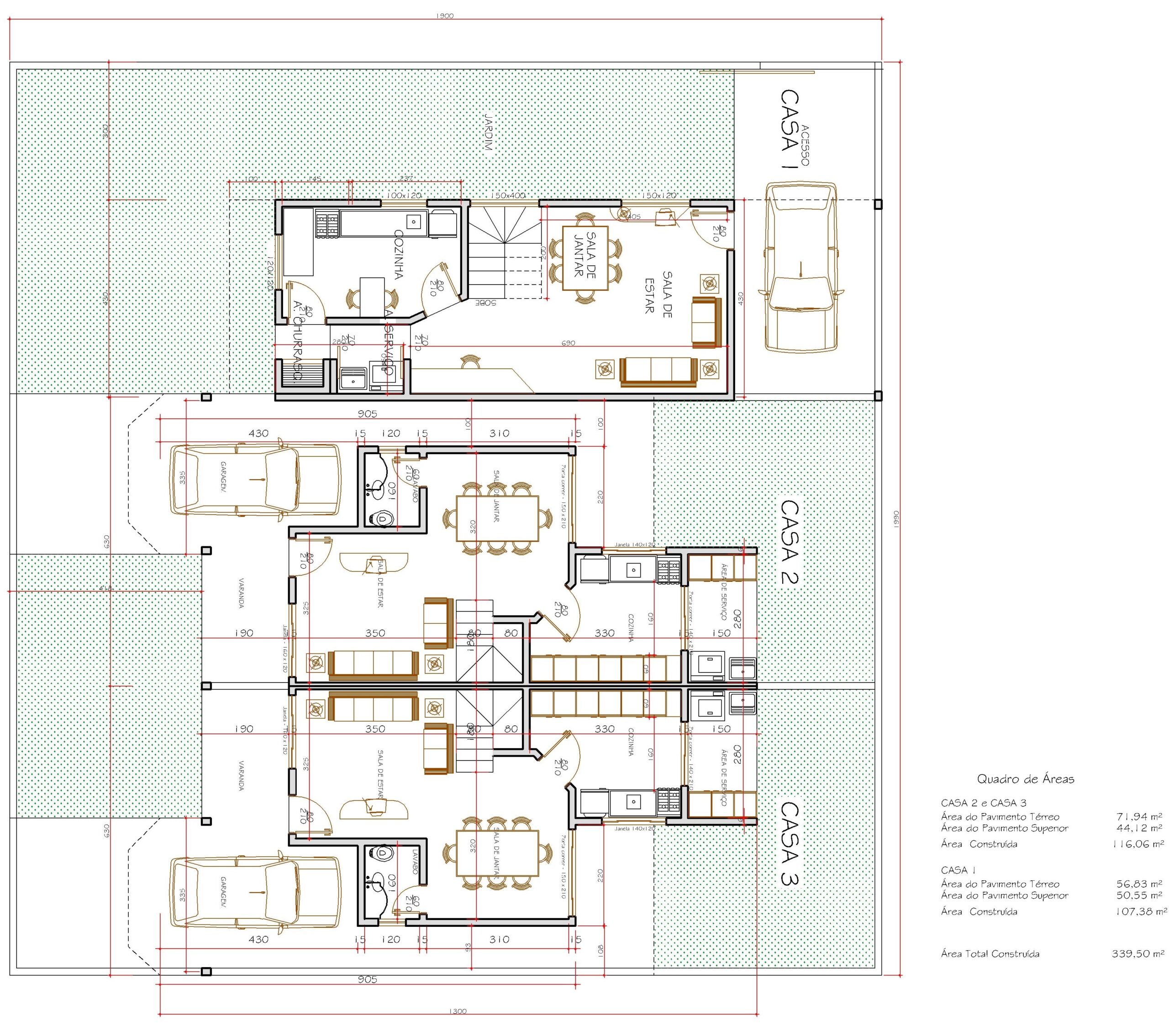
Este projeto arquitetônico multifamiliar apresenta três unidades residenciais distribuídas em um terreno de 339,50m², ideal para famílias que valorizam conforto, funcionalidade e estética contemporânea. Com design inteligente e aproveitamento máximo do espaço, cada unidade oferece ambientes bem definidos e integração entre áreas sociais e privadas.
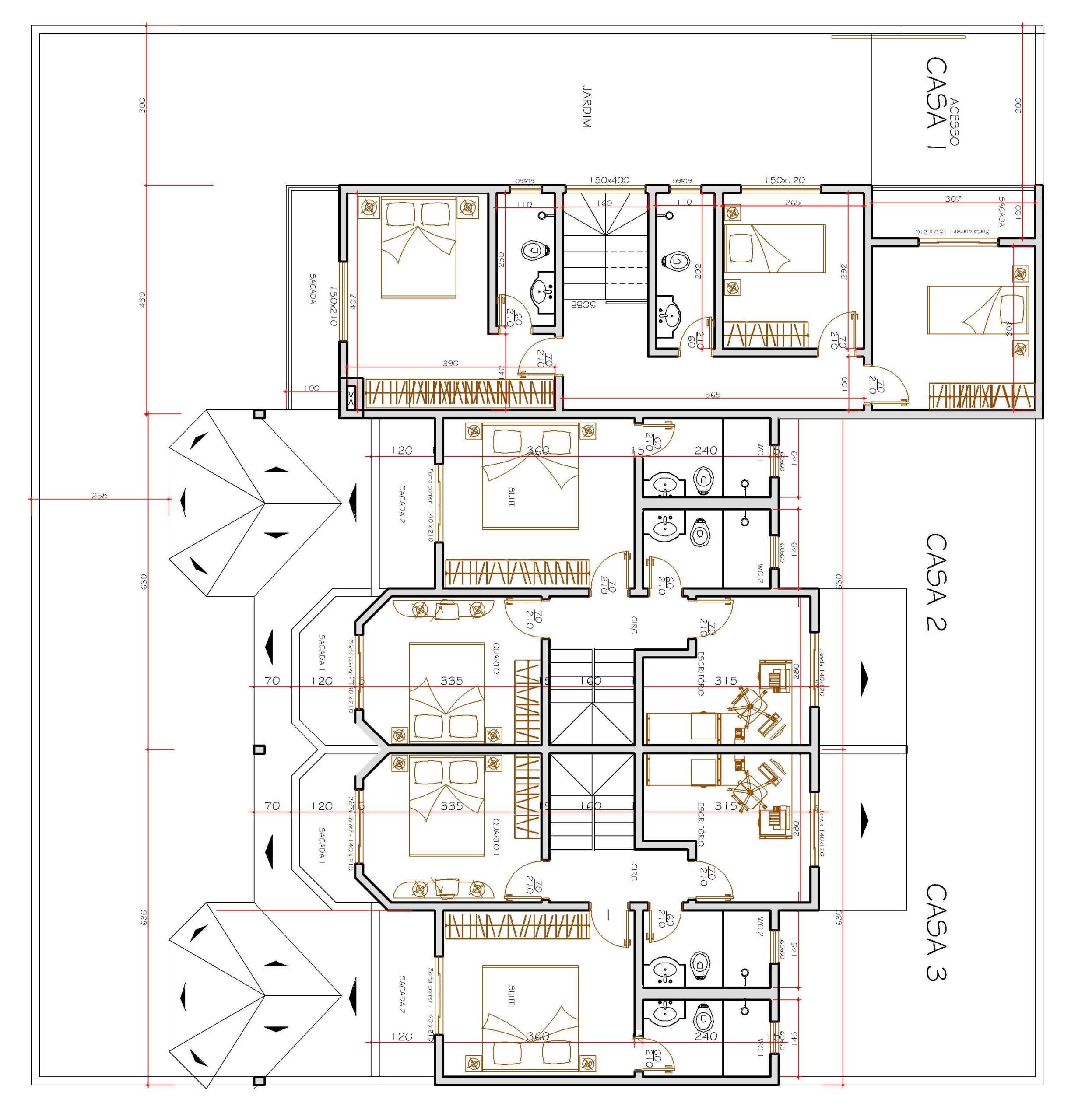
Distribuição das unidades A unidade 1 possui 107,38m² e apresenta uma configuração diferenciada, com destaque para a suíte principal e a área de convivência ampliada. Já as unidades 2 e 3, com 116,06m² cada, seguem um layout espelhado, otimizando a construção e garantindo privacidade entre os moradores. Todas as unidades contam com três quartos, sendo uma suíte, além de sala de estar, sala de jantar, cozinha funcional e banheiros bem posicionados.
Conforto e funcionalidade As varandas integradas às salas proporcionam ventilação cruzada e iluminação natural abundante. O projeto inclui garagens cobertas para cada unidade, além de áreas externas ajardinadas que valorizam o paisagismo e promovem bem-estar. A circulação interna é fluida, com escadas centrais que conectam os pavimentos de forma segura e elegante.
Estilo arquitetônico e acabamento A fachada moderna combina revestimentos neutros com detalhes em vidro e alumínio, criando uma estética sofisticada e acolhedora. O telhado em duas águas com inclinação suave reforça o estilo contemporâneo e garante excelente desempenho térmico. As sacadas com guarda-corpo em vidro ampliam a sensação de espaço e oferecem vistas agradáveis da área externa.
Ideal para investimento ou moradia Este projeto é perfeito para quem busca moradia confortável ou deseja investir em imóveis com alto potencial de valorização. A configuração multifamiliar permite flexibilidade de uso, seja para aluguel, moradia compartilhada ou residência ampliada para familiares.














Avaliações
Não há avaliações ainda.