Descrição
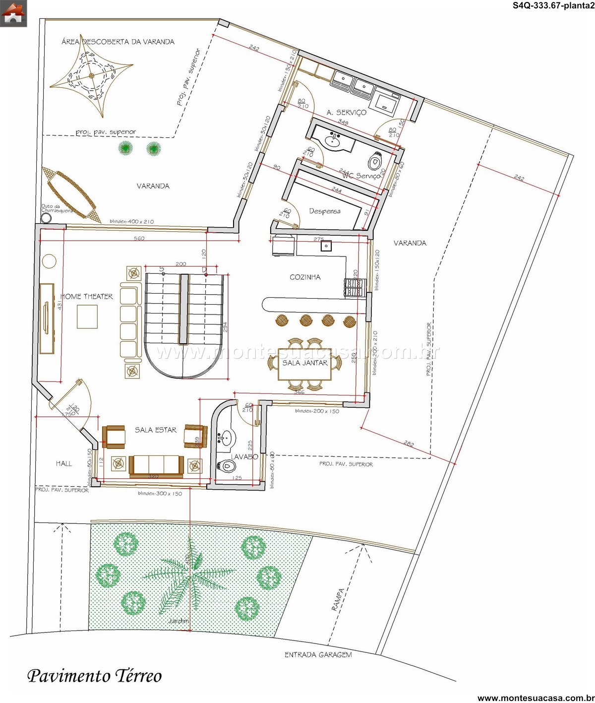
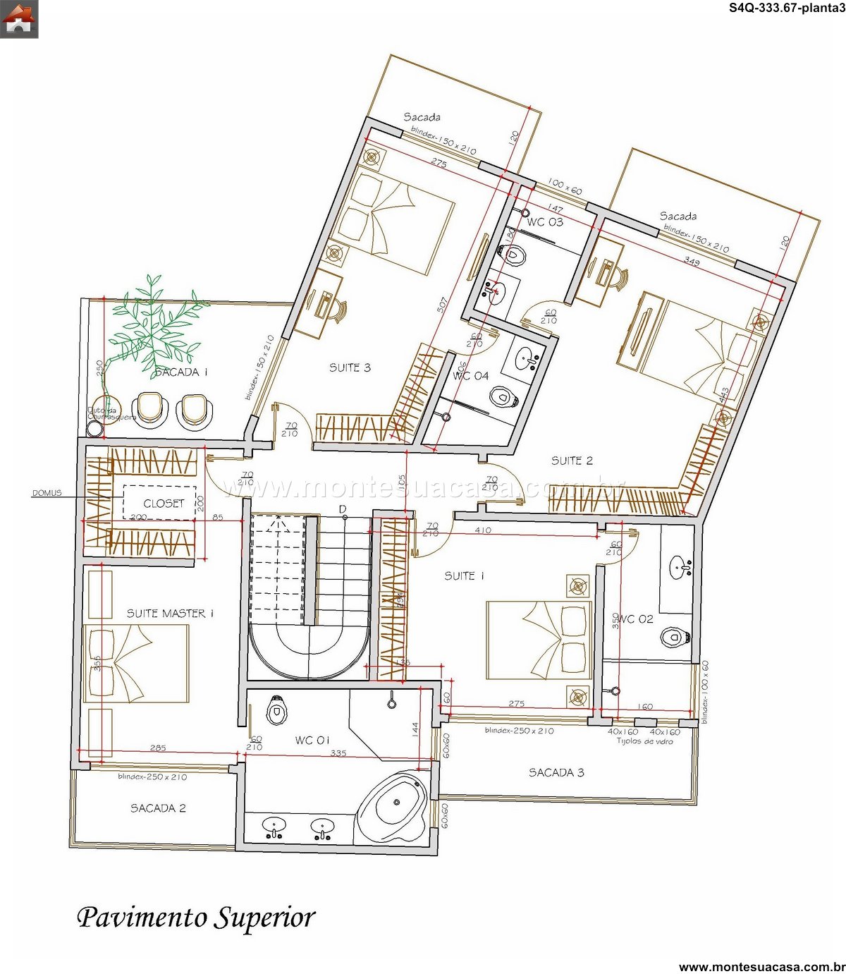
Este projeto arquitetônico foi especialmente desenvolvido para aproveitar as características de um terreno em declive, criando uma solução inteligente e contemporânea. O sobrado de 333.67 metros quadrados integra-se perfeitamente à topografia natural do lote. A implantação estratégica valoriza os desníveis existentes, gerando volumes interessantes e vistas privilegiadas. A residência oferece conforto e funcionalidade para uma família moderna, com espaços que dialogam harmoniosamente com a paisagem. A arquitetura aproveita o declive para criar setores bem definidos e privacidade entre os ambientes.
Aproveitamento Inteligente do Terreno
O projeto transforma o desafio do declive em uma grande vantagem arquitetônica. O Subsolo abriga a Entrada de Garagem e áreas técnicas, aproveitando o desnível natural. A circulação vertical entre os pavimentos foi cuidadosamente planejada para garantir acessibilidade e conforto. Os diferentes níveis criam perspectivas únicas para os ambientes internos e externos. As Sacadas emergem como elementos de transição entre a arquitetura e a paisagem. Esta solução demonstra como a topografia pode ser aliada do bom design.
Áreas de Lazer e Convívio
A área social se expande para o exterior através da integração com a Churrasqueira e Piscina. A Área de Paisagens foi pensada para compensar o declive com terraços e patamares. O Canil encontra localização adequada, considerando a topografia do terreno. Os espaços de entretenimento fluem naturalmente entre os diferentes níveis da propriedade. A piscina se integra visualmente com os demais ambientes, criando um refúgio particular. Estes elementos transformam o lazer ao ar livre em uma experiência única.
Conforto e Organização Interna
Os quatro quartos distribuem-se de forma estratégica, incluindo a Suíte Master com closet generoso. As dimensões de 250 x 210 garantem um espaço de descanso amplo e confortável. Os banheiros sociais e de apoio atendem convenientemente todos os setores da residência. A Garagem aproveita o desnível para acesso facilitado, enquanto o Depósito oferece armazenamento prático. A planta organiza os ambientes de serviço de forma eficiente, otimizando a rotina doméstica diária.













Avaliações
Não há avaliações ainda.