Descrição
Explore a concepção de um sobrado contemporâneo que redefine o padrão de morar. Este projeto de 324.07 metros quadrados foi meticulosamente planejado para oferecer uma experiência única, unindo estética moderna e funcionalidade prática em dois pavimentos. A arquitetura valoriza a fluidez entre os ambientes, criando um lar que é ao mesmo tempo acolhedor e impressionante. Cada detalhe foi cuidadosamente considerado para atender às necessidades de uma vida dinâmica e sofisticada.
Concepção Arquitetônica e Integração
A fachada do sobrado já estabelece um diálogo com a modernidade, utilizando linhas clean e volumes bem definidos que se desenvolvem verticalmente. Os materiais foram selecionados para conferir durabilidade e um charme atemporal. A planta promove uma integração inteligente entre os espaços sociais no pavimento térreo, garantindo amplitude visual e uma sensação constante de liberdade. A circulação vertical é estrategicamente posicionada, conectando os ambientes de forma fluida e aconchegante.
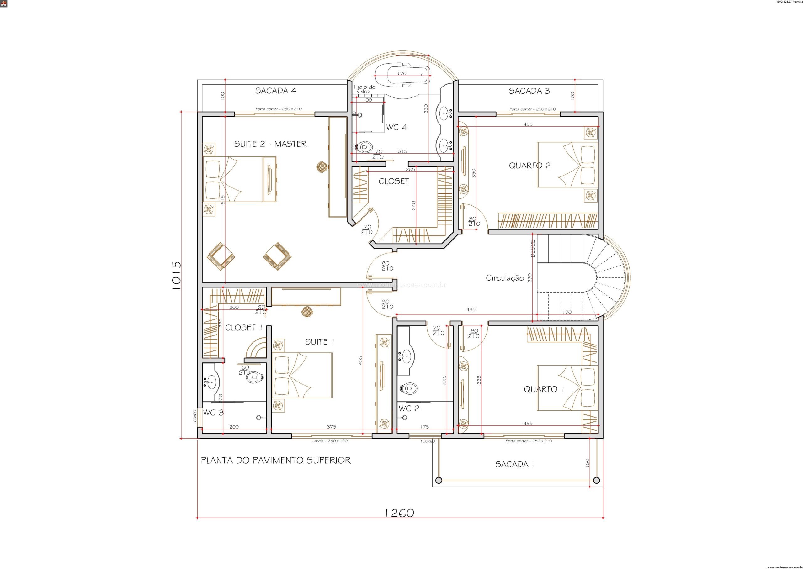
Ambientes Internos e Privacidade
A zona íntima, localizada no pavimento superior, foi estrategicamente planejada para oferecer total privacidade e tranquilidade aos moradores. Ela abriga quatro quartos espaçosos, incluindo uma suíte master que é um verdadeiro refúgio. Este ambiente privativo conta com um closet generoso e um banheiro completo, projetado como um spa pessoal. Os demais quartos, igualmente confortáveis, compartilham banheiros sociais bem distribuídos, atendendo com excelência às necessidades de uma família.
Cozinha e Área de Serviços
A cozinha no térreo foi projetada para ser tanto um espaço funcional quanto um ponto de convívio. Integrada à área gourmet, ela permite uma interação completa durante preparos de refeições e eventos. Seu layout otimizado oferece amplo armazenamento e bancadas de alta performance. A área de serviço, anexa, mantém a organização da casa, com espaço dedicado para lavanderia e armazenamento, garantindo praticidade sem comprometer o estilo.
Áreas Externas e Lazer
O projeto estende seu charme para as áreas externas, que foram pensadas para o lazer e o entretenimento. Um espaço gourmet coberto se conecta perfeitamente ao jardim, ideal para churrascos e reuniões ao ar livre. A presença de uma piscina complementa o ambiente de resort, convidando a momentos de descontração e refresco. O paisagismo harmonioso completa o cenário, criando um oasis privativo para todos os momentos.
Acabamentos e Sustentabilidade
Os acabamentos escolhidos seguem um alto padrão de qualidade, com revestimentos, louças e metais que conferem sofisticação e longevidade. O projeto também incorpora princípios de sustentabilidade, prevendo soluções que promovem a eficiência energética e o uso consciente de recursos. Esta abordagem garante um lar não apenas belo, mas também responsável com o meio ambiente, assegurando conforto térmico e acústico superiores em ambos os pavimentos.
















Avaliações
Não há avaliações ainda.