Descrição
Explore o projeto S4Q-323.13, um sofisticado sobrado contemporâneo que se espalha por 323.13 metros quadrados de área construída. Esta residência foi meticulosamente planejada em quatro níveis, oferecendo uma distribuição funcional e espaçosa para famílias que buscam conforto e praticidade. O projeto integra harmoniosamente ambientes sociais amplos com áreas privativas bem distribuídas, criando um fluxo suave entre os espaços.
Conceito e Distribuição
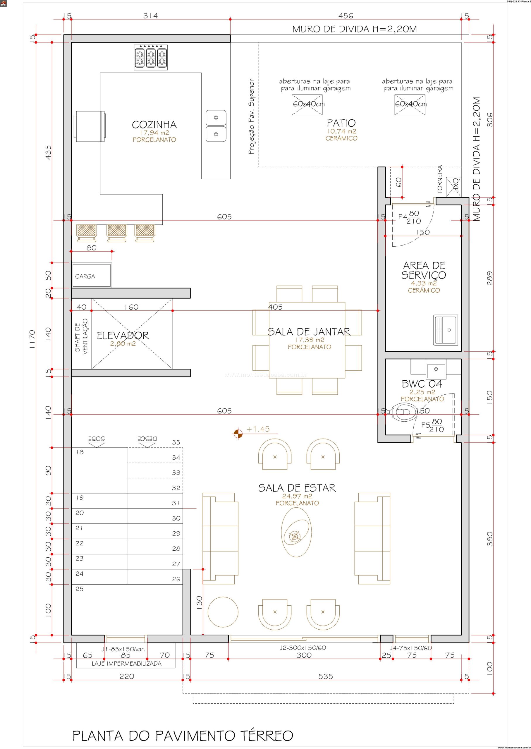
O sobrado apresenta uma planta inteligente que organiza os ambientes ao longo de subsolo, térreo, superior e ático. No pavimento térreo, a sala de estar generosa de 24,97 m² se conecta fluentemente com a cozinha de 17,94 m² e um prático pátio de serviço, promovendo a integração familiar. A área de serviço dedicada e um banheiro social completam este nível, garantindo total funcionalidade para o dia a dia.
Comodidades e Espaços Privativos
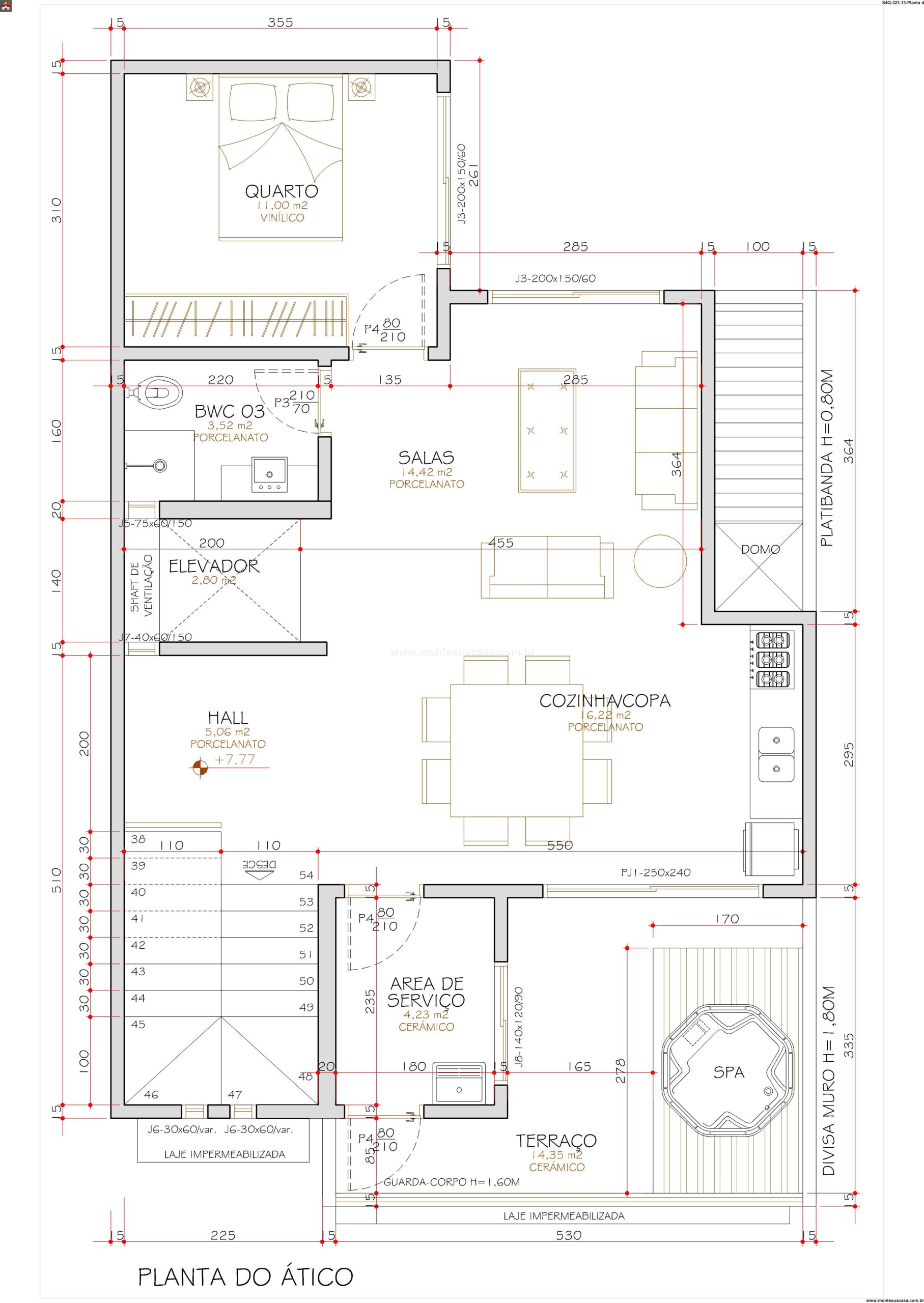
O projeto inclui quatro quartos, atendendo perfeitamente às necessidades de uma família moderna. Os dormitórios se localizam nos pavimentos superiores, assegurando privacidade e tranquilidade. A garagem subterrânea, com impressionantes 74,72 m², oferece amplo espaço para veículos e armazenamento, liberando a área externa para convívio e paisagismo. Aberturas estratégicas na laje permitem a entrada de luz natural na garagem, criando um ambiente mais agradável.
Acabamentos e Iluminação
Os acabamentos foram selecionados para combinar durabilidade e sofisticação. O porcelanato é aplicado na sala, cozinha e banheiros, enquanto áreas como o pátio e a área de serviço recebem revestimento cerâmico. A garagem conta com piso de cimento queimado. A iluminação natural é uma prioridade no projeto, com janelas de diferentes dimensões, incluindo modelos J2 (300x150cm) e J4 (75x150cm), garantindo ambientes claros e arejados durante todo o dia.
















Avaliações
Não há avaliações ainda.