Descrição
Conceito e Integração
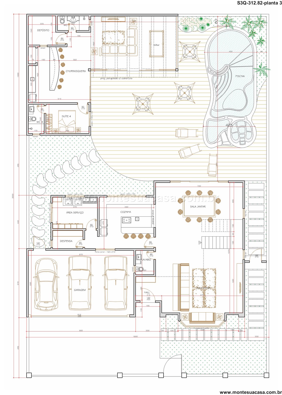
Este imponente sobrado de 312.82m² personifica a arquitetura contemporânea em sua essência. O projeto mescla linhas arrojadas e volumes bem definidos para criar uma identidade visual única. A fachada dialoga perfeitamente com o interior, promovendo uma transição fluida e convidativa. A iluminação natural é um elemento-chave do desenho, garantindo ambientes sempre arejados e aconchegantes. Cada detalhe foi meticulosamente planejado para oferecer uma experiência residencial completa e sofisticada.
Ambientes e Funcionalidade
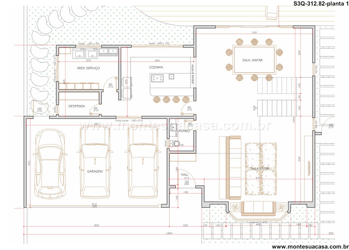
A planta inteligente organiza os espaços de forma extremamente funcional. A área social se integra de maneira harmoniosa, ideal para receber amigos e familiares. A cozinha, estrategicamente posicionada, facilita o fluxo do dia a dia e o entretenimento. O projeto conta com três quartos, oferecendo privacidade e conforto para todos os moradores. A garagem espaçosa é um destaque, atendendo com folga às necessidades modernas. A área de serviço foi planejada para otimizar as tarefas domésticas com máxima eficiência.
Conforto e Sustentabilidade
O sobrado prioriza o bem-estar através de um layout que valoriza a ventilação cruzada. Esse recurso natural reduz o consumo de energia elétrica, tornando a casa mais sustentável. Os materiais escolhidos combinam alta durabilidade e baixa manutenção, assegurando um custo-benefício excepcional ao longo dos anos. Os ambientes são versáteis e podem ser adaptados conforme a evolução das necessidades da família. Este projeto não é apenas uma casa, mas um investimento em qualidade de vida e valorização patrimonial.













Avaliações
Não há avaliações ainda.