Descrição
Desenvolvemos este sobrado contemporâneo de 298.64m² especificamente para um terreno em aclive, demonstrando como a arquitetura pode transformar um desafio topográfico em uma vantagem exclusiva. O projeto aproveita o desnível natural do terreno para criar volumes interessantes e garantir privacidade aos ambientes. A solução arquitetônica integra perfeitamente a construção à paisagem, resultando em uma residência única e funcional para uma família moderna.
Aproveitamento do Terreno em Aclive
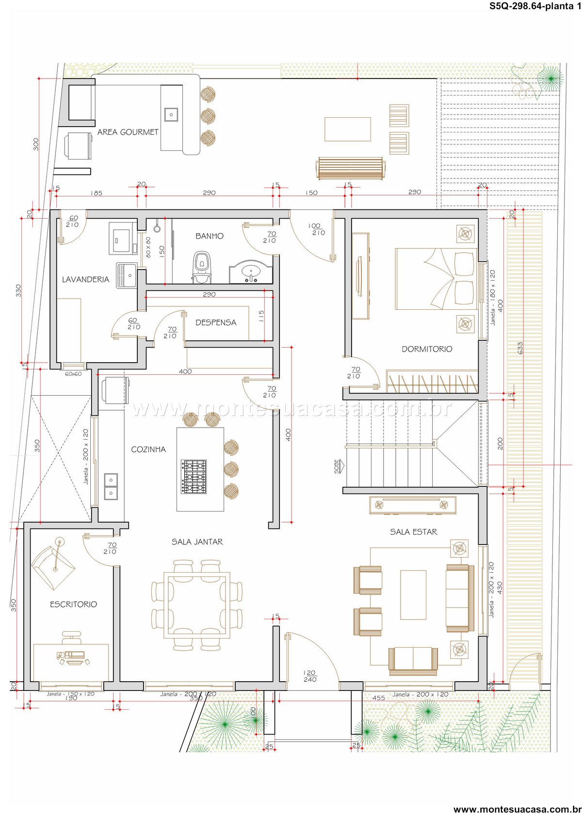
A implantação estratégica no terreno em aclive permitiu a criação de um jardim suspenso e uma garagem semi-enterrada, otimizando o espaço útil. O acesso principal se dá pelo nível superior, onde estão concentradas as áreas sociais. Esse partido arquitetônico garante ventilação e iluminação cruzada em todos os ambientes, reduzindo o consumo de energia. Os diferentes níveis criam vistas dinâmicas e sensação de amplitude, característica marcante deste projeto inteligente.
Integração de Ambientes e Conforto
A área social no pavimento superior integra sala de estar, jantar e cozinha gourmet em um único espaço fluido. As grandes aberturas de vidro conectam visualmente o interior ao exterior, ampliando o ambiente. A varanda gourmet se estende para o jardim, criando um local perfeito para entretenimento. Os materiais de acabamento em tons neutros e texturas naturais complementam a linguagem contemporânea, oferecendo durabilidade e sofisticação ao projeto.
Setor Privativo e Funcionalidade
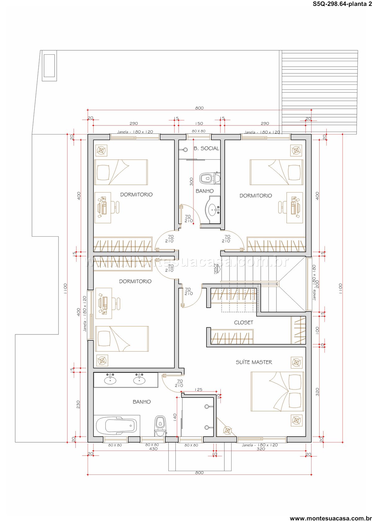
O pavimento intermediário abriga os cinco quartos, incluindo a suíte master com closet integrado e banheiro amplo. As outras suítes também oferecem conforto e privacidade para a família. A disposição dos dormitórios aproveita a topografia do terreno para garantir vistas privilegiadas e insolação controlada. Os banheiros sociais seguem o mesmo padrão de qualidade, com revestimentos especiais que combinam estética e funcionalidade de forma harmoniosa.
Conceito Arquitetônico e Sustentabilidade
Este projeto representa a perfeita união entre arquitetura contemporânea e solução técnica para terrenos irregulares. O uso do desnível natural proporcionou ventilação natural permanente, reduzindo a necessidade de ar condicionado. A implantação preserva a vegetação existente e cria áreas permeáveis, contribuindo para a drenagem sustentável. Cada detalhe foi meticulosamente planejado para oferecer conforto, praticidade e um estilo de vida moderno integrado à natureza.














Avaliações
Não há avaliações ainda.