Descrição
Sobrado moderno com quatro suítes e terraço completo
Este projeto de sobrado com 287,00m² combina sofisticação, funcionalidade e lazer em uma proposta arquitetônica ideal para famílias que valorizam conforto e estilo. Com três pavimentos bem distribuídos, o imóvel oferece ambientes amplos, integração entre áreas sociais e espaços dedicados ao descanso e à convivência.
Pavimento térreo com integração e praticidade
A planta do térreo contempla sala de estar, sala de jantar, cozinha planejada, lavabo e área de serviço. Os ambientes são integrados e favorecem a ventilação cruzada e a iluminação natural, graças às grandes aberturas e ao layout inteligente. A escada central conecta os pavimentos com fluidez, valorizando a circulação interna.
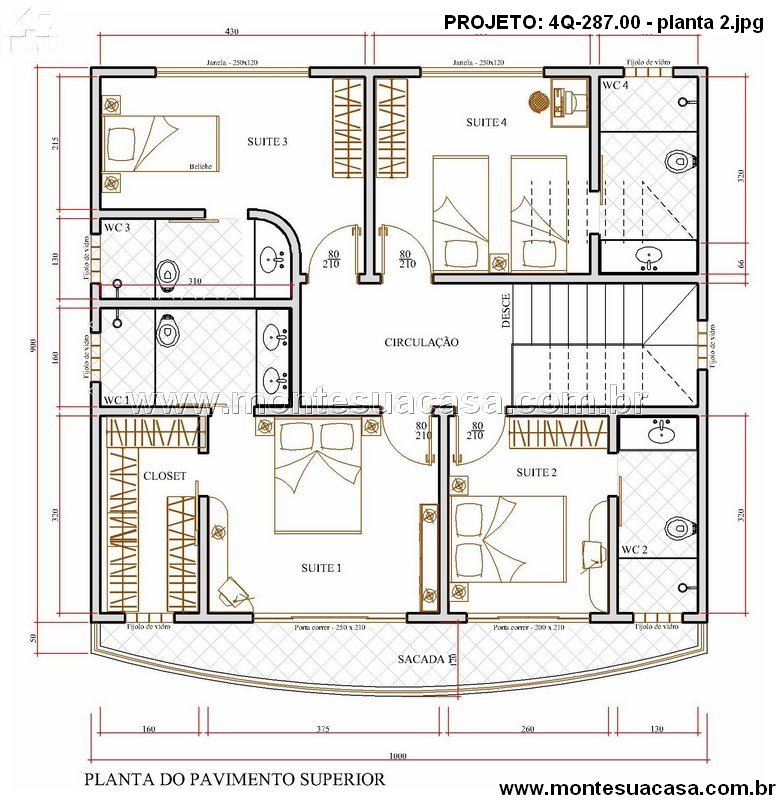
Quatro suítes no pavimento superior
No segundo pavimento, o projeto apresenta quatro suítes completas, cada uma com banheiro privativo. A suíte principal inclui closet e sacada, proporcionando privacidade e conforto. A circulação central distribui os acessos de forma funcional, garantindo comodidade para todos os moradores.
Terraço com piscina e espaço gourmet
O terceiro pavimento é opcional e transforma o sobrado em um verdadeiro refúgio urbano. Com 102,00m², o terraço inclui piscina com deck de madeira, churrasqueira com bancada e banquetas, salão de festas mobiliado, banheiro de apoio e pátio descoberto com espreguiçadeiras. É o espaço ideal para lazer, confraternizações e momentos de relaxamento.
Design contemporâneo e paisagismo tropical
A fachada do sobrado apresenta linhas modernas, varandas com guarda-corpo branco e grandes janelas com vidro verde. O paisagismo com palmeiras e jardins floridos reforça o estilo tropical, ideal para regiões de clima quente. O telhado cerâmico e os detalhes em vidro conferem sofisticação ao conjunto.
Projeto ideal para quem busca conforto e lazer
Este sobrado de quatro quartos é perfeito para quem deseja morar com estilo, receber amigos e aproveitar o melhor da vida em casa. A combinação entre arquitetura contemporânea e áreas de lazer faz deste projeto uma excelente opção para terrenos urbanos ou suburbanos.
















Avaliações
Não há avaliações ainda.