Descrição
Este sobrado moderno e funcional se destaca pela sua distribuição inteligente em 278.51 metros quadrados. A planta foi meticulosamente planejada para oferecer conforto, privacidade e um estilo de vida contemporâneo. Cada ambiente foi cuidadosamente dimensionado para criar uma residência tão acolhedora quanto sofisticada. A fachada provavelmente incorpora linhas limpas e materiais modernos, transmitindo uma impressão de elegância desde a chegada.
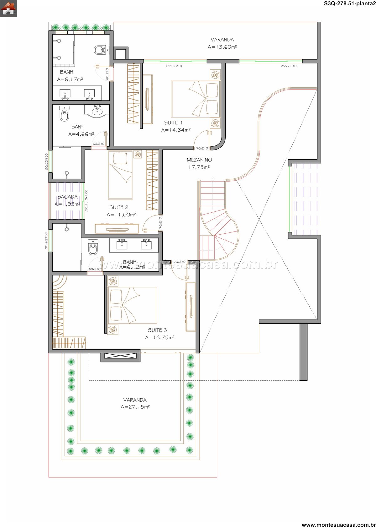
Distribuição Inteligente e Conforto Familiar
A casa oferece três suítes, proporcionando privacidade e comodidade para todos os moradores. A suíte 1, com generosos 14.34m², e a suíte 3, com impressionantes 16.75m², são verdadeiros refúgios. A suíte 2, de 11.00m², complementa o conjunto. Dois banheiros sociais, um de 6.17m² e outro de 4.66m², atendem às áreas sociais. O diferencial fica por conta do mezanino, uma área de 17.75m² que adiciona versatilidade ao projeto, podendo ser um home office, biblioteca ou espaço de descontração.
Integração e Entretenimento
A área social é projetada para o convívio e o entretenimento. A varanda gourmet se integra perfeitamente aos ambientes, tornando-se o coração da casa para receber amigos e familiares. A cozinha, bem distribuída e com laviador, conecta-se de forma fluida à área de serviço, que inclui um depósito, garantindo praticidade no dia a dia. A garagem e a área de serviço completa, com acesso de serviço, organizam a rotina doméstica com eficiência.
Ambientes Externos e Valorização do Espaço
O projeto valoriza os espaços abertos, apresentando uma sacada de 1.95m² e uma espaçosa varanda de 27.15m². Essas áreas ampliam a living area e criam uma transição suave entre o interior e o exterior. A varanda principal, de 13.60m², também contribui para essa sensação de amplitude. Os materiais de acabamento, iluminação e ventilação natural foram pensados para criar uma atmosfera aconchegante e arejada em todos os cômodos. Este sobrado é a definição de um lar moderno, onde cada detalhe arquitetônico converge para o bem-estar de seus residentes.






















Avaliações
Não há avaliações ainda.