Descrição
Este sofisticado sobrado de 270.14m² foi meticulosamente projetado para oferecer o máximo em conforto e funcionalidade para a família moderna. A residência se destaca pela integração perfeita entre os ambientes internos e externos, criando um fluxo contínuo que valoriza cada espaço. Com quatro quartos, sendo um suíte master, o projeto atende perfeitamente às necessidades de uma família que busca qualidade de vida e praticidade no dia a dia.
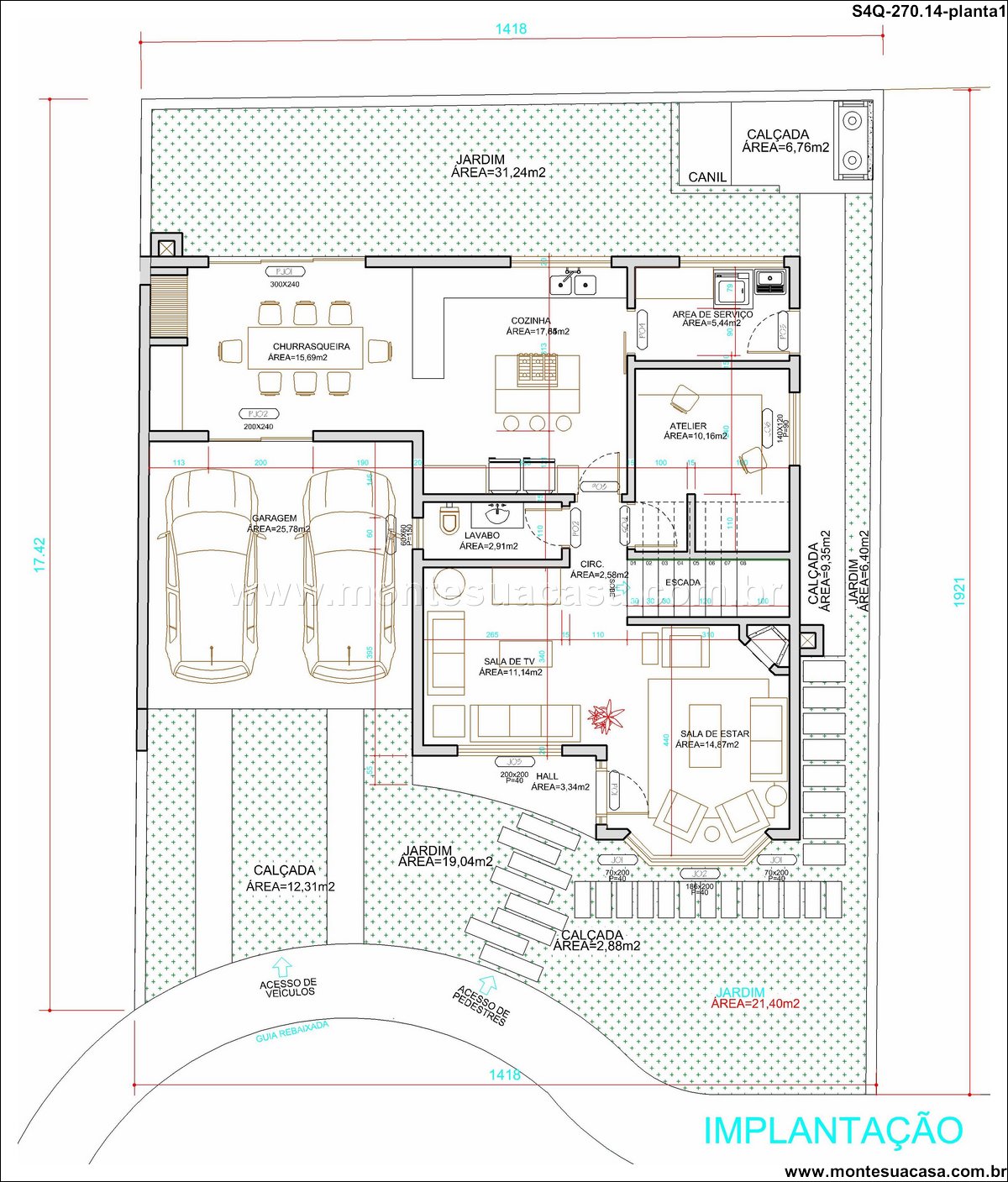
A fachada contemporânea impressiona com linhas clean e elementos que conferem personalidade ao conjunto. A implantação estratégica no terreno garante privacidade aos moradores enquanto mantém uma relação harmoniosa com o entorno. O acesso de veículos é facilitado através da entrada planejada, que direciona para as áreas sociais e de serviço de forma organizada.
Ambientes Socials Integrados
No pavimento térreo, a área social se desenvolve de maneira fluida e aconchegante. A sala de estar de 14.67m² conecta-se diretamente com a sala de TV de 11.14m², criando um amplo espaço para entretenimento e convívio familiar. A cozinha de 17.85m² integra-se à área gourmet de 16.86m², formando o coração da casa perfeito para receber amigos e familiares. O ateliê de 10.16m² oferece um ambiente versátil para trabalho ou hobbies.
Área Externa de Lazer
O projeto valoriza o contato com a natureza através de generosos espaços externos. O jardim de 31.24m² proporciona um refúgio verde, enquanto a churrasqueira coberta de 16.86m² se torna o ponto de encontro ideal para fins de semana e comemorações. O canil dedicado atende aos amantes de animais, completando o conceito de residência familiar.
Comodidades e Praticidade
A área de serviço de 5.44m² oferece praticidade para as tarefas diárias, com excelente localização em relação aos outros ambientes. A circulação inteligente de 2.58m² garante fácil acesso a todos os cômodos, enquanto as calçadas permeáveis somam 6.76m², complementando o paisagismo funcional. Todos os ambientes foram pensados para maximizar o conforto térmico e luminoso.












Avaliações
Não há avaliações ainda.