Descrição
Este imponente sobrado contemporâneo de 268.11 m² redefine o conceito de lar moderno ao harmonizar espaços generosos com um design arrojado. A planta inteligente distribui três quartos em uma configuração que prioriza tanto a privacidade familiar quanto a integração social. A fachada apresenta linhas clean e volumetria marcante, criando uma identidade arquitetônica única desde a primeira impressão.
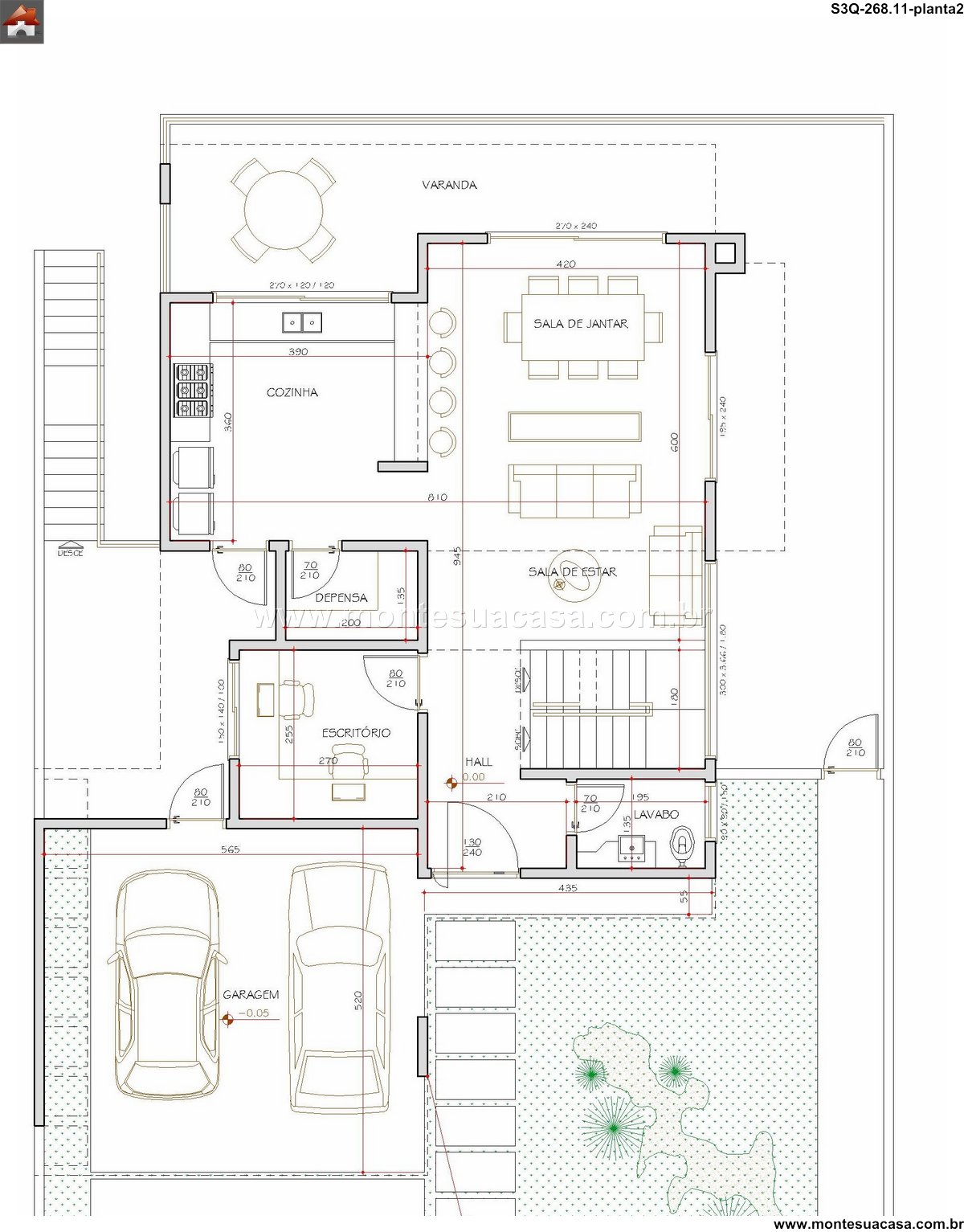
A área social se destaca pela fluidez entre os ambientes. A varanda generosa de 270 x 240 serve como prelúdio para os espaços internos, conectando-se perfeitamente à sala de jantar de 600 e à cozinha de 420. Estes ambientes convergem para uma área gourmet completa com churrasqueira, formando o coração da casa para receber amigos e familiares. Adicionalmente, o projeto inclui um salão de jogos dedicado e um home theater, elevando o entretenimento a outro patamar.
Os três quartos oferecem conforto e praticidade para a família. O projeto otimiza a circulação através de um hall distribuidor bem dimensionado, garantindo privacidade aos dormitórios. A suíte master provavelmente ocupa uma posição privilegiada com ampla metragem. Os ambientes de serviço foram cuidadosamente planeados com lavabo, área de serviço e despensa, assegurando funcionalidade no dia a dia.
A garagem acomoda veículos com comodidade e acessa diretamente o interior da residência. Destaque para os diferentes níveis de piso que criam uma dinâmica espacial interessante, como o desnível de -0.05 na garagem. Os acabamentos propostos seguem uma linguagem contemporânea, com possibilidade de personalização para refletir o estilo dos moradores. Este projeto representa a síntese perfeita entre forma e função em uma residência familiar completa.














Avaliações
Não há avaliações ainda.