Descrição
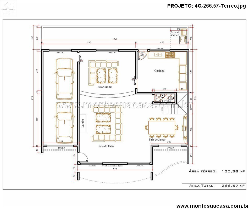
Este projeto de residência sobrado com 266,57m² combina sofisticação, funcionalidade e conforto em cada detalhe. Ideal para famílias que valorizam espaços amplos e bem distribuídos, a casa oferece quatro dormitórios, sendo uma suíte com closet e sacada privativa, além de ambientes integrados e uma área externa perfeita para lazer.
Distribuição inteligente dos ambientes No pavimento térreo, o destaque vai para a ampla sala de estar com lareira, que se conecta harmoniosamente à sala de jantar e à cozinha planejada. O estar íntimo proporciona um espaço acolhedor para momentos em família. A garagem comporta dois veículos com folga, e a área de serviço é funcional e bem posicionada. Há ainda um lavabo discreto e prático para visitas.
Conforto e privacidade no pavimento superior A área íntima no andar superior contempla três quartos adicionais, todos com excelente iluminação natural e espaço para armários. A suíte principal possui banheiro privativo, closet e acesso à sacada, criando um refúgio exclusivo para os moradores. O banheiro social atende aos demais dormitórios com conforto e praticidade.
Área externa com lazer completo O projeto inclui um deck de madeira com piscina e mobiliário externo, ideal para receber amigos ou relaxar ao ar livre. A composição paisagística valoriza o entorno com vegetação ornamental e delimitação por muro branco, garantindo segurança e privacidade.
Design moderno e fachada imponente A fachada apresenta linhas simétricas, grandes panos de vidro e revestimento em pedra natural, conferindo elegância e imponência. O telhado em duas águas com telhas cerâmicas completa o visual contemporâneo e funcional.
Projeto ideal para quem busca qualidade de vida Com ambientes bem planejados, área de lazer integrada e estética refinada, este sobrado é perfeito para quem deseja morar com estilo e conforto.













Avaliações
Não há avaliações ainda.