Descrição
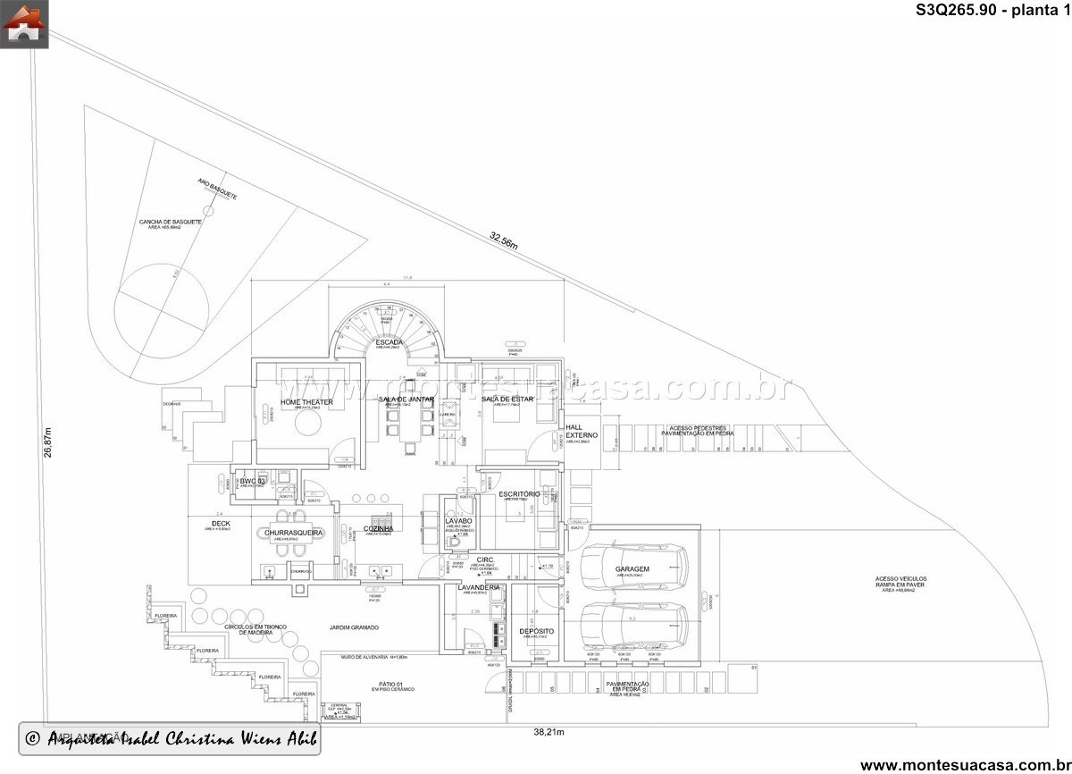
Este projeto de sobrado moderno de 265.90m² foi meticulosamente planejado para oferecer um estilo de vida contemporâneo e integrado em dois pavimentos. A planta baixa do térreo demonstra uma organização inteligente dos ambientes, priorizando a fluidez e o convívio social. A fachada, apresentada nas imagens, sugere uma arquitetura com linhas clean e um apelo visual acolhedor. Cada espaço foi dimensionado para criar uma harmonia perfeita entre a vida cotidiana, o descanso e o entretenimento, atendendo perfeitamente às necessidades de uma família.
Integração e Convívio Social
A área social no pavimento térreo é o coração da residência, promovendo uma integração completa entre a Sala de Estar, a Sala de Jantar e a Cozinha. Este layout aberto é perfeito para receber familiares e amigos, facilitando a interação durante reuniões e celebrações. A Sala de Estar, com seus generosos 7m², conecta-se diretamente à varanda, trazendo luz natural e ampliando a sensação de espaço. A Cozinha, de 8m², é funcional e está estrategicamente posicionada para atender tanto o dia a dia quanto as refeições mais elaboradas.
Lazer e Entretenimento Premium
Dedicado ao lazer de alta qualidade, este projeto inclui um Home Theater privativo no térreo para experiências cinematográficas imersivas. A área externa foi desenvolvida como um verdadeiro prolongamento da casa, contando com uma espaçosa Churrasqueira coberta e um Hall Externo. Este conjunto forma o cenário ideal para encontros descontraídos e churrascos com os convidados. A Garagem proporciona o acesso conveniente à residência, enquanto a Lavanderia e o Depósito garantem a organização e praticidade para a rotina doméstica.
Conforto e Privacidade nos Quartos
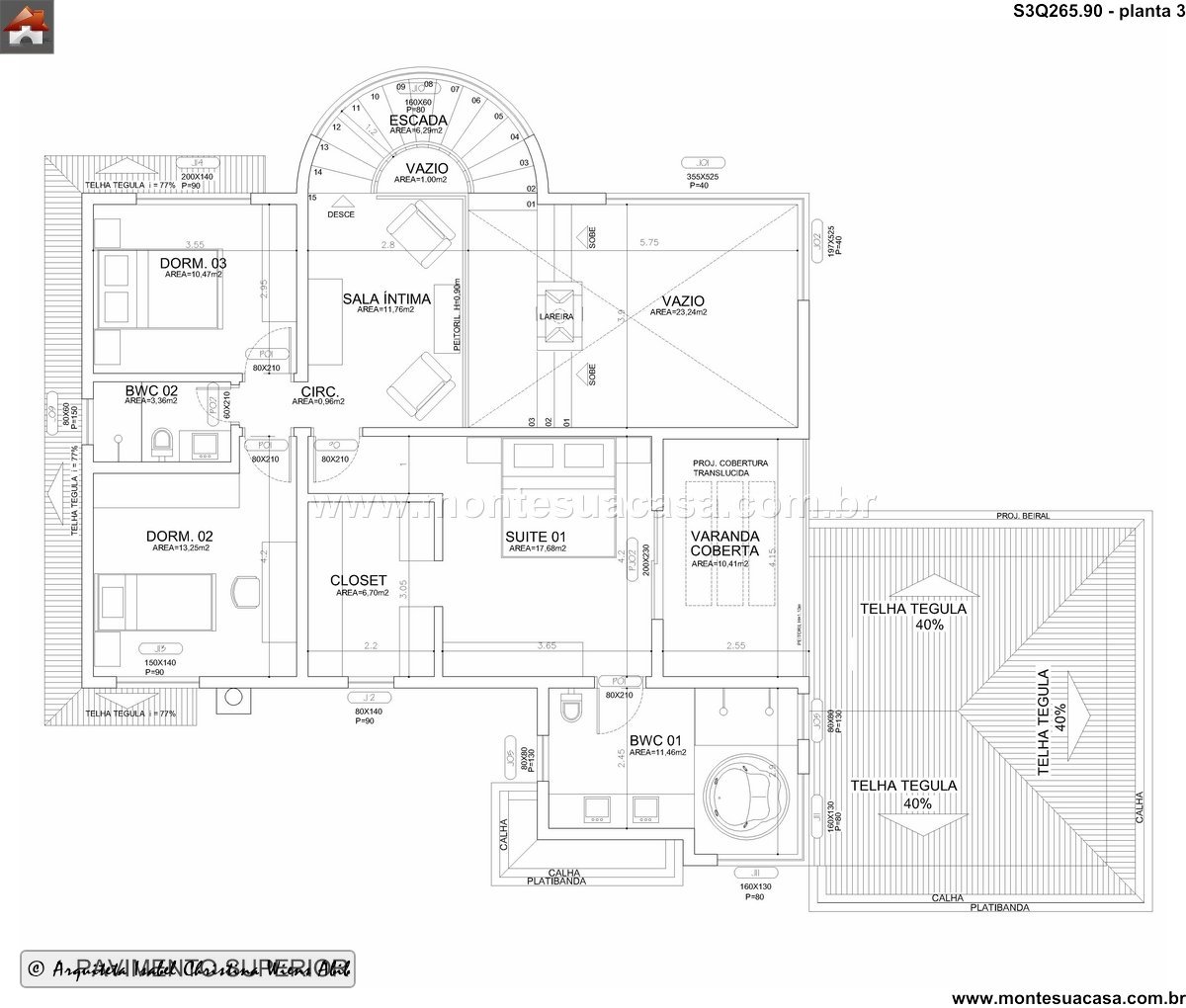
O projeto oferece três quartos, provavelmente localizados no pavimento superior para garantir total privacidade e sossego. Eles são compostos pelo suíte principal, que proporciona um refúgio intimista para os moradores, e mais dois quartos adicionais, ideais para filhos ou hóspedes. Todos os dormitórios são integrados a um banheiro social bem distribuído, assegurando conforto e praticidade para toda a família. A circulação bem resolvida entre os ambientes superiores complementa a funcionalidade deste sobrado.











Avaliações
Não há avaliações ainda.