Descrição
Conceito Arquitetônico e Integração
Este projeto de sobrado contemporâneo, com 251.13m² de área total construída, foi meticulosamente planejado para famílias que buscam conforto, sofisticação e funcionalidade. A arquitetura privilegia a integração entre os ambientes, criando um fluxo natural e aconchegante. Além disso, os espaços foram pensados para aproveitar a luz natural e proporcionar ventilação cruzada. A planta se desenvolve em dois pavimentos, organizando as áreas sociais no térreo e as áreas íntimas no superior de forma harmoniosa.
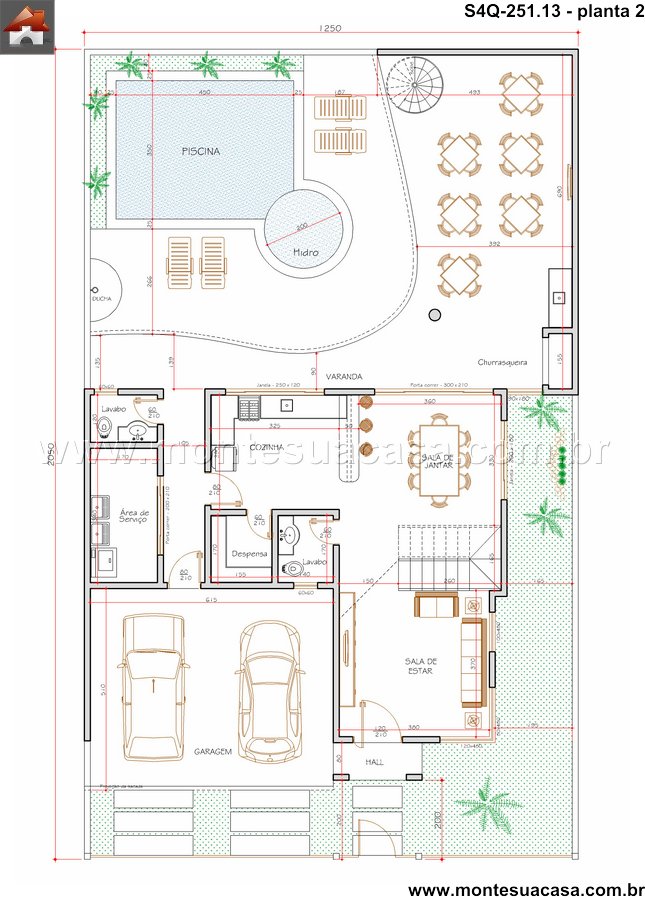
Térreo: Social e Lazer
No pavimento térreo, a área social se destaca pela integração entre a varanda gourmet, a churrasqueira e a piscina. Este conjunto forma o epicentro do entretenimento, perfeito para receber amigos e familiares. A varanda, com seus 48.46m², funciona como uma extensão da sala, oferecindo um ambiente versátil para refeições informais ou momentos de descontração. A ligação direta com a área da piscina amplia visualmente o ambiente e convida à fruição do lazer.
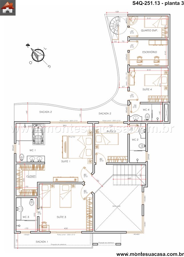
Superior: Intimidade e Produtividade
O pavimento superior abriga a ala íntima da residência, composta por quatro quartos. Destaque para a suíte quádrupla, que oferece amplo espaço e privacidade. As sacadas anexas a outros dormitórios proporcionam áreas de respiro com vista para o exterior. Um escritório isolado garante um ambiente propício para o trabalho home office ou estudos, assegurando a necessária tranquilidade longe dos ambientes de circulação. A planta garante privacidade aos moradores sem abrir mão da integração familiar.
Acabamentos e Personalização
O projeto apresenta um layout completo e pronto para ser personalizado de acordo com o gosto do cliente. A estrutura prevê a instalação de acabamentos de alta qualidade, permitindo que cada detalhe reflita a personalidade dos moradores. A rota central com dimensões de 300/1/30 assegura uma circulação fluida e acessível por toda a residência. Cada metro quadrado foi otimizado para oferecer praticidade e um estilo de vida moderno, transformando esta casa no lar dos seus sonhos.















Avaliações
Não há avaliações ainda.