Descrição
Este projeto arquitetônico de sobrado com 229.34m² personifica o conceito de moradia contemporânea, priorizando a integração entre os ambientes e a funcionalidade em dois pavimentos. A planta inteligente distribui harmonicamente os espaços sociais e privativos entre os andares, criando uma jornada fluida e aconchegante para os residentes. A fachada emprega linhas clean e volumes bem definidos, resultando em uma estética moderna e atemporal. Consequentemente, a residência se adapta perfeitamente a famílias que buscam conforto e sofisticação no seu dia a dia.
Conceito e Integração Vertical
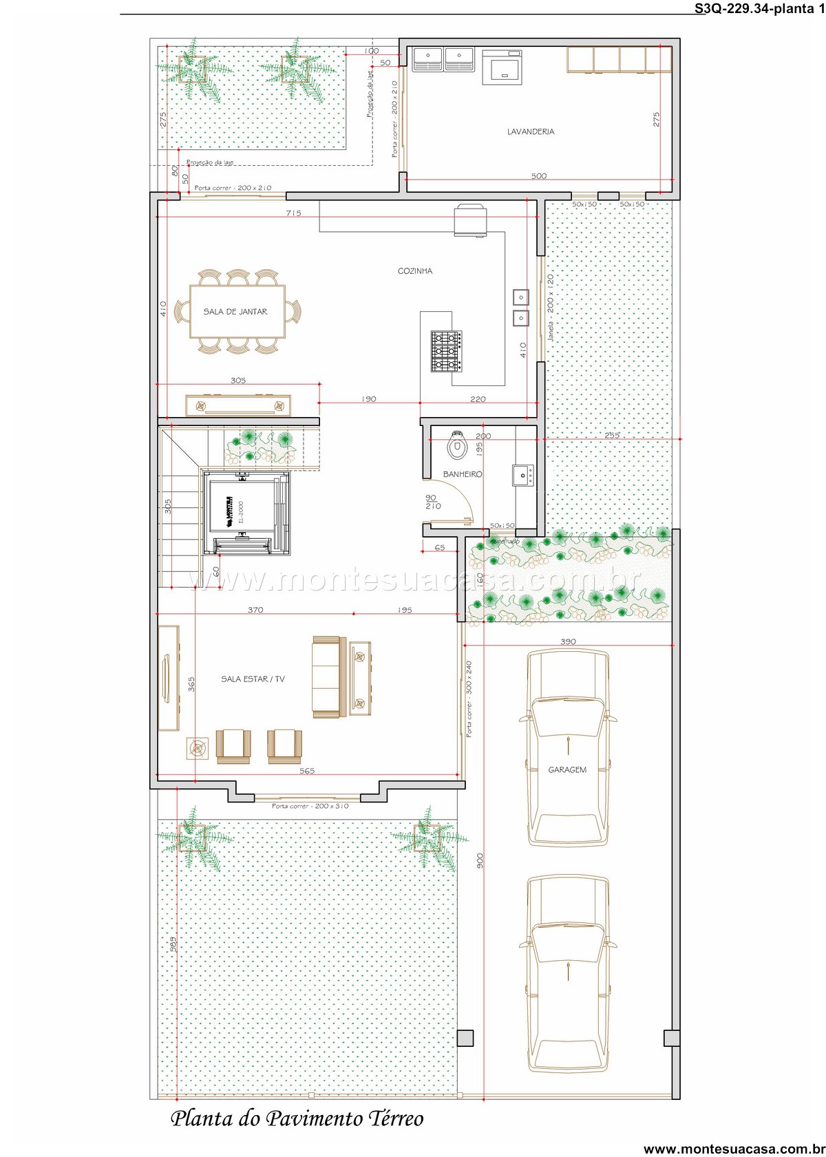
O coração da casa é a área social no pavimento térreo, que une living room, jantar e espaço gourmet em um único ambiente amplo e integrado. Este layout promove a interação entre familiares e amigos durante momentos de descontração. Grandes esquadrias de vidro garantem iluminação natural abundante e ventilação cruzada, reduzindo o consumo de energia. Além disso, a conexão visual entre os pavimentos amplia a percepção de espaço, criando uma atmosfera leve e acolhedora.
Ambientes Privativos e Conforto
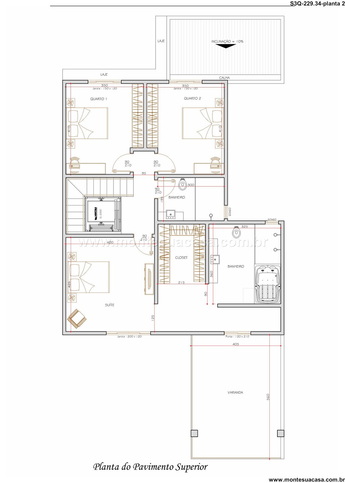
O pavimento superior abriga os três quartos, incluindo uma suíte master com dimensões generosas e sacada privativa. Os ambientes foram projetados para oferecer máximo conforto e privacidade, com armários planejados integrados em todos os dormitórios. Os demais quartos compartilham um banheiro social bem distribuído, atendendo com eficiência às necessidades da família. A circulação entre os cômodos foi cuidadosamente estudada para proporcionar praticidade no cotidiano.
Áreas de Serviço e Lazer
O projeto inclui uma completa área de serviço no térreo com lavanderia e depósito, organizada para otimizar a rotina doméstica. O espaço gourmet, integrado à varanda, é perfeito para receber convidados e refeições informais. A cobertura com inclinação de 10% e sistema de calhas assegura o correto escoamento de águas pluviais. Dessa forma, cada elemento arquitetônico cumpre uma função prática e estética no conjunto do sobrado.
Detalhes Construtivos e Projeto
As plantas técnicas detalham todos os elementos estruturais do sobrado, incluindo a localização de janelas padronizadas (210×210) que garantem uniformidade e ventilação em ambos os pavimentos. O desenho prioriza a orientação solar para melhor aproveitamento térmico, reduzindo custos com climatização. Os renderings 3D realistas permitem visualizar o projeto finalizado, auxiliando no processo de decisão. Portanto, este é um projeto completo de sobrado, unindo beleza, conforto e eficiência construtiva em 229.34m² de pura inovação em arquitetura residencial.














Avaliações
Não há avaliações ainda.