Descrição
Conceito e Integração de Ambientes
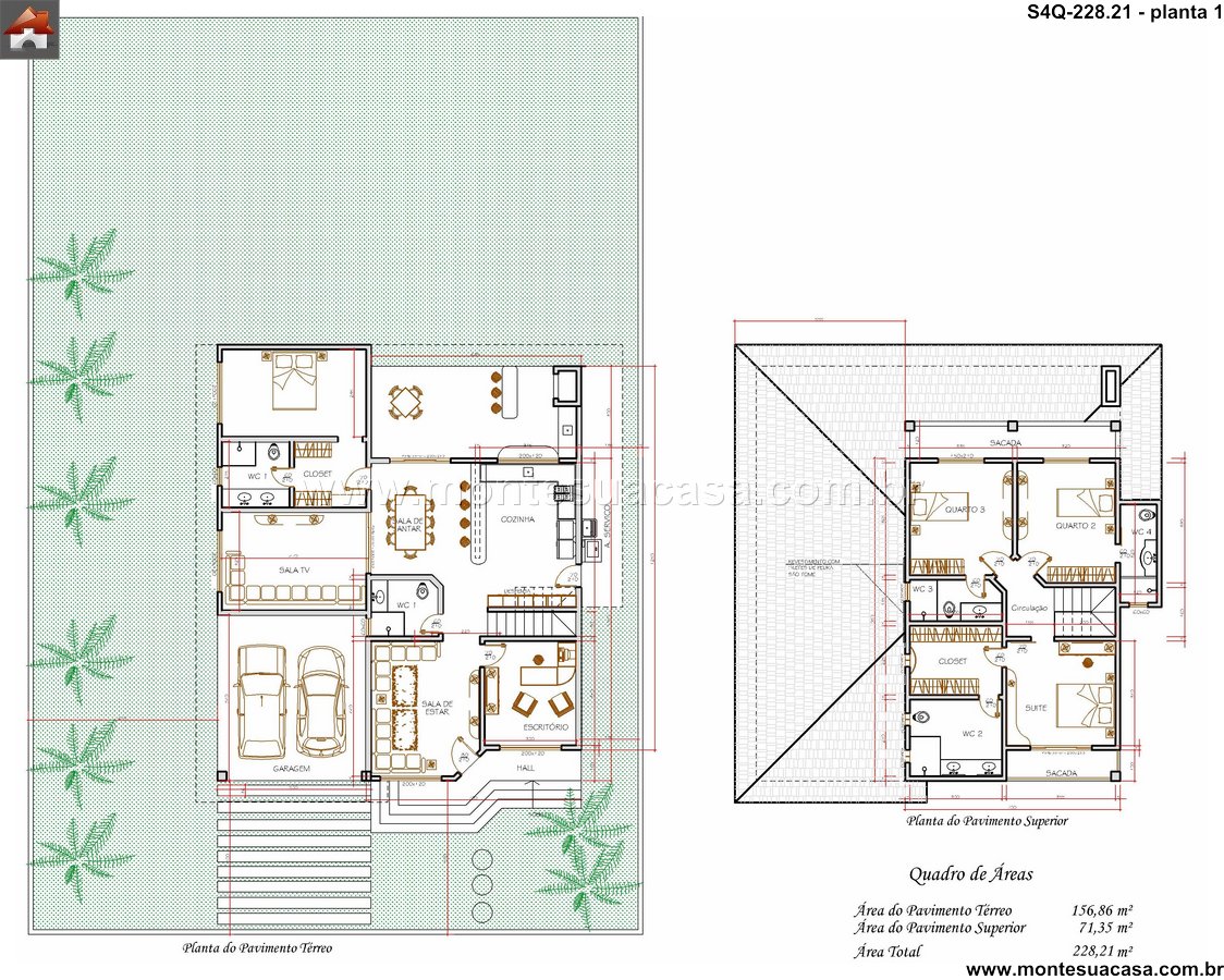
Este sobrado moderno de 228.21m² foi projetado para oferecer o máximo em conforto e funcionalidade para a família. A planta inteligente promove uma integração fluida entre os ambientes sociais, criando um senso de amplitude e conectividade. Os espaços foram meticulosamente organizados para garantir privacidade nas áreas íntimas, ao mesmo tempo que mantêm uma sensação acolhedora e integrada em toda a residência. A circulação foi pensada para proporcionar praticidade no dia a dia.
Distribuição dos Ambientes
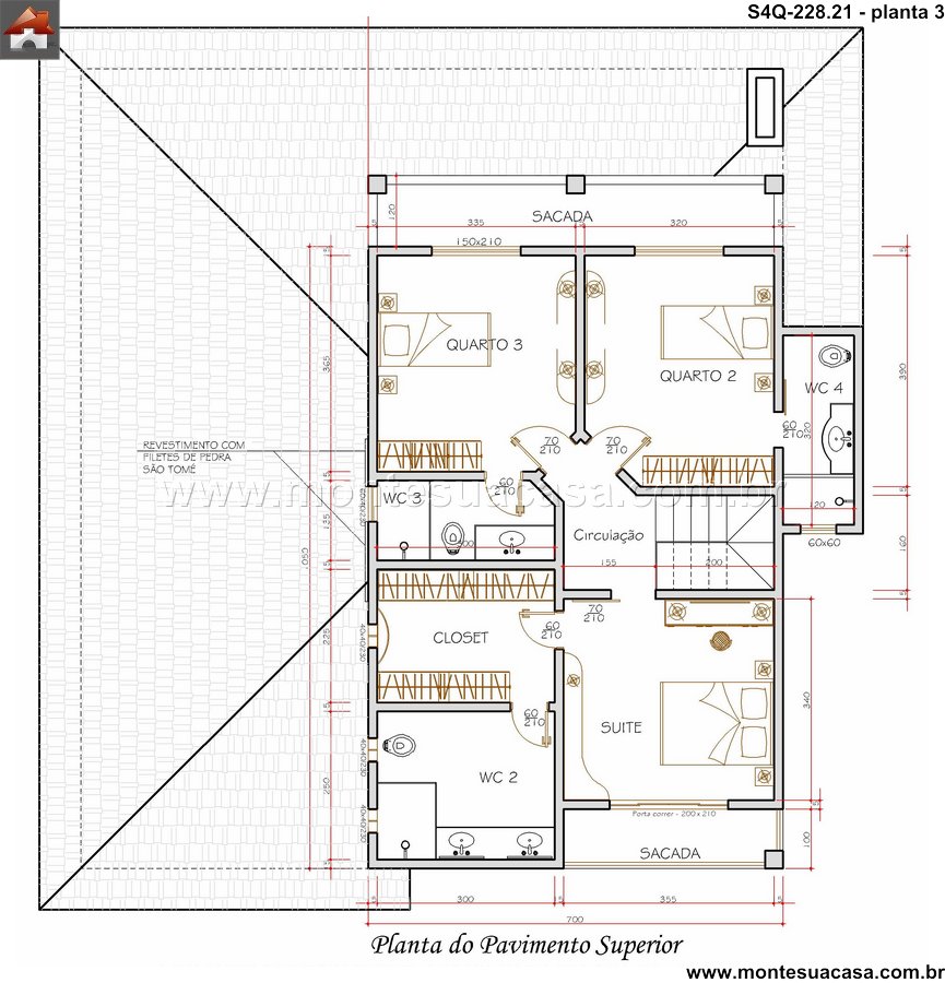
O projeto distribui generosamente seus 4 quartos, sendo um suíte master com closet. A área social integra sala de estar, sala de TV e uma cozinha americana de 470cm, formando um grande ambiente de convivência. A garagem oferece praticidade para o dia a dia. O layout também inclui um escritório dedicado, um hall de entrada e dois banheiros sociais, atendendo a todas as necessidades da família moderna. Os ambientes são iluminados e ventilados naturalmente.
Praticidade e Conforto no Dia a Dia
Cada detalhe deste projeto foi desenvolvido para elevar a qualidade de vida dos moradores. A cozinha americana integrada à sala de TV e à sala de estar facilita o entretenimento e a interação familiar. O closet na suíte master adiciona um toque de sofisticação e organização. A garagem garante segurança para o veículo. O escritório proporciona um ambiente silencioso para o trabalho ou estudos. A casa oferece um equilíbrio perfeito entre espaços coletivos e áreas privativas, assegurando conforto para todos.















Avaliações
Não há avaliações ainda.