Descrição
O projeto 3Q-215.29 é uma residência de dois pavimentos com 215,29m² de área construída, ideal para famílias que valorizam sofisticação, funcionalidade e lazer. A fachada moderna combina revestimentos em pedra natural, pintura branca e grandes aberturas em vidro, criando um visual elegante e acolhedor.
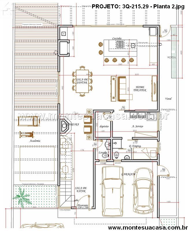
No pavimento térreo, o destaque é a integração dos ambientes sociais. A sala de estar e jantar se conectam à cozinha com ilha central, formando um espaço fluido e convidativo. A área gourmet com churrasqueira se abre para o deck em madeira, que envolve a piscina e o SPA, criando um ambiente perfeito para momentos de lazer e convivência. A garagem coberta comporta dois veículos, com vagas adicionais no jardim frontal.
A planta também inclui home theater, academia, lavanderia, depósito e suíte de apoio, garantindo versatilidade e praticidade no dia a dia.
Conforto e privacidade no pavimento superior
O andar superior abriga três suítes amplas e bem distribuídas. A suíte master oferece closet, escritório privativo, sacada e banheiro com banheira e duas cubas. As outras duas suítes também contam com sacadas e banheiros privativos. O vazio central sobre a escada proporciona pé-direito duplo, favorecendo a ventilação cruzada e a iluminação natural.
Estilo de vida elevado com paisagismo e espaços externos
O projeto valoriza o contato com a natureza por meio de paisagismo planejado, varandas com floreiras e amplas áreas externas. A combinação entre estética refinada e aproveitamento inteligente dos espaços torna esta casa uma escolha perfeita para quem busca morar com estilo, conforto e funcionalidade.
























Avaliações
Não há avaliações ainda.