Descrição
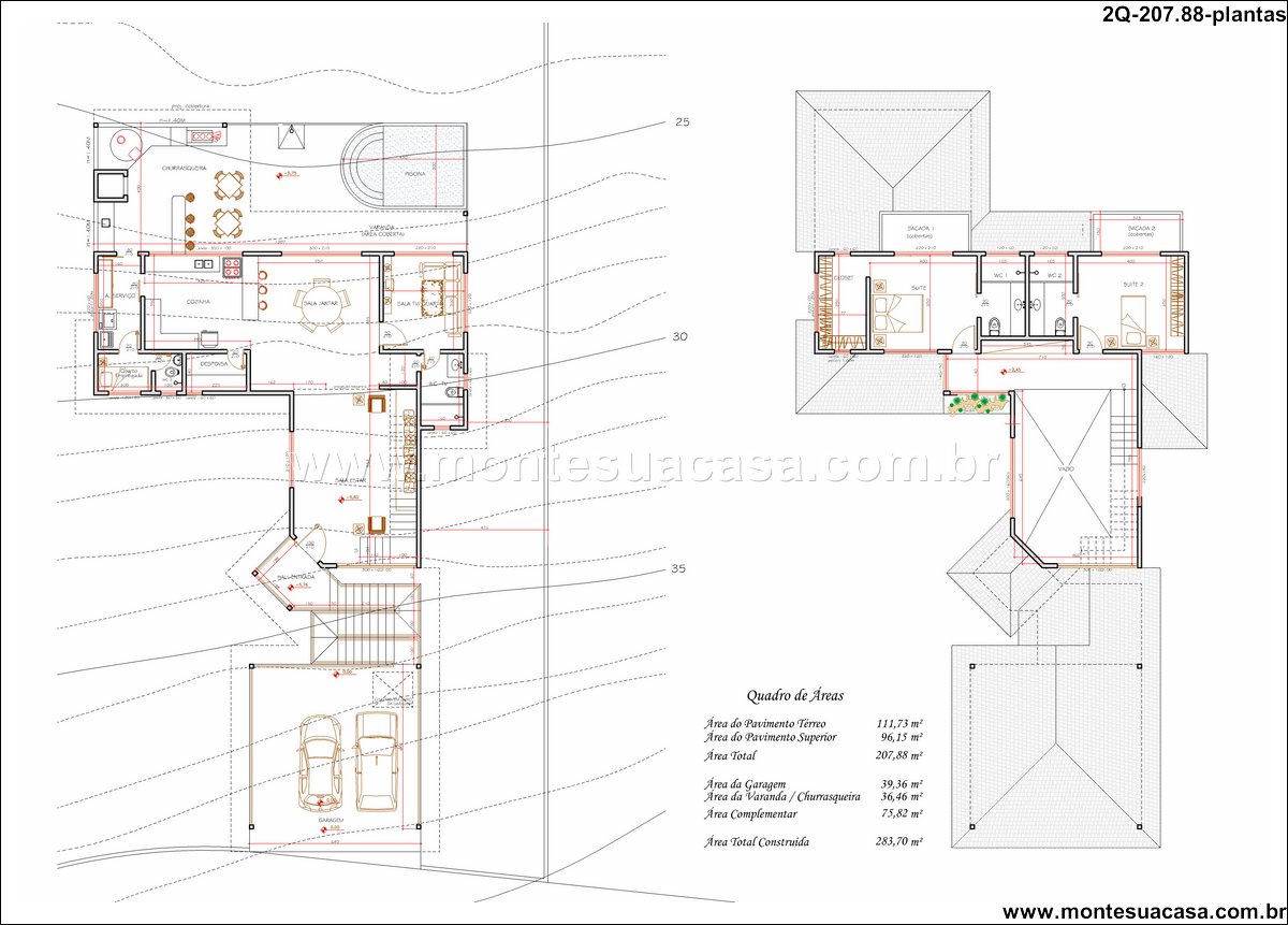
Projeto ideal para terrenos em declive acentuado Este projeto foi desenvolvido especialmente para terrenos em declive, aproveitando a inclinação natural para criar uma residência moderna, funcional e visualmente impactante. A entrada principal se dá pelo nível superior, onde está localizado o carport coberto para dois veículos. Essa solução facilita o acesso e valoriza a fachada com elementos contemporâneos como telhado branco, grandes aberturas e revestimento em tijolos claros.
Ambientes sociais integrados ao lazer e à paisagem No pavimento inferior, os ambientes sociais se conectam de forma fluida e estratégica. A sala de estar, a cozinha e a área de jantar se abrem para uma ampla varanda com churrasqueira, criando um espaço ideal para convivência. A piscina circular, posicionada na área externa, complementa o lazer e proporciona uma vista panorâmica do entorno. Grandes janelas e portas de vidro garantem iluminação natural abundante e ventilação cruzada.
Distribuição funcional dos espaços privados A casa conta com dois quartos bem distribuídos no pavimento superior, sendo uma suíte com closet e varanda privativa. Ambos os dormitórios têm acesso a varandas que exploram a paisagem. A escada interna conecta os dois níveis com elegância, e o uso de pilares e vigas metálicas permite a sustentação segura da estrutura sobre o terreno em declive, sem comprometer a estética.
Soluções técnicas para terrenos desafiadores A implantação sobre pilotis e muros de contenção garante estabilidade e aproveitamento do terreno. O projeto valoriza a arquitetura contemporânea com soluções técnicas eficientes, tornando-se ideal para quem busca construir em áreas com declive acentuado sem abrir mão do conforto, da funcionalidade e da beleza.












Avaliações
Não há avaliações ainda.