Descrição
Características do Projeto Arquitetônico
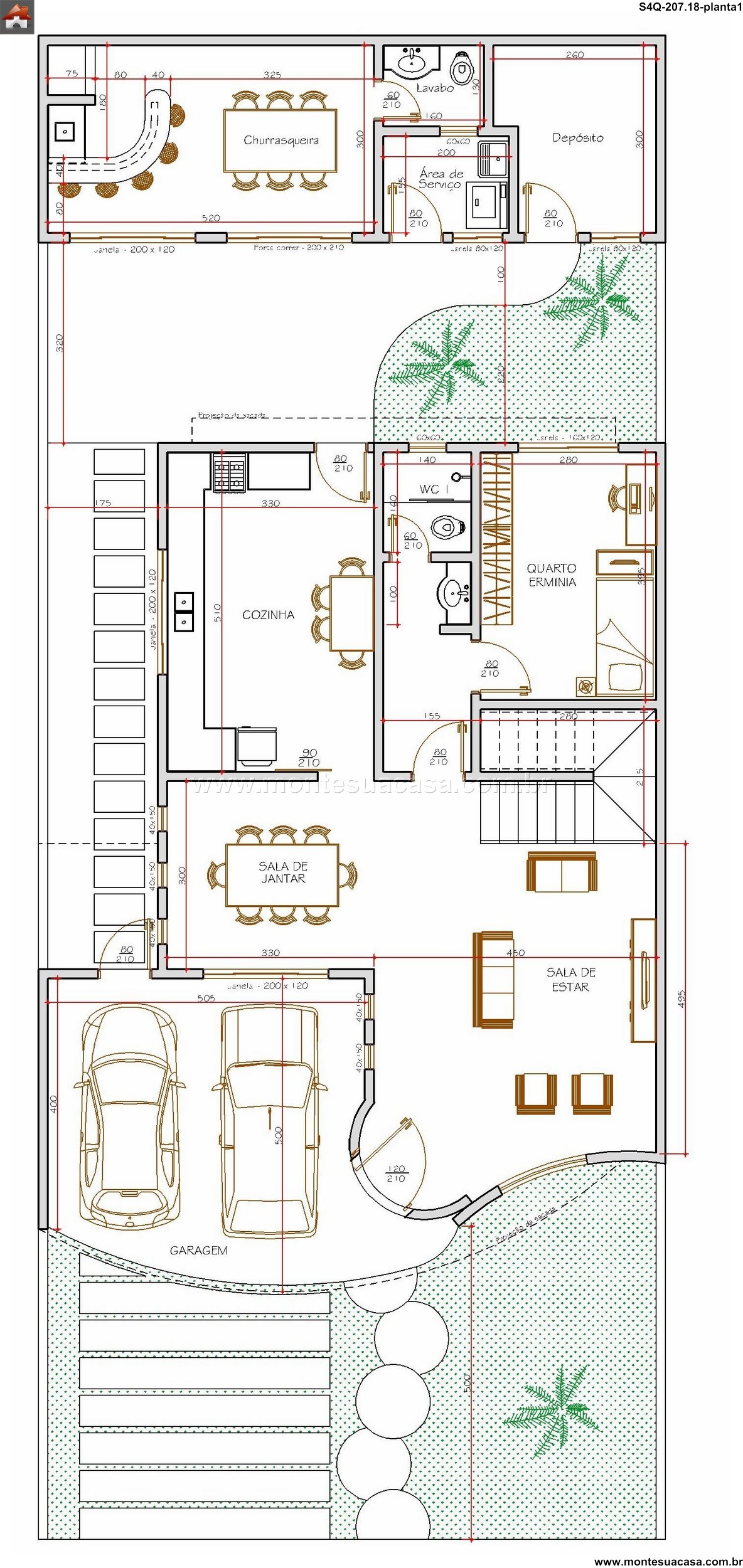
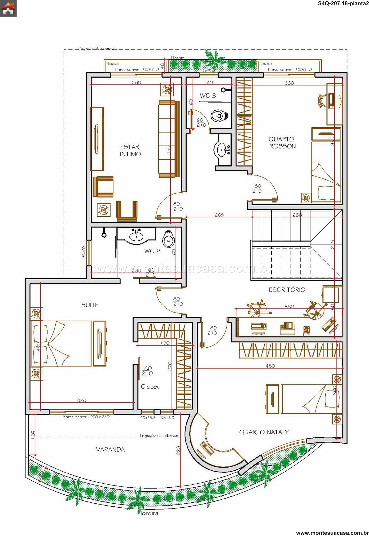
Este projeto de sobrado contemporâneo, com 207.18m² de área construída, foi meticulosamente planejado para oferecer conforto, funcionalidade e uma estética moderna atemporal. A residência se destaca imediatamente por sua fachada limpa e composta por elementos que brincam com texturas e volumes. A integração visual com o paisagismo é um dos pontos fortes, criando uma transição suave e convidativa entre a rua e o interior do lar. Cada detalhe foi pensado para garantir uma experiência de moradia única e acolhedora para toda a família.
Distribuição Interna e Conforto Familiar
A distribuição interna prioriza a privacidade dos moradores sem abrir mão da integração entre os espaços. O projeto abriga 5 quartos, sendo um suíte master espaçosa, garantindo um refúgio de descanso para os pais. Os demais quartos, igualmente confortáveis, são perfeitos para filhos ou visitas. A circulação fluida entre os cômodos promove uma sensação de amplitude e conectividade. A sala de estar e jantar integradas formam um amplo ambiente de convívio, perfeito para receber amigos e desfrutar de momentos em família. A luz natural é uma presença constante, inundando os ambientes através de aberturas estrategicamente posicionadas.
Conexão com a Área Externa
A arquitetura valoriza a conexão com o exterior, promovendo uma relação harmoniosa entre o interior e a natureza. A área gourmet, um espaço moderno para refeições informais e entretenimento, se abre para o jardim, ampliando visualmente o ambiente e criando um local perfeito para reuniões. Esse espaço é ideal para churrascos e celebrações, funcionando como uma extensão da sala. Grandes esquadrias garantem ventilação cruzada eficiente, reduzindo a necessidade de climatização artificial e proporcionando um ambiente sempre fresco e agradável. O projeto demonstra como o paisagismo pode ser parte integral da composição arquitetônica.
Materialidade e Sustentabilidade
A escolha dos materiais reflete um compromisso com a durabilidade e a estética contemporânea. A fachada emprega uma paleta de cores neutras combinada com texturas que adicionam profundidade e personalidade. O projeto incorpora princípios de sustentabilidade, priorizando o conforto térmico passivo através de seu projeto de fachada inteligente. O resultado é uma residência que não apenas atende a todas as necessidades funcionais de uma família moderna, mas que também se apresenta como uma obra de arte habitável, com espaços que fluem naturalmente uns para os outros, criando um lar verdadeiramente especial e personalizado.












Avaliações
Não há avaliações ainda.