Descrição
Explore a concepção de um sobrado contemporâneo que harmoniza estética e funcionalidade em 204.93 metros quadrados. Com três quartos, este projeto arquitetônico demonstra um compromisso com espaços fluidos e luminosos, criando uma atmosfera acolhedora e sofisticada para a vida moderna. A integração entre os ambientes promove uma sensação de amplitude e continuidade, perfeita para o convívio familiar e o entretenimento. Cada detalhe foi meticulosamente planejado para refinar a experiência do morador, desde a seleção de materiais até a orientação solar.
Integração e Convivência
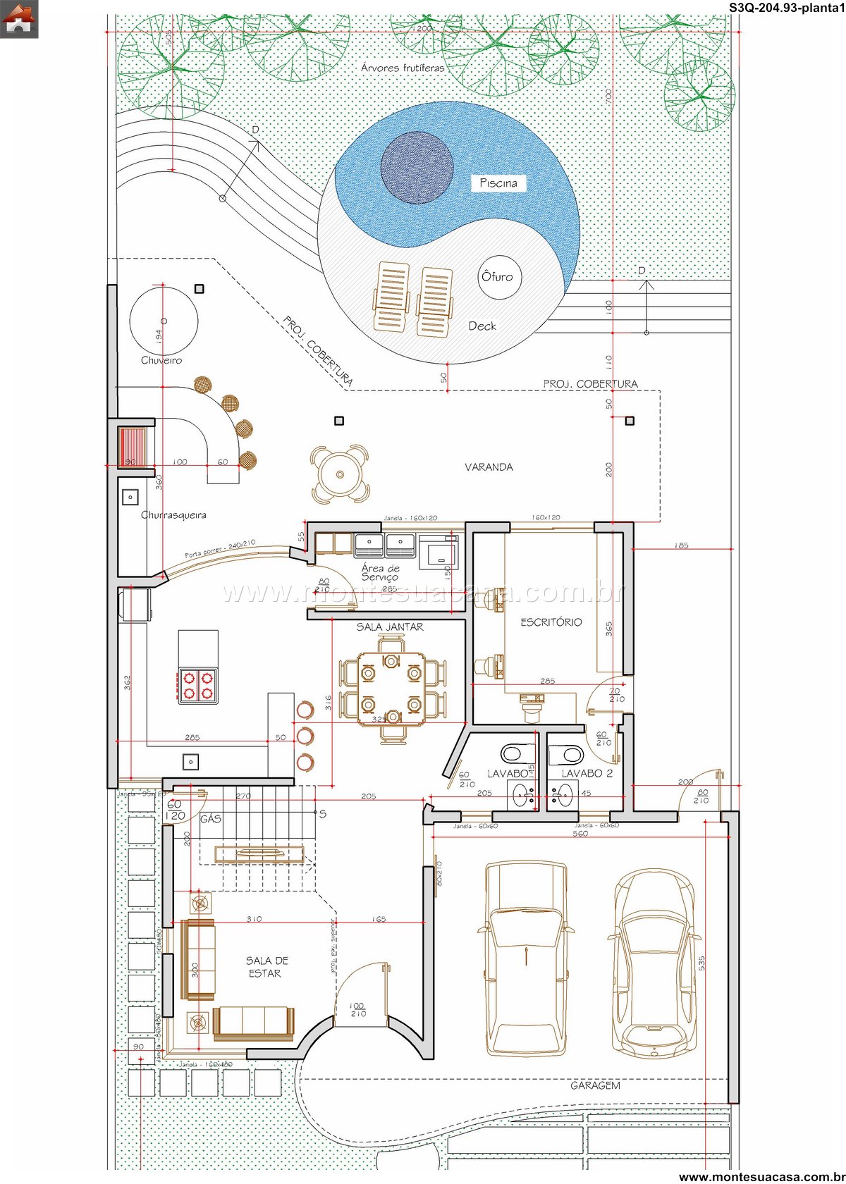
A área social constitui o coração da residência, unindo sala de estar, jantar e espaço gourmet em um único ambiente amplo e conectado. Esse layout favorece a interação entre os residentes e seus convidados, tornando cada reunião especial. A cozinha gourmet, integrada e totalmente equipada, permite que o anfitrião participe das conversas enquanto prepara refeições. Grandes esquadrias de vidro garantem uma iluminação natural abundante, além de efetuar uma transição suave entre os ambientes internos e a área externa.
Conforto e Privacidade nos Quartos
A zona íntima, abrigando os três quartos, foi estrategicamente posicionada para oferecer total privacidade e sossego. A suíte master se apresenta como um verdadeiro refúgio, incluindo um closet organizado e um banheiro com acabamentos de primeira linha. Os outros dois dormitórios também são generosos e compartilham um banheiro bem distribuído. Dessa forma, o projeto assegura conforto diário para todos os moradores, combinando praticidade com um design atemporal em cada quarto.
Conexão com a Natureza
A área externa foi desenvolvida como uma extensão natural da vida interna, proporcionando um local ideal para o lazer. O projeto de paisagismo integra a vegetação à arquitetura, criando um ambiente sereno e convidativo. Esse espaço é perfeito para momentos de descontração ao ar livre, valorizando o contato com a natureza. A permeabilidade visual mantém a conexão com os jardins, reforçando a proposta de uma moradia que celebra a luz e a liberdade.
Acabamentos e Sustentabilidade
Materiais de alta qualidade, como porcelanatos de grande formato e revestimentos nobres, foram selecionados para conferir durabilidade e elegância. O projeto incorpora ainda soluções sustentáveis, promovendo a eficiência energética e o uso racional dos recursos naturais. Consequentemente, a residência não apenas impressiona visualmente, mas também se responsabiliza com o meio ambiente, assegurando um legado de valor e consciência para seus ocupantes.






















Avaliações
Não há avaliações ainda.