Descrição
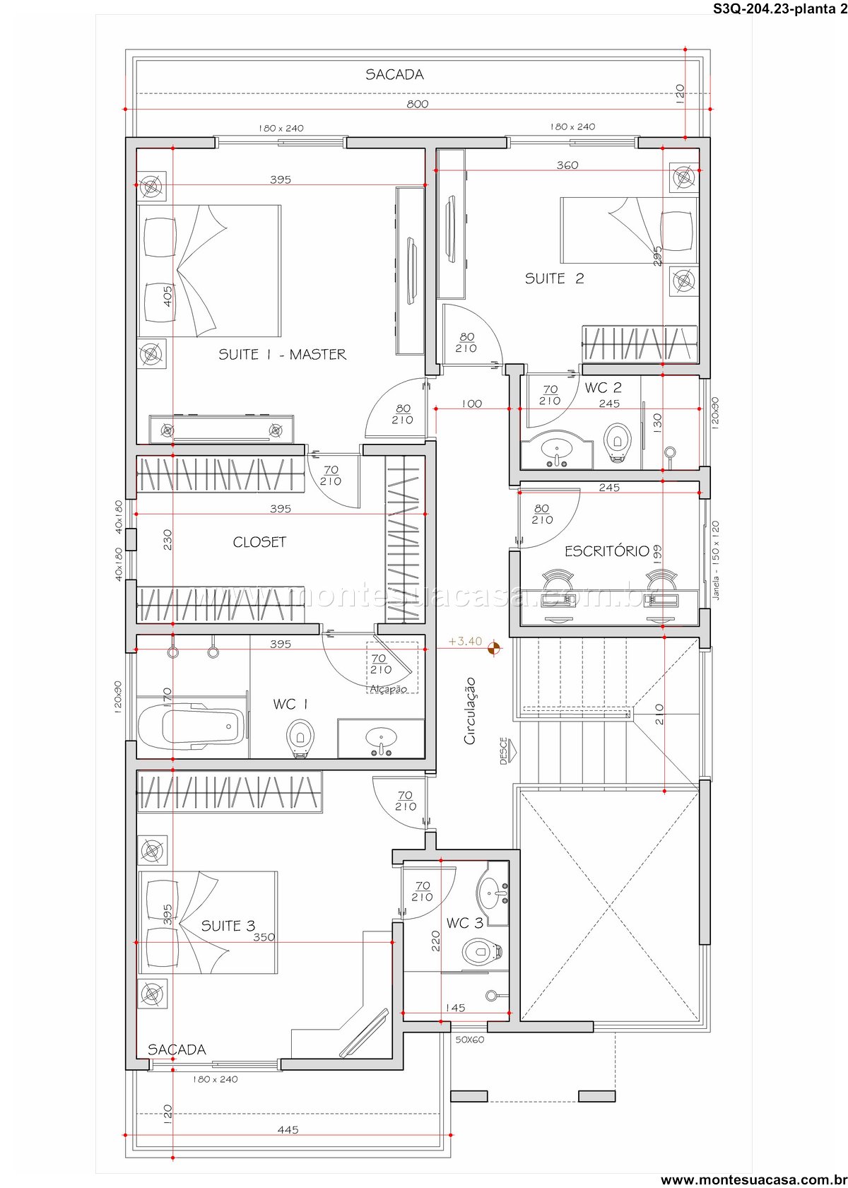
Este sobrado contemporâneo de 204.23 metros quadrados e 3 quartos é um exemplo magistral de como a arquitetura pode criar uma sinergia perfeita entre o interior sofisticado e a natureza exterior. O projeto prioriza a fluidez dos ambientes e a abundância de luz natural, criando uma atmosfera ao mesmo tempo acolhedora e impressionante. Cada espaço foi meticulosamente planejado para oferecer conforto, funcionalidade e uma estética clean e atemporal, distribuída em dois pavimentos que otimizam o convívio e a privacidade.
Integração e Conforto
A planta inteligente promove uma integração total entre os ambientes sociais, garantindo um fluxo contínuo e convidativo. A área gourmet, perfeitamente integrada à varanda e ao deck, se torna o coração da casa, ideal para receber amigos e desfrutar de momentos em família. Esses espaços externos ampliam visualmente a área interna e proporcionam uma experiência de vida indoor-outdoor, onde os limites entre dentro e fora se dissipam de maneira elegante. Grandes esquadrias e aberturas estratégicas potencializam essa conexão, inundando os ambientes com luz e ventilação natural.
Conexão com a Natureza
O projeto arquitetônico valoriza profundamente o contato com o verde. O deck de madeira e a varanda criam áreas de permanência privilegiadas, perfeitas para o lazer e o relaxamento diário. A escolha de materiais, como o pergolado que filtra a luz solar, adiciona textura e conforto térmico, reforçando a sensação de bem-estar. Este é um lar que convida você a desacelerar, apreciando o ar livre com privacidade e estilo. A paisagem é incorporada como um elemento decorativo fundamental, trazendo serenidade para o dia a dia.
Design e Funcionalidade
A linguagem arquitetônica contemporânea se expressa através de linhas retas, volumes bem definidos e um acabamento impecável. Os materiais foram selecionados não apenas pela sua durabilidade, mas também pela sua capacidade de envelhecer com graça, conferindo personalidade ao imóvel. A distribuição dos três quartos assegura privacidade para a área íntima, enquanto mantém a integração desejada nos espaços de convívio. Este projeto é a materialização de um estilo de vida moderno, onde cada detalhe contribui para uma experiência de morar completa e refinada, unindo beleza e praticidade de forma inseparável.





















Avaliações
Não há avaliações ainda.