Descrição
Este projeto de sobrado contemporâneo, com 202.86 metros quadrados de área construída, foi desenvolvido para famílias que buscam conforto, privacidade e espaços bem distribuídos. Com três quartos distribuídos entre os pavimentos, a residência oferece uma solução arquitetônica que harmoniza a funcionalidade do dia a dia com momentos de lazer e convívio. A fachada emprega linhas modernas e elementos que criam um diálogo visual dinâmico, enquanto o interior surpreende pela fluidez entre os ambientes.
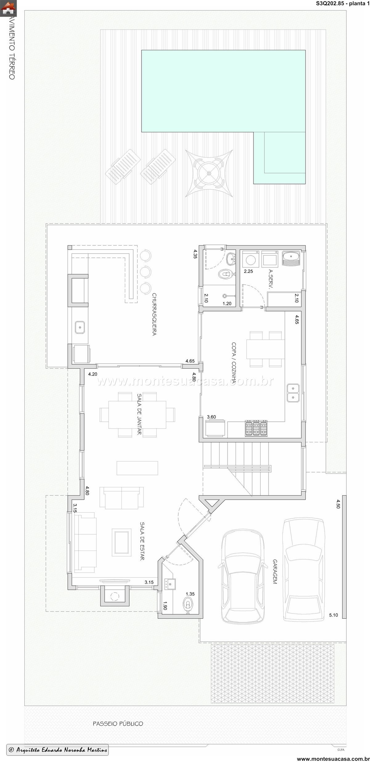
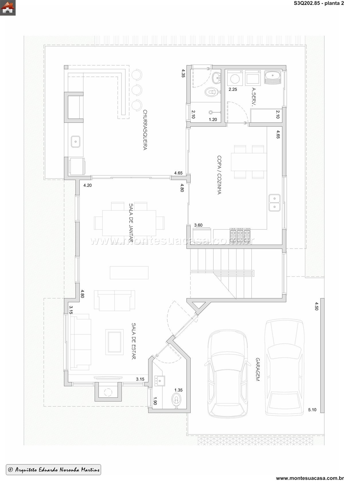
Distribuição Inteligente dos Ambientes
No pavimento térreo, a garagem proporciona acesso direto e organizado à residência. A área social se desenvolve de maneira integrada, com a copa e cozinha formando um núcleo prático para as refeições diárias. A sala de jantar, com dimensões generosas, conecta-se perfeitamente ao ambiente de churrasqueira, criando um espaço gourmet completo para receber visitas. A circulação entre estes ambientes foi cuidadosamente planejada para garantir praticidade e conforto.
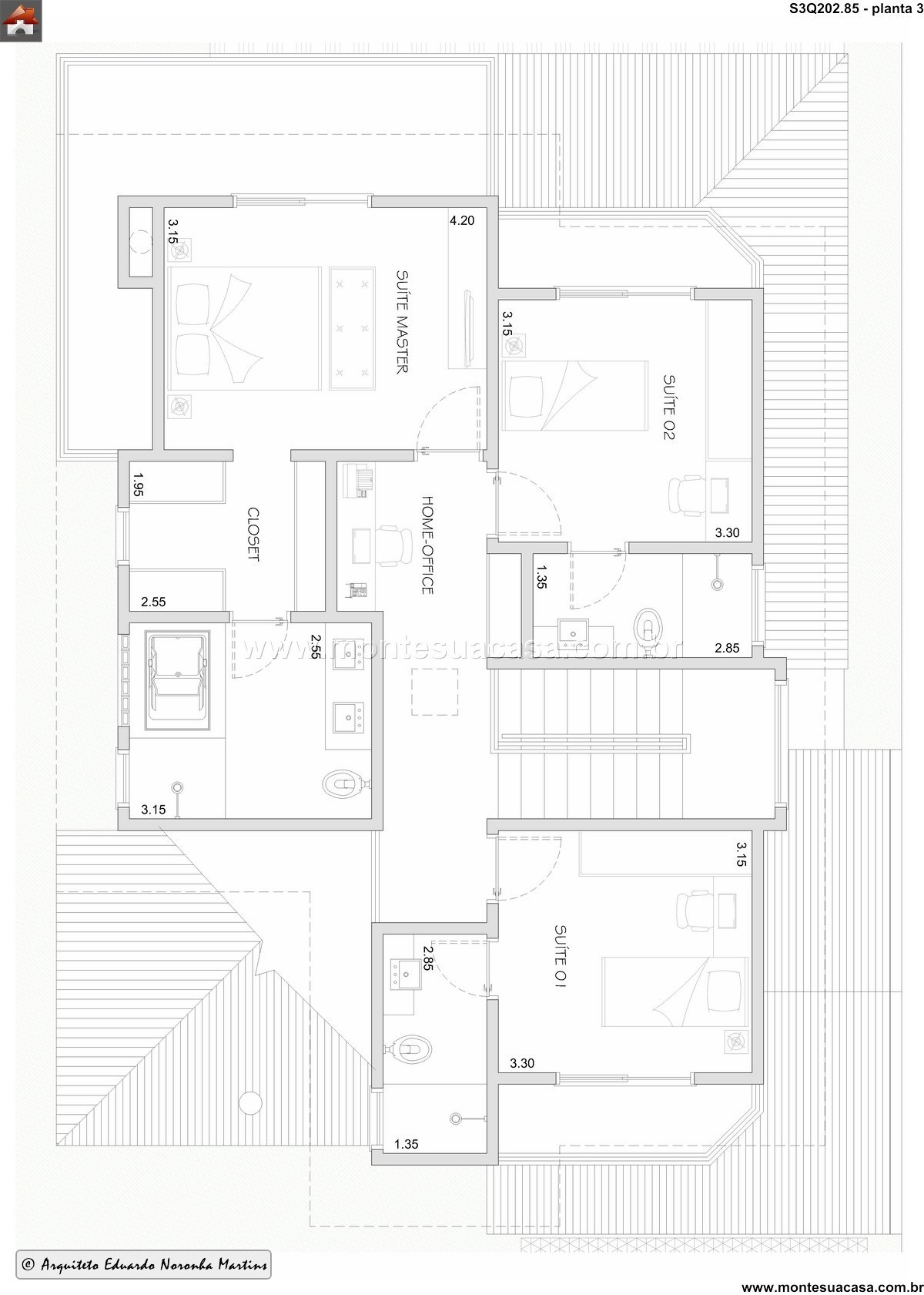
Conforto e Privacidade nos Dormitórios
O pavimento superior é dedicado à área íntima, abrigando os três quartos com excelente insolação e ventilação. O projeto garante privacidade aos dormitórios sem isolá-los do conceito geral da casa. Os banheiros seguem um layout eficiente, priorizando o uso racional do espaço. A arquitetura privilegia a iluminação natural em todos os cômodos, criando ambientes saudáveis e aconchegantes. Este sobrado representa o equilíbrio perfeito entre a vida social e a privacidade familiar, em um projeto que valoriza cada detalhe.














Avaliações
Não há avaliações ainda.